ATARhouse: Kako je salaš 176 kod Novog Sada dobio novo lice
Na salašu 176 u Čeneju očuvani su postojeći zidovi i gabariti, pa je stara konjušnica postala prostor za radionice, tim bildinge i boravak u prirodnom okruženju.
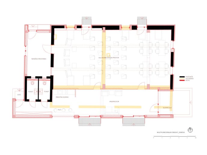
U ravnici severno od Novog Sada, na salašu 176 u Čeneju, sprovedena je temeljna rekonstrukcija tri postojeća objekta – kuće, letnje kuhinje i konjušnice – sa ciljem stvaranja savremenog prostora za rad i okupljanje. ATARhouse, projektovan u birou Bionique arhitekte Adama Špehara, pokazuje kako se nasleđena struktura može očuvati i nadograditi bez gubitka njenog prostornog identiteta.
Postojeća kuća je sanirana kako bi klijenti imali svoj privatni kutak u okviru “poslovnog salaša”, letnja kuhinja rekonstruisana je u istom gabaritu, dok je konjušnica – zatečena u lošem konstruktivnom stanju – delimično uklonjena, a zatim obnovljena i dograđena. Upravo je transformacija konjušnice predstavljala ključni projektantski i izvođački izazov.
Pročitajte još na Gradnja.rs:

Salaš 176 u Čeneju se sada sastoji od celina koje su pogodne za okupljanja, rad i razne vrste aktivnosti.
Rekonstrukcijom su sačuvani svi zdravi elementi objekta – temelji i spoljašnji zidovi zidani opekom – dok je nova konstrukcija izvedena u armiranom betonu, u sprezi sa postojećim zidovima. Zadržana je osnovna forma objekta, uz dodavanje aneksa sa zapadne strane, čime je formiran multifunkcionalni prostor sposoban da primi različite tipove okupljanja.
Salaš 176 u Čeneju se sada sastoji od celina koje su pogodne za okupljanja, rad i razne vrste aktivnosti.

Zadržana osnovna forma objekta
„Sam arhitektonski jezik je savremen, svedenih linija, kolorita i materijalizacije, baziran na arhetipu i usklađen sa ostalim objektima na salašu”, kaže arhitekta iz Novog Sada.
Dodati krovni prozori daju centralnom prostoru neophodnu zenitalnu svetlost koju ne bi bilo moguće dobiti preko postojećih bočnih prozora zbog velike širine objekta. Na očuvanim postojećim zidovima otvoreni su novi prozori, ali manjih dimenzija kako ne bi došlo do slabljenja zidova.

Sam arhitektonski jezik je savremen, svedenih linija, kolorita i materijalizacije, baziran na arhetipu i usklađen sa ostalim objektima na salašu.
Objekat je potpuno saniran u energetskom smislu – izvedeni su novi slojevi termoizolacije od kamene vune u nivou postojećih i novoprojektovanih podnih površina, zidova i krovnih ravni.
Izvedena je kompletna sanacija po pitanju zaštite od vlage što je podrazumevalo hidroizolaciju postojećih i novih temelja kao i novi sistem drenaže.
Prilagodljiv, otvoren i pun mogućnosti
ATARhouse je prilagodljiv, otvoren i pun mogućnosti: U njemu se mogu održavati radionice i susreti, edukacije i tim bilding aktivnosti, fotografisanja i snimanja, ali i boravci u prirodi za one kojima treba predah.
„Nameštaj, detalji i raspored prostora osmišljeni su tako da se lako prilagode potrebama korisnika – bez suvišnih barijera i sa puno prirodnog materijala i svetlosti”, ističe za Gradnju arhitekta Špehar.

U novoprojektovanom proširenju multifunkcionalnog objekta bilo je moguće napraviti veće otvore koji omogućavaju širok pogled na ravnicu.
U enterijeru koji je čistih i jednostavnih linija dominiraju svetli tonovi. Akcenti se javljaju u različitim bojama stolica, akustičnim panelima i dekoraciji. Određeni delovi betonske konstrukcije su ostavljeni da budu vidljivi. Završni slojevi podova su izvedeni od epoksida u svetlo-krem i plavoj boji.
Sa zapadne strane, u novoprojektovanom proširenju multifunkcionalnog objekta bilo je moguće napraviti veće otvore koji omogućavaju širok pogled na ravnicu.
„Naglašavanje bočnih ulaza u objekat izvedeno je postavljenem okvira od čeličnih ploča u crnoj boji i stepeništa izvedenih od kutijastih bravarskih profila sa ispunom od pocinkovane mreže”, objašnjava autor.

Gotovo sav materijal od rušenja će se u narednim fazama iskoristiti za izgradnju manjih pomoćnih objekata, mobilijara, dekoracija i sl.
Kako ističe Špehar, prethodni vlasnici su jako vodili računa o ozelenjavanju salaša, te su gustim pojasevima drveća sprečili uticaj dominantnih vetrova koji u zimskom periodu dostižu jako velike brzine. „Okružen njivama pod otvorenim nebom, ATARhouse je tako istovremeno sakriven i otvoren”, kaže arhitekta.
Zanimljivo je napomenuti i da se prilikom rušenja delova objekata strogo vodilo računa o skladištenju materijala. „Gotovo sav materijal će se u narednim fazama iskoristiti za izgradnju manjih pomoćnih objekata, mobilijara, dekoracija i sl.”, navodi naš sagovornik.

Spoj prirode i stvaranja
Špehar naglašava da je kompleks u srcu atara nastao iz želje da se kreira prostor koji spaja prirodu i savremeni rad i stvaranje: „Klijenti i projektanti veruju da inspiracija dolazi onda kada se udaljimo od svakodnevice i povežemo sa sobom, drugima i prirodom. Zajednički cilj je bio jednostavan – stvoriti mesto koje inspiriše, smiruje i otvara prostor za ideje”.
„ATARhouse je oblikovan da bude funkcionalan, ali nenametljiv – da se prilagodi korisnicima, a ne obrnuto, bez obzira da li se u njemu održavaju radionice, okuplja tim, kuva, fotografiše ili jednostavno boravi u tišini,” zaključuje na kraju osnivač novosadskog biroa Bionique.
Grafički prilog

Foto-galerija
Faktografija
ATARhouse
Salaš 176, okolina Čeneja, Vojvodina
Nevena i Nikola Kudus
Adam Špehar, M. Arh
Suzana Nikolić, M. Arh.
Bionique, Novi Sad
Čedomir Vukobrat
Nevena Kudus
2023–2025.
multifunkcionalni objekat 205 m², letnja kuhinja 63 m², kuća 150 m²
P (sva tri objekta)
Milan Babić







Fenomenalno?
Посетили смо породично летос овај салаш. Дивно смо ручали и провели време.Уживали у природној хладовини и етно амбијенту. Не верујем да ћемо пожелети да га посетимо после реконструкције. По фотографијама би се рекло да је нестао тај уникатни дух традиционалног салаша. А он нам управо треба.
Totalni promašaj! Izgubljena je autentičnost salaša! Enterijer modernizovan previše i ima izgled gradskog objekta! Nema toplinu.
Управо тако!?!
Пропуштена прилика, штета!
Никада ми неће бити јасно зашто наши људи имају потребу да све ‘модернизују’ узимајући као узор – Икеу?!?
Nekorišćenje biber crepa je potpuni promašaj