Na Zvezdari planirana nova stambena zgrada sa 39 stanova i 43 parking mesta
Trospratnica je projektovana na budućem uglu Bosutske i Murmanske ulice, sa ukupnom bruto površinom od 3.804 kvadrata.
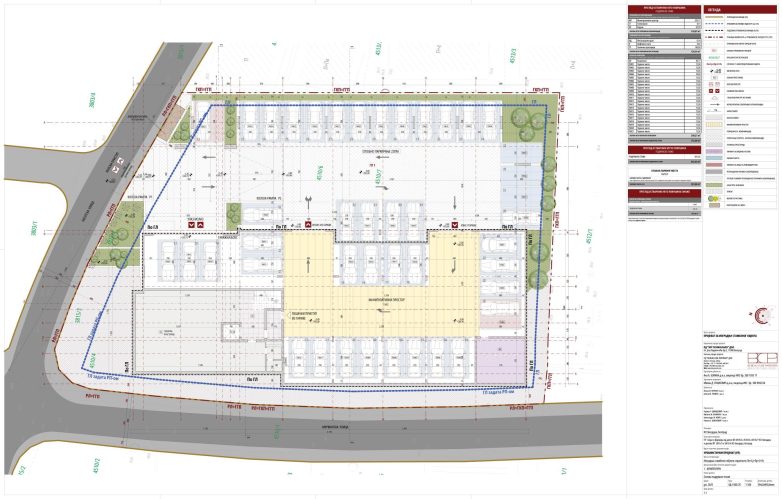
Preduzeće Sky Technologies d.o.o. iz Beograda investitor je nedavno objavljenog urbanističkog projekta za izgradnju stambenog objekta spratnosti Po+Su+Pr+2+PS, koji se planira na neizgrađenom prostoru od blizu 2.000 kvadrata u opštini Zvezdara.
Izrada urbanističkog projekta poverena je beogradskom studiju Bureau Cube Partners, sa odgovornim urbanistom Anom Šuman, dia, te odgovornim projektantom Milanom Raškovićem, dia.
Pročitajte još na Gradnja.rs:

Planirana ugaona trospratnica nalaziće se na budućem uglu Bosutske i Murmanske ulice na Zvezdari.
Granicom UP-a obuhvaćene su cele KP 4510/4, 4510/6 i 4510/7 i delovi KP 3815/3 i 3815/4, sve u KO Zvezdara, koje čine građevinsku parcelu GP1. Orijentaciona površina obuhvata urbanističkog projekta iznosi oko 1.964 metra kvadratna.
Parcela je orijentisana na svojoj severnoj strani ka planiranoj Bosutskoj ulici, a na zapadu ka Murmanskoj ulici i sa njima uspostavlja regulaciju.
Projektovano 39 stambenih jedinica
Idejnim arhitektonskim rešenjem novoprojektovani stambeni objekat je oformljen kao slobodnostojeći ugaoni objekat spratnosti Po+Su+Pr+2+PS, čiji je korpus razvijen paralelno sa ulicom Murmanska na zapadu i ulicom Bosutska na severu.
Objekat je po funkcionalnim celinama organizovan kao stambeni u kome je urbana funkcija stanovanja realizovana kroz 39 stambenih jedinica. Stambene jedinice, različitih struktura, projektovane su u površinama od 25 m² do 102 m².

U okviru podzemne etaže planiranog objekta, kao i u parteru, ostvarena su ukupno 43 parking mesta.
U okviru podzemne etaže – u podzemnoj garaži i garažnom boksu – ostvareno je ukupno 21 parking mesto, od čega je 1 PM namenjeno osobama sa invaliditetom. U parteru planiranog objekta ostvarena su ukupno 22 parking mesta u funkciji parkiranja vozila korisnika objekta, od čega je još jedno parking mesto namenjeno osobama sa invaliditetom.
Bruto razvijena građevinska površina nadzemnih etaža planiranog stambenog objekta iznosi 2.346 m², bruto razvijena građevinska površina podzemnih etaža iznosi 1.458 m², čime dolazimo do ukupne bruto razvijene građevinske površine celog objekta koja iznosi 3.804 metra kvadratna.
Primedbe i sugestije do 12. septembra
Zainteresovana lica mogu tokom javne prezentacije da izvrše uvid u urbanistički projekat, kao i da svoje primedbe i sugestije na planirana rešenja u pisanoj formi dostave na pisarnicu Sekretarijata za urbanizam i građevinske poslove, Kraljice Marije br. 1, najkasnije do 12. septembra 2025. godine.







Opet Cube Partners…
Sve što je oko 4 sprata moram da kažem da je u redu. Aj uzdravlje.
Jasan stambeni sklop i dobra organizacija stanoa. Dosta vešto izvedeno rešenje.
Mislim da se ovi stanovi jedino mogu opisati kao – smeće.
Ovo je “beogradski stan” investitorskog doba, jadno male kuhinje sa tunelastim prostorijama i wc/kupatilom gde god nema sta drugo da se pozicionira…