U Vidovdanskoj na Vračaru u planu stambena zgrada od skoro 3.000 m²
U objektu od četiri sprata sa potkrovljem projektovana je 31 stambena jedinica, dok je na dva podzemna nivoa predviđeno ukupno 40 parking mesta.
Grad Beograd investitor je javno dostupnog urbanističkog projekta za izgradnju stambenog objekta za potrebe raseljavanja na teritoriji Beograda, koji se planira u Vidovdanskoj ulici u katastarskoj opštini Vračar na parceli od 629 m².
Nosilac izrade urbanističkog projekta je beogradsko preduzeće Bauprojekt, dok je odgovorni urbanista Aleksandar Seizović, dia. Odgovorni projektant je Desanka Palikuća, dia, a saradnici su joj bili Marko Karić, dia, i Ana Komatina, mia.
Pročitajte još na Gradnja.rs:

Bruto površina od skoro 3.000 kvadrata
Zemljište obuhvaćeno granicom urbanističkog projekta je građevinsko zemljište i izlazi na ulicu Vidovdansku. Sa ove ulice ostvaren je kolski i pešački pristup planiranom objektu. Površina parcele je 629 m². Na lokaciji je postojao objekat koji je uklonjen u skladu sa Rešenjem iz marta 2023. godine.
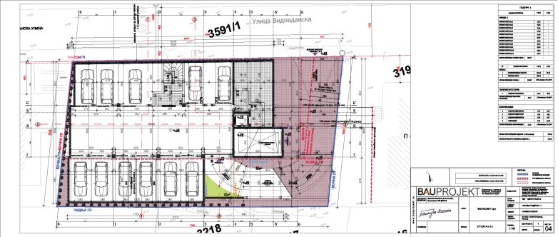
Na KP 3193 i 3194, KO Vračar, planiran je stambeni objekat, po tipologiji jednostrano uzidan. Spratnost planiranog objekta je Po(-2)+Po(-1)+P+4+Pk, dok bruto građevinska površina svih etaža objekta iznosi 2.995 m² – 848 m² podzemno i 2.147 m² nadzemno.

U podrumskoj etaži -2 smešteno je 29 parking mesta, dok se u podrumskoj etaži -1 nalazi još 11 parking mesta.
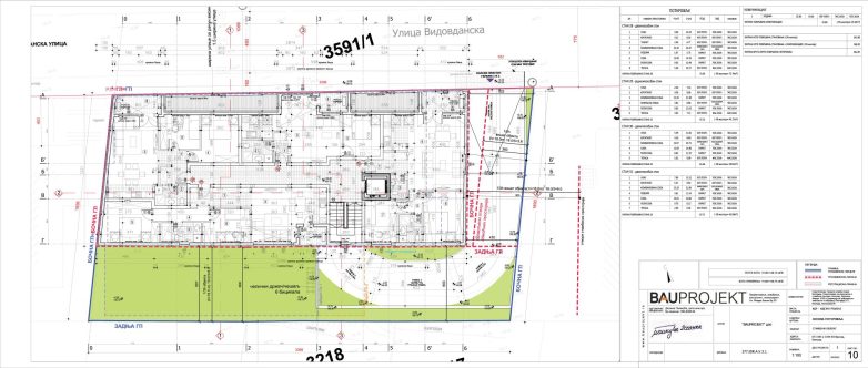
Kako stoji u urbanističkom projektu, u objektu je planirana ukupno 31 stambena jedinica. Na etaži prizemlja je projektovane su 3 stambene jedinice, na etažama 1, 2, 3 i 4 po 6 stambenih jedinica i na etaži potkrovlja 4 stambene jedinice.
U podrumskoj etaži -2 smešteno je 29 parking mesta, dok se u podrumskoj etaži -1 nalazi još 11 parking mesta od čega su dva za lica sa invaliditetom. Ukupno u obe podrumske etaže ima 40 parking mesta. U podrumskim etažama se nalaze i potrebne tehničke prostorije.
Pejzažno uređenje parcele podrazumeva popločanje pristupnih staza na parceli u raznim bojama, kao i hortikulturno uređenje koje omogućava da se celom prostoru da na akcentu, navodi se.
Na javnom uvidu do 1. oktobra
Zainteresovana lica mogu tokom javne prezentacije da izvrše uvid u urbanistički projekat, kao i da svoje primedbe i sugestije na planirana rešenja u pisanoj formi dostave na pisarnicu Sekretarijata za urbanizam i građevinske poslove, Kraljice Marije br. 1, najkasnije do 1. oktobra 2025. godine.
Grafički prilozi









