U Čučuk Staninoj na Zvezdari u planu sedmospratnica sa 16 stanova
Urbanističkim projektom predviđena je zgrada sa tri podzemne etaže, poslovnim prostorom u prizemlju i 23 parking mesta, a javni uvid traje do 26. septembra.
Na Zvezdari je planirana izgradnja nove stambeno-poslovne zgrade u Čučuk Staninoj ulici broj 3. Objekat spratnosti 3Po+Pr+6+Ps imaće ukupno 16 stanova na 2.412 kvadrata nadzemnih etaža i tri nivoa podzemne garaže sa 23 parking mesta, navodi se javnom uvidu objavljenom ove sedmice.
Nosilac izrade predmetnog urbanističkog projekta je beogradska firma Folic Architects, odgovorni urbanista je Radica Nedić, dia, a odgovorni projektant arhitekture Branislav Folić, dia. Investitori su Slobodan Kostić iz Beograda i preduzeće Comal Group d.o.o. iz Zemuna.
Pročitajte još na Gradnja.rs:

Postojeći objekti se ruše
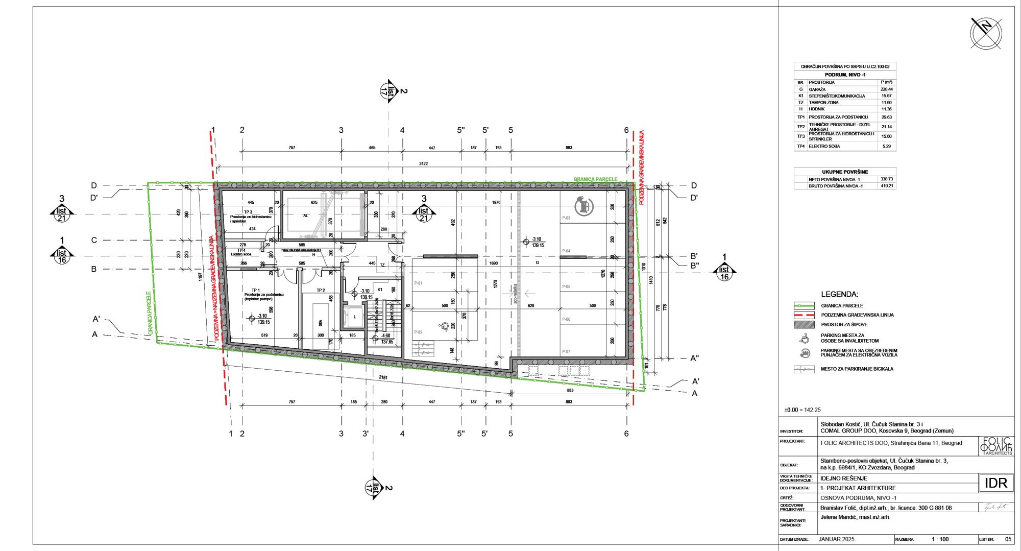
Urbanističkim projektom obuhvaćena je cela KP 6984/1, KO Zvezdara. Prema podacima lista nepokretnosti, ukupna površina predmetne katastarske parcele pravougaonog oblika iznosi 521 m².
Predmetna lokacija se nalazi u bloku oivičenom ulicama Čučuk Staninom, Bulevar kralja Aleksandra i Vojvode Šupljikca. Predmetna parcela je izgrađena i na njoj se nalaze objekti prizemne spratnosti u funkciji porodičnog stanovanja, koji su svi planirani za rušenje.
Kako se navodi u dokumentaciji na javnom uvidu, projektom je predviđena izgradnja dvostrano uzidanog stambeno-poslovnog objekta, spratnosti 3Po+Pr+6+Ps, sa ukupnom bruto površinom od 3.669 m², od čega je 2.412 m² planirano u nadzemnim etažama.

Projektovana 23 parking mesta
Projektovane su ukupno tri podzemne etaže, namenjene parkiranju vozila i bicikala, kao i organizaciji stanarskih ostava i neophodnih tehničkih prostorija.
Sa ukupnom neto površinom od 685 m², garaža je projektovana u kategoriji srednjih garaža, a za smeštaj vozila planirana su ukupno 23 parking mesta, od čega je jedno parking mesto na nivou -1 projektovano za osobe sa posebnim potrebama.
U prizemlju su projektovane dve stambene jedinice, dok je na etažama od prvog do povučenog sprata planirano ukupno 14 stanova.
U prizemlju objekta projektovani su poslovni prostor namenjen komercijalnim sadržajima, dve stambene jedinice, kao i zajednička centralna vertikalna komunikacija koju čine dvokrako stepenište i jedan putnički lift.
Na nadzemnim etažama od prvog do povučenog sprata planirano je ukupno 14 stanova različite strukture i kvadrature, pri čemu su šesti i povučeni sprat projektovani sa po jednom velikom stambenom jedinicom dvostrane orijentacije.
Slobodne i otvorene površine oko objekta planirane su u vidu uređenih zelenih površina u direktnom kontaktu, kao i u vidu uređenih popločanih staza i platoa. U prednjem delu parcele planirana je pristupna pešačka staza, dok je u delu zadnjeg dvorišta planiran veliki uređeni otvoreni plato iznad garaže.

Primedbe i sugestije do 26. septembra
Zainteresovana lica mogu tokom javne prezentacije da izvrše uvid u urbanistički projekat, kao i da svoje primedbe i sugestije na planirana rešenja dostave najkasnije do 26. septembra 2025. godine.








očajne osnove