Na Novom Beogradu gradiće se centar za razvoj veštačke inteligencije
Osim centra za napredna istraživanja, kompleks će sadržati i stambeno-poslovni deo sa 36 stanova, kao i zajedničku podzemnu garažu sa 173 parking mesta.
Izgradnja poslovno-stambenog kompleksa, koji bi uključivao i objekat Centra za razvoj napredne digitalne tehnologije i veštačke inteligencije, povod je za izradu urbanističkog projekta koji je ove sedmice predstavljen na sajtu Grada Beograda.
Investitor je preduzeće NBGEXPO d.o.o. sa Voždovca, nosilac izrade urbanističkog projekta je firma Urbanistiq iz Rakovice, koja autorski potpisuje i idejno rešenje arhitekture, dok je odgovorni projektant Aleksandar Sudžuković, dia.
Pročitajte još na Gradnja.rs:

Parcela od 5.430 kvadrata
Lokacija na kojoj se planira izgradnja poslovno-stambenog kompleksa nalazi se neposredno uz ulicu Dr Ivana Ribara, na parceli koja zauzima 5.431 metar kvadratni.
Ima direktan izlaz na planiranu saobraćajnicu sa jugozapadne strane, odnosno na saobraćajnu površinu, koja je predmet posebnog UP-a, sa severozapadne strane.

Tri celine povezane u jedinstvenu formu
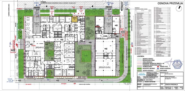
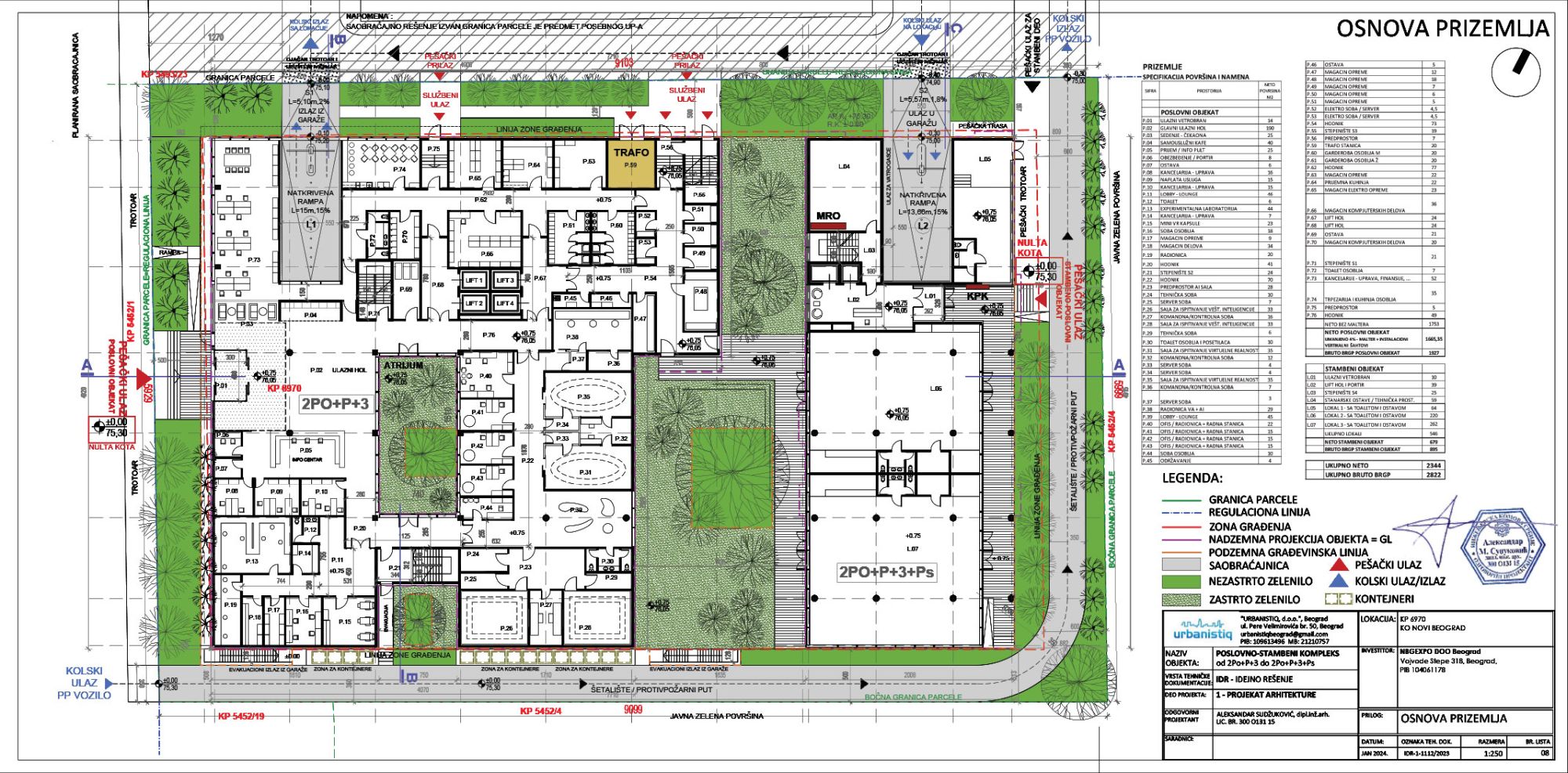
Poslovno-stambeni kompleks se sastoji iz tri celine – poslovni objekat, stambeno-poslovni objekat i zajedničke podzemne etaže sa garažom, povezane u jedinstvenu formu arhitektonskim oblikovanjem.
Poslovni i stambeno-poslovni objekat su projektovani kao zasebni nadzemni objekti, a oba objekta su slobodnostojeća i postavljena u okviru definisane zone gradnje pravilima građenja.
Spratnost poslovnog objekta je 2Po+P+3, stambeno-poslovnog 2Po+P+3+P, dok čitav kompleks zauzima ukupnu BRGP od 20.313 m² (nadzemno 12.846 m², podzemno 7.467 m²).
Kompleks bi se izvodio fazno, gde prvu fazu čini izgradnja poslovnog objekta sa podzemnom garažom, a drugu izgradnja nadzemnog dela stambeno-poslovnog objekta.
Na dve podzemne etaže ukupno su ostvarena 173 parking mesta, od čega je 12 PM namenjeno osobama sa invaliditetom, dok je 10 PM opremljeno elektropunjačem.

Sva testiranja, istraživanja, programiranja i razvoj se rade isključivo kroz softver i programiranje koristeći prostor AI.
Objekat namenjen za poslovanje, nazvan „Centar za razvoj napredne digitalne tehnologije i veštačke inteligencije“, projektovan je sa prizemljem i 3 etaže.
Namena objekta biće prostor namenjen za napredna istraživanja, sa visokokvalitetnom računarskom opremom i najnovijom generacijom radnih stanica, servera, superkompjutera i sl.
Kako se ističe u projektu, sva tehnologija centra je „čista“ i sva testiranja, istraživanja, programiranja i razvoj se rade isključivo kroz softver i programiranje koristeći prostor virtuelne realnosti.

Sve etaže u Centru imaju veliki broj server sala sa visokokvalitetnom računarskom opremom.
U prizemlju su projektovani eksperimentalna VR laboratorija, sale za virtuelnu realnost i veštačku inteligenciju, službeni prostori i kancelarije.
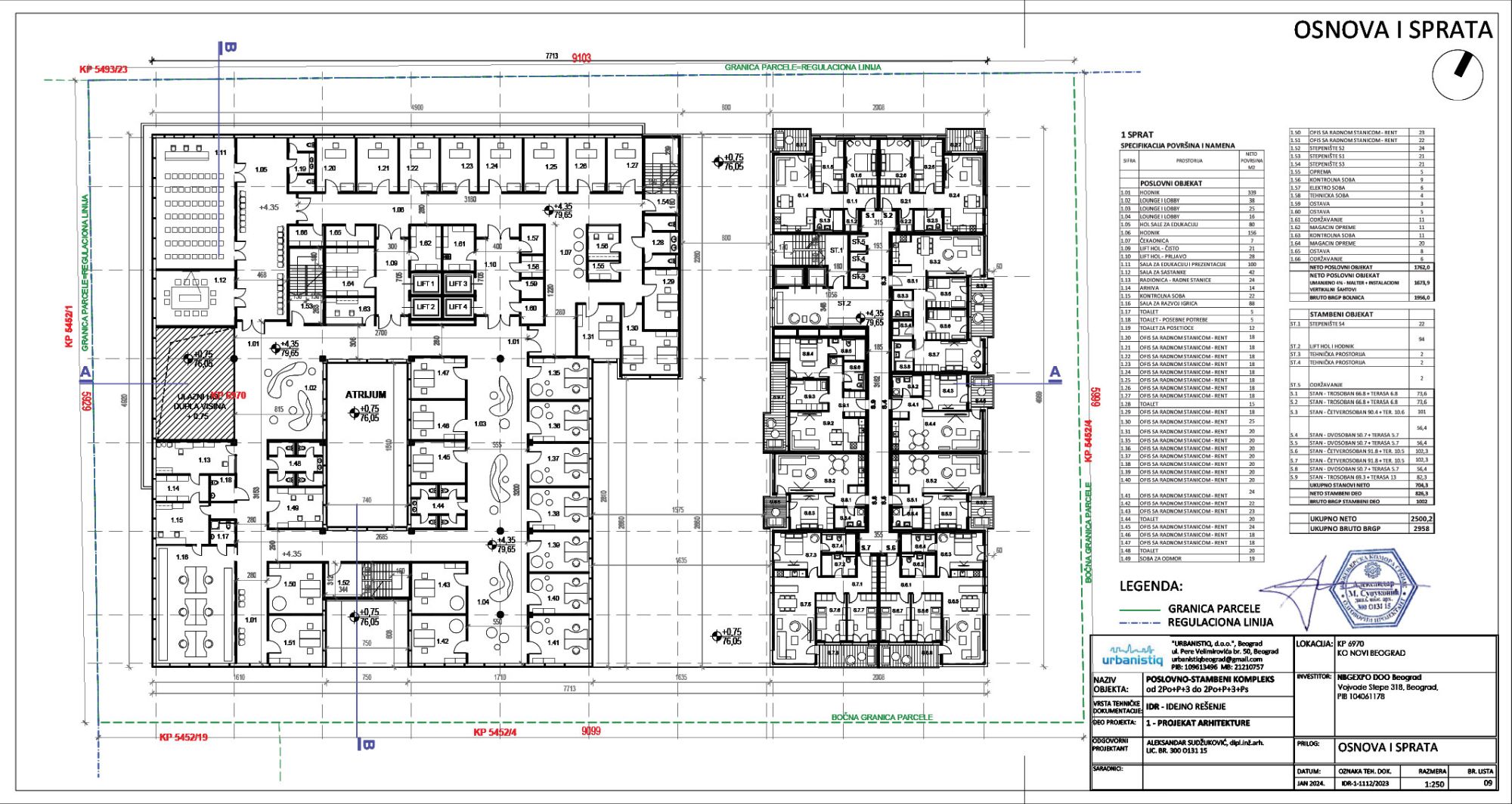
Prvi sprat sadrži ofise sa radnim stanicama, istraživačko-razvojne centre, kancelarije za iznajmljivanje, sale za prezentaciju, dok su na drugom smeštene sale za VR i AI, zatim VR kapsule, kao i još ofisa.
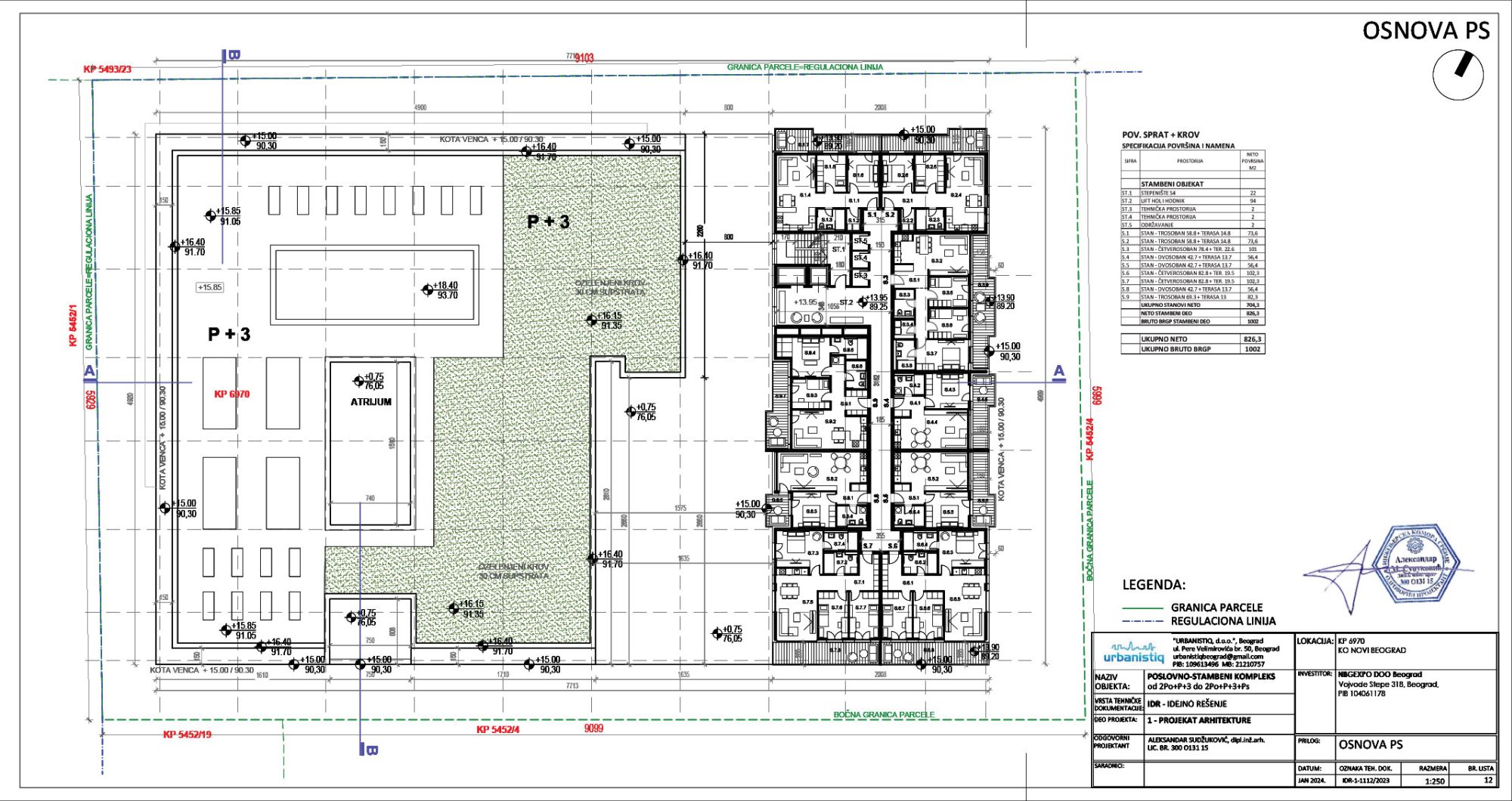
Na trećem spratu se nalaze ofisi i centri za teorijsko planiranje i razvoj aplikacija, kao i kancelarije za iznajmljivanje, a sve etaže imaju veliki broj server sala sa visokokvalitetnom računarskom opremom.

Stambeno-poslovni objekat
Deo objekta namenjen za stanovanje je projektovan sa prizemljem, 3 sprata i četvrtim, povučenim spratom.
Glavni ulaz se nalazi sa strane javnog zelenila, odnosno sa zadnje strane parcele i ima obezbeđen pristup osobama sa smanjenom sposobnošću kretanja.
U prizemlju objekta se nalaze tri lokala/poslovna prostora od 64 m², 220 m² i 262 m².
Na spratovima od prvog do četvrtog predviđeno je ukupno 36 stanova u rasponu od dvosobnih do četvorosobnih, po četiri na svakoj etaži.

Na javnom uvidu do 2.aprila
Zainteresovana lica mogu tokom javne prezentacije da izvrše uvid u Urbanistički projekat, kao i da svoje primedbe i sugestije na planirana rešenja u pisanoj formi dostave na pisarnicu Sekretarijata za urbanizam i građevinske poslove, najkasnije do 2. aprila 2024. godine.






Pa kako da prođe bez stanova… bilo bi glupo
Sta mislite, da li ce inzenjeri koji budu radili u ovom centru, moci sebi da priuste stanove koji se grade ovde?
Ok. Koliko stabala će zasaditi ? Koja im je CO2 low emission obaveza ? Koja ima je CSR obaveza? Eko osvešćeenost i obaveza prema zelenim povrŝinama ništa? Ai mindset gradnje možda i AI drvored?
bože ketrin o čemu ti razmišljaš? pa to je vrštačka intelidžens šta će joj drvo svašta😁😁😁
U pravu si Miki. 😁