Planirani stambeno-poslovni objekat u Ulici Gvozdenog puka; Izvor: Urbanistički projekat
Novi objekti

Novi stambeni kompleks u Mirijevu sa 96 stanova i 137 parking mesta

U toku je javni uvid za objekat bruto površine od 12.690 kvadrata u tri lamele i sa osam lokala, predviđen da se gradi fazno.

Grad Beograd omogućio je do 14. oktobra javni uvid u urbanistički projekat za izgradnju stambeno-poslovnog objekta formiranog od tri lamele, koji beogradsko preduzeće Guard Rovčanin Security d.o.o. planira u Ulici Gvozdenog Puka u Mirijevu.

Nosilac izrade predmetnog urbanističkog projekta je Said Talić iz Arhitektonskog atelja Talić iz Beograda, projektant idejnog rešenja je Main View Studio, takođe iz Beograda, dok je kao odgovorni projektant arhitekture potpisan Zoran Ljubičić, dia.

Pročitajte još na Gradnja.rs:

Širi prikaz lokacije

Kolski i pešački pristupi iz dve ulice

Kako se navodi  u projektu, stambeno-poslovni objekat spratnosti Po2+Po1/Su+P+3+Ps planiran je na katastarskoj parceli 3714 u KO Mirijevo, površine od 5.577 m².

Na parceli ne postoje izgrađeni objekti, dok su delovi nelegalnih prizemnih objekata sa susedne parcele, koji prelaze na predmetnu KP, planirani za uklanjanje.

Kolski i pešački pristupi objektu planirani su iz postojeće Ulice Gvozdenog puka i iz novoplanirane ulice Nova na jugoistočnoj strani parcele.

U okviru građevinske parcele projektovana je integrisana interna dvosmerna saobraćajnica, kao deo uređenja terena, a u funkciji saobraćajne veze dve javne saobraćajnice i preko koje se planira odvijanje kolskog i pešačkog saobraćaja u granici parcele.

Projektovani su razdvojeni ulazi u podzemnu garažu, stambeni deo za svaku lamelu i ulazi u poslovni deo svake od lamela.

Situacioni plan sa osnovom suterena/podruma -1

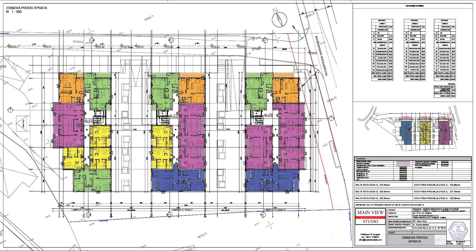
Projektovano 96 stanova

Stambeno-poslovni objekat projektovan je kao slobodnostojeći i sastoji se iz tri lamele (L1, L2, L3) sa zajedničkom podzemnom garažom.

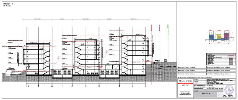
Spratnost objekta je za Lamelu 1 je Po2+P+3+Ps, za Lamelu 2 Po2+Su+P+3+Ps, a za Lamelu 3 Po2+Po1+P+3+Ps. Bruto površina objekta iznosi 12.690 m².

U objektu je predviđeno formiranje ukupno 96 stanova i osam poslovnih prostora – 3 u nivou prizemlja u Lameli 1, 3 dvoetažna poslovna prostora (P+Su) u Lameli 2 i 1 dvoetažni poslovni prostor (P+Po1) i 1 u nivou podruma -1 u Lameli 3.

U podzemnoj garaži -2 ostvareno je 99 parking mesta, u suterenu Lamele 2 projektovano je 6 garažnih boksova, a u podrumu -1 Lamele 3 projektovano je 11 PM.

Dodamo li tome i 21 parking mesto na otvorenom, dolazimo do brojke od ukupno 137 parking mesta za ceo objekat, od čega je 7 PM namenjeno za osobe sa posebnim potrebama.

Presek 1-1

Izgradnja predviđena u tri faze

Na etaži prizemlja svih lamela projektovane su stambene jedinice i gornji nivoi dvoetažnih poslovnih prostora, kao i holski pristupi sa vertikalnim komunikacijama za stambene delove lamela (za Lamelu 1 i lamelu 3), dok je za Lamelu 2 ulaz u stambeni objekat projektovan u suterenu lamele, zbog pristupa sa platoa.

Na etažama prvog, drugog, trećeg i povučenog sprata projektovane su stambene jedinice različitih struktura, sa vertikalnim komunikacijama, navodi se u urbanističkom projektu kojim je predviđena fazna izgradnja objekta.

Faza 3 obuhvata podrum -1 za Lamelu 3 i stambeno-poslovnu lamelu L3 i pripadajuću internu infrastrukturu u funkciji priključenja Lamele L3.

Faza 1 obuhvata podzemnu garažu u nivou podruma -2 – podzemni deo svih lamela, stambeno-poslovnu lamelu L1, integrisanu internu saobraćajnicu, kolske i pešačke pristupe, zelene površine, nadzemne parkinge na otvorenom delu parcele u zoni lamele L1, pripadajuću internu infrastrukturu u funkciji podzemne garaže i Lamele L1 i trafostanicu.

Faza 2 obuhvata suteren za Lamelu 2 i stambeno-poslovnu lamelu L2, nadzemne parkinge na otvorenom delu parcele u zoni lamele L2 i pripadajuću internu infrastrukturu u funkciji priključenja L2, dok Faza 3 obuhvata podrum -1 za Lamelu 3 i stambeno-poslovnu lamelu L3 i pripadajuću internu infrastrukturu u funkciji priključenja Lamele L3.

Grafički prilozi

Situacioni plan sa osnovom suterena/podruma -1
Situacioni plan sa osnovom suterena/podruma -1
Osnova prizemlja
Osnova prizemlja
Osnova prvog sprata
Osnova prvog sprata
Osnova povučenog sprata
Osnova povučenog sprata
Presek 1-1
Presek 1-1
Presek 2-2
Presek 2-2

Izabrali smo za vas...

Postani deo Gradnja zajednice

Najnovije vesti s našeg portala svakog petka u vašem sandučetu.

Dizajn enterijera

Srodni tekstovi

Ostavite odgovor

Obavezna polja *