U Heroja Nebojše Živančevića u Mirijevu planirana zgrada sa 40 stanova
Na svakom od nadzemnih nivoa projektovano je po deset stanova, dok su 44 parking mesta obezbeđena u podzemnim garažama i van objekta na nivou prizemlja.
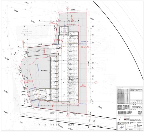
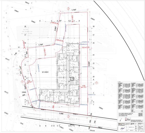
Grad Beograd stavio je do 28. novembra na javni uvid urbanistički projekat za izgradnju stambenog objekta spratnosti Po+P+2+Pk u Ulici heroja Nebojše Živančevića, u Katastarskoj opštini Mirijevo.
Nosilac izrade urbanističkog projekta je beogradsko preduzeće Bauprojekt d.o.o, investitor je firma Goran Invest BG, takođe iz Beograda, dok je kao odgovorni projektant potpisana Milica R. Sekulić, mast.inž.arh.
Pročitajte još na Gradnja.rs:
- Na uglu Bilećke i Kapetana Zavišića planirana stambena zgrada od 2.400 kvadrata
- U Požarevačkoj ulici na Vračaru u planu stambena petospratnica+

Kolski i pešački pristup iz Heroja Nebojše Živančevića
Predmetna parcela se nalazi u površinama ostalih namena – površine za stanovanje u zoni tranformacije porodičnog stanovanja u delimično formiranim gradskim blokovima u višeporodično stanovanje.
Zemljište obuhvaćeno granicom urbanističkog projekta je građevinsko zemljište i izlazi na Ulicu heroja Nebojše Živančevića, sa koje je ostvaren kolski i pešački pristup planiranom objektu.
Površina parcele je 2.091 kvadratni metar, a na lokaciji nema izgrađenih objekata.

U objektu je projektovano ukupno 40 stambenih jedinica, po deset na svakoj etaži.
Objekat koncipiran Bauprojektovim idejnim rešenjem je slobodnostojeći stambeni objekat, spratnosti Po+P+2+Pk i ukupne bruto površine od 3.342 kvadratna metra.
U objektu je projektovano ukupno 40 stambenih jedinica, po 10 na svakoj etaži, odnosno po 7 jednoiposobnih, 1 dvosoban i 2 dvoiposobna stana.
Parkiranje pod zemljom i na nivou prizemlja
Predviđeno je ukupno 44 parking mesta, od čega je 29 organizovano u dve garaže u podzemnoj etaži (Garaža 1 – 27 PM, Garaža 2 – 2 PM) i 15 parking mesta na terenu van objekta na nivou prizemne etaže u okviru predmetne parcele.
U dvorištu ispred objekta, u pristupnom delu u delu između regulacione i građevinske linije, predviđeno je postavljanje čeličnih češljeva za parkiranje bicikala. Predviđena su dva češlja sa mogućnošću odlaganja po 10 dvotočkaša.
Grafički prilozi











