Na uglu Bilećke i Kapetana Zavišića planirana stambena zgrada od 2.400 kvadrata
Investitor Vibe Construction iz Beograda planira izgradnju objekta sa 15 stambenih jedinica, kao i dve podzemne garaže sa ukupno 17 parking mesta.
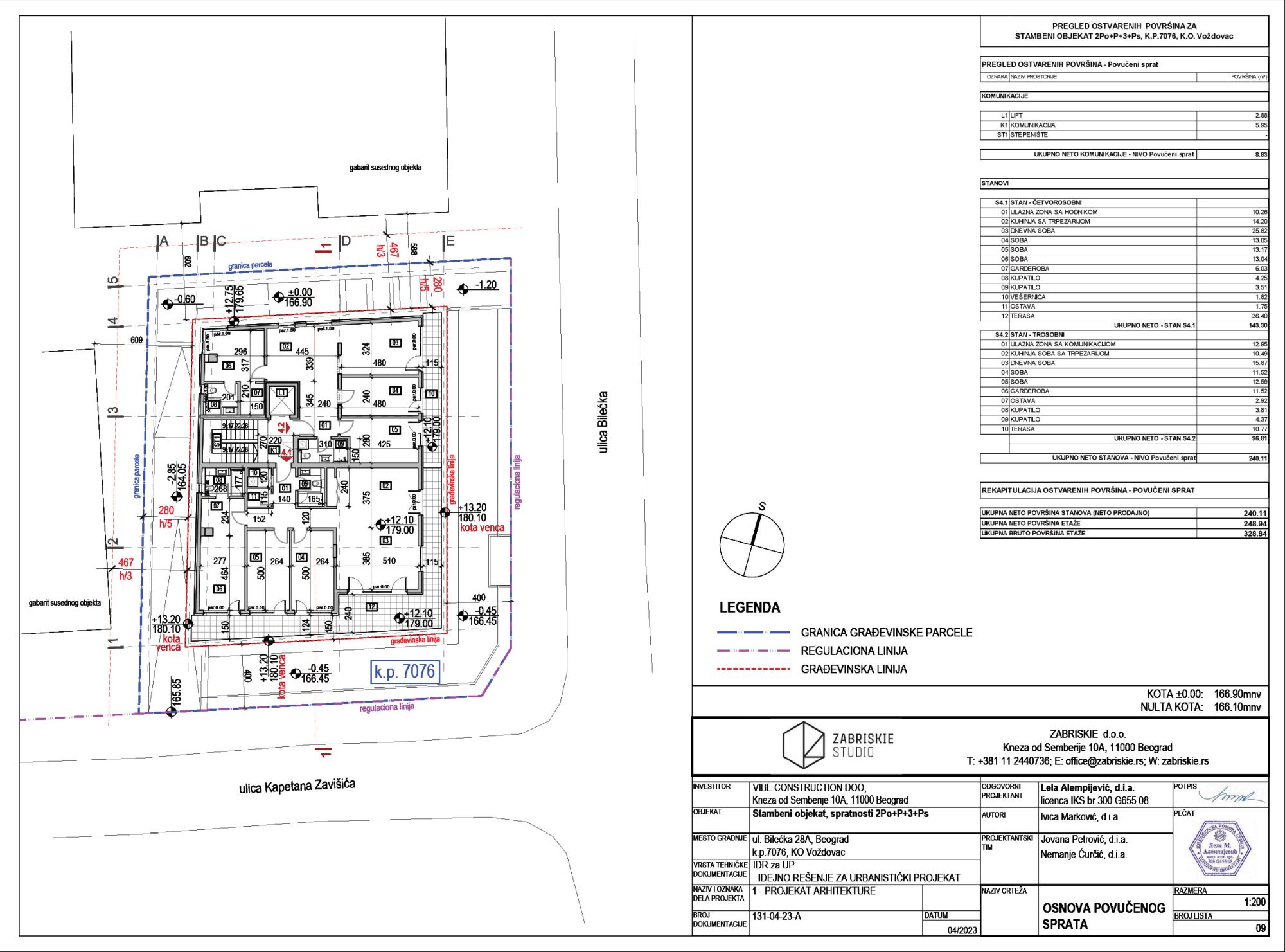
Prema idejnom rešenju studija Zabriskie, na adresi Bilećka 28A na Voždovcu mogao bi da nikne novi stambeni objekat, spratnosti 2Po+Pr+3+Ps, a za čiju izgradnju je izrađen urbanistički projekat koji je Grad Beograd stavio na javni uvid.
Nosilac izrade predmetnog urbanističkog projekta je preduzeće IBM Consult d.o.o. iz Beograda, investitor je beogradski Vibe Construction d.o.o, dok je kao odgovorni projektant potpisana Lela Alempijević, dia.
Pročitajte još na Gradnja.rs:
- U Požarevačkoj ulici na Vračaru u planu stambena petospratnica
- Na Trošarini u planu zgrada sa 29 stanova i poslovnim prostorom
Postojeći objekti predviđeni za rušenje
Predmetna lokacija obuhvata parcelu površine 621 metar kvadratni. Parcela je ugaona i sa dve strane izlazi na javne saobraćajnice – Ulicu Kapetana Zavišića na južnoj i Ulicu Bilećku na istočnoj strani – iz kojih je moguće ostvariti kolski i pešački pristup.
Na predmetnoj parceli nalazi se stambeni objekat spratnosti P+1 i pomoćni prizemni objekat. Oba postojeća objekta su predviđena za rušenje.

Projektom je ostvareno ukupno 17 parking mesta, od čega su dva parking mesta namenjena osobama sa posebnim potrebama.
Predmetni objekat je isključivo stambene namene – višeporodično stanovanje sa prostorima za parkiranje u podzemnim etažama. Ukupna bruto površina objekta iznosi 2.390 kvadratnih metara.
Podrumska etaža 2 projektovana je kao garaža sa stanarskim ostavama, dok je podrumska etaža 1 projektovana kao garaža sa tehničkom prostorijom za smeštaj toplotne podstanice i stanarskim ostavama.
Obe garaže projektovane su kao zasebne funkcionalne celine sa sopstvenim ulazom, korisne površine od 315,50, odnosno 205,04 m², što ih svrstava u kategoriju malih garaža.
Projektom je ostvareno ukupno 17 parking mesta, od čega su dva parking mesta namenjena osobama sa posebnim potrebama.

Ukupno 15 stambenih jedinica
Na prizemnoj etaži su projektovane 4 stambene jedinice, po strukturi jednoiposobne, dvosobne i trosobne, površina od 35 do 73 m².
Spratovi 1, 2 i 3 su takođe u potpunosti namenjeni stanovanju. Na svakoj od etaža projektovane su po 3 stambene jedinice, po strukturi trosobne, površina od 68 do 108 m².
Povučeni sprat namenjen je stanovanju – sa 2 stambene jedinice, po strukturi trosobne i četvorosobne, površina 97 i 145 m².

Kolski pristup objektu predviđen je iz Ulice kapetana Zavišića, odakle se preko kolskih rampi pristupa podzemnim etažama.
Kolski pristup objektu predviđen je sa južne strane, iz Ulice kapetana Zavišića, odakle se preko kolskih rampi pristupa podzemnim etažama.
Pešački pristup parceli predviđen je sa severoistočne strane iz Ulice Bilećke, odakle se preko pešačke staze u parteru dolazi do ulaza u objekat.
Na parceli su predviđeni i držači za potrebe parkiranja bicikala – ukupno dva, smeštena u parteru na nivou prizemlja, u zoni pešačkog pristupa parceli.
Takođe, planirano je i uređenje slobodnih i zelenih površina oko objekta postavljanjem niskog rastinja prema regulaciji.
Na javnom uvidu do 24. novembra
Zainteresovani mogu tokom javne prezentacije da izvrše uvid u urbanistički projekat, kao i da svoje primedbe i sugestije na planirana rešenja u pisanoj formi dostave Sekretarijatu za urbanizam i građevinske poslove Grada Beograda, najkasnije do 24. novembra 2023. godine.






Auuuuuu. Pa ljudi moji veći je „pečat“ od samog crteža?
A pečat?
dosta mala kupatila za ovako velike stanove na tako „prestižnoj“ lokaciji
vidim da će vlasnici morati dodatno da angažuju majstore da im lupaju i izmeštanju zidove