Kraj spomenika kulture na Senjaku planirana zgrada od 2.800 kvadrata
Pored kuće iz 1937. godine u Puškinovoj ulici planira se objekat sa četiri stana, četiri poslovna apartmana i 16 parking mesta u podzemnoj garaži.
Grad Beograd oglasio je sredinom ove sedmice javnu prezentaciju Urbanističkog projekta za izgradnju stambeno-poslovnog objekta spratnosti Po+Su+P+1+PS, koji investitor BeoNek 011 d.o.o. iz Beograda planira u opštini Savski venac, na adresi Puškinova 21.
Nosilac izrade predmetnog urbanističkog projekta je beogradsko preduzeće IBM Consult, dok je obrađivač idejnog rešenja studio P.S. Arch iz Beograda. Kao odgovorni urbanista potpisana je Ivana Stanojević, dia, a kao odgovorni projektant arhitekture Predrag Stevanović, dia.
Pročitajte još na Gradnja.rs:

Spomenik kulture neće biti srušen
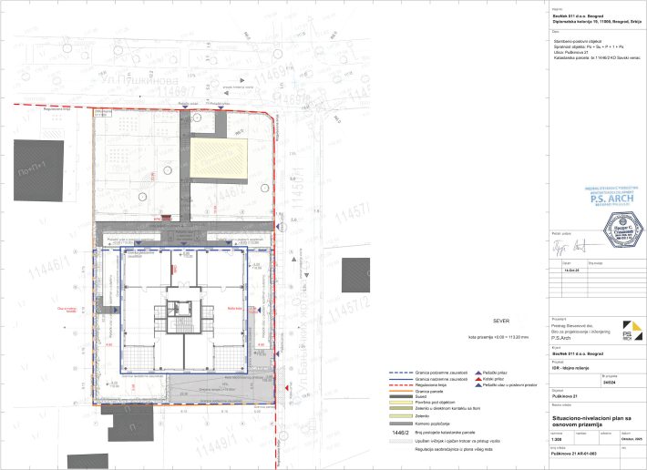
Predmetna katastarska parcela 11446/2, KO Savski Venac, ukupne površine 1.637 m², nalazi se na uglu ulica Puškinove i Banjičkih žrtava, gradska opština Savski Venac. Orijentacija parcele je u pravcu severoistok-jugozapad. Teren je u padu duž ulice Banjičkih žrtava od kote 116,93 mnv do kote 108,84 mnv.
Na predmetnoj parceli postoje tri objekta: spomenik kulture, kuća porodice Popović-Predić (izgrađena 1937. godine po projektu arhitekte Mihaila Radovanovića), koja se zadržava; atelje i pomoćni objekat (šupa), koji se prema uslovima iz važećeg Plana uklanjaju.

U suterenu i na prizemlju su planirana po dva poslovna apartmana, a na prvom spratu i na povučenom spratu po dve stambene jedinice.
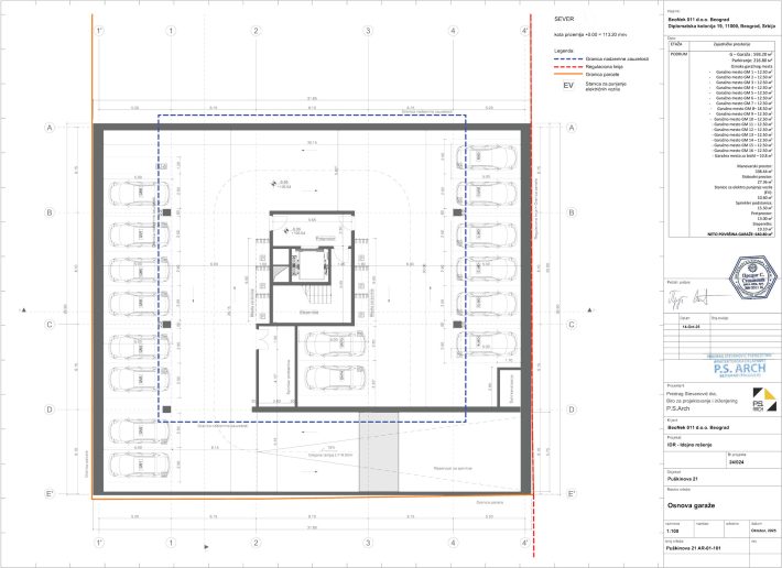
Spratnost objekta je Po+Su+P+1+Ps i čine je podrumska garaža, suteren, prizemlje, prvi sprat i povučeni sprat. Ukupna bruto površina podzemnih etaža po SRPS-u iznosi 1.344 m², nadzemnih 1.478 m², čime dolazimo do zbirne bruto površine od 2.822 metra kvadratna.
Planirani objekat će sadržati ukupno četiri stambene jedinice i četiri poslovna apartmana. U suterenu i na prizemlju su planirana po dva poslovna apartmana, a na prvom spratu i na povučenom spratu po dve stambene jedinice. Krov je projektovan kao ravan neprohodan krov.
U podrumskoj etaži nalazi se 16 garažnih mesta, od čega je jedno parking mesto predviđeno za osobe sa posebnim potrebama. U podzemnoj etaži su smešteni i stepenišno jezgro i lift sa pretprostorom i tehničke prostorije.

Primedbe i sugestije do 10. decembra
Zainteresovana lica mogu tokom javne prezentacije da izvrše uvid u Urbanistički projekat, kao i da svoje primedbe i sugestije na planirana rešenja u pisanoj formi dostave na pisarnicu Sekretarijata za urbanizam i građevinske poslove, Kraljice Marije br. 1, najkasnije do 10. decembra 2025. godine.







Ne planira se, nego se vec zida…
Srusite kucu cveca i eto dobrog zemljista.
Pa ce malo da se potkopa spomenik kulture pored pa kada napukne ima da se brze bolje srusi zarad bezbednosti i eto slobodne parcele…
Nego da li te „arhitekte“ znaju kako izgleda bubuljica na celu? Posto tako izgleda taj njihov objekat u tom prostoru.,.
tuga se nastavlja kao kancer širi metastaze svuda