U jednoj od najstarijih ulica u Beogradu planirana stambeno-poslovna zgrada
U objektu od 3.000 kvadrata projektovano je 15 stanova, jedan poslovni apartman i jedan lokal, dok je na dva nivoa podzemne garaže smešteno 28 parking mesta.
Na adresi Zetska 15, u beogradskoj opštini Stari grad, investitor Dorćol prestiž d.o.o. iz Beograda planira stambeno-poslovnu četvorospratnicu, za čiju je izgradnju izrađen urbanistički projekat koji se trenutno nalazi na javnom uvidu.
Nosilac izrade predmetnog urbanističkog projekta je preduzeće Dalmak d.o.o. iz Beograda, kao odgovorni urbanista potpisana je Aleksandra Stanojević, dia, a kao odgovorni projektant idejnog rešenja Nataša Žugić, dia.
Pročitajte još na Gradnja.rs:

Uklanja se postojeći objekat
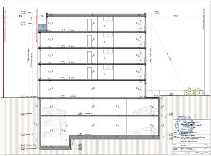
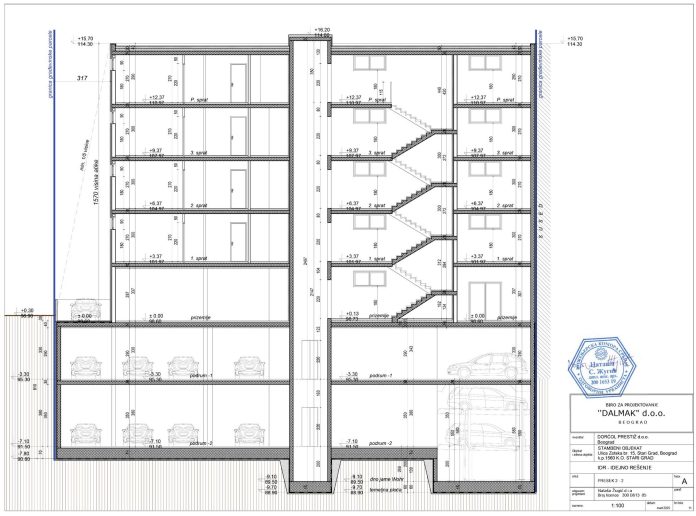
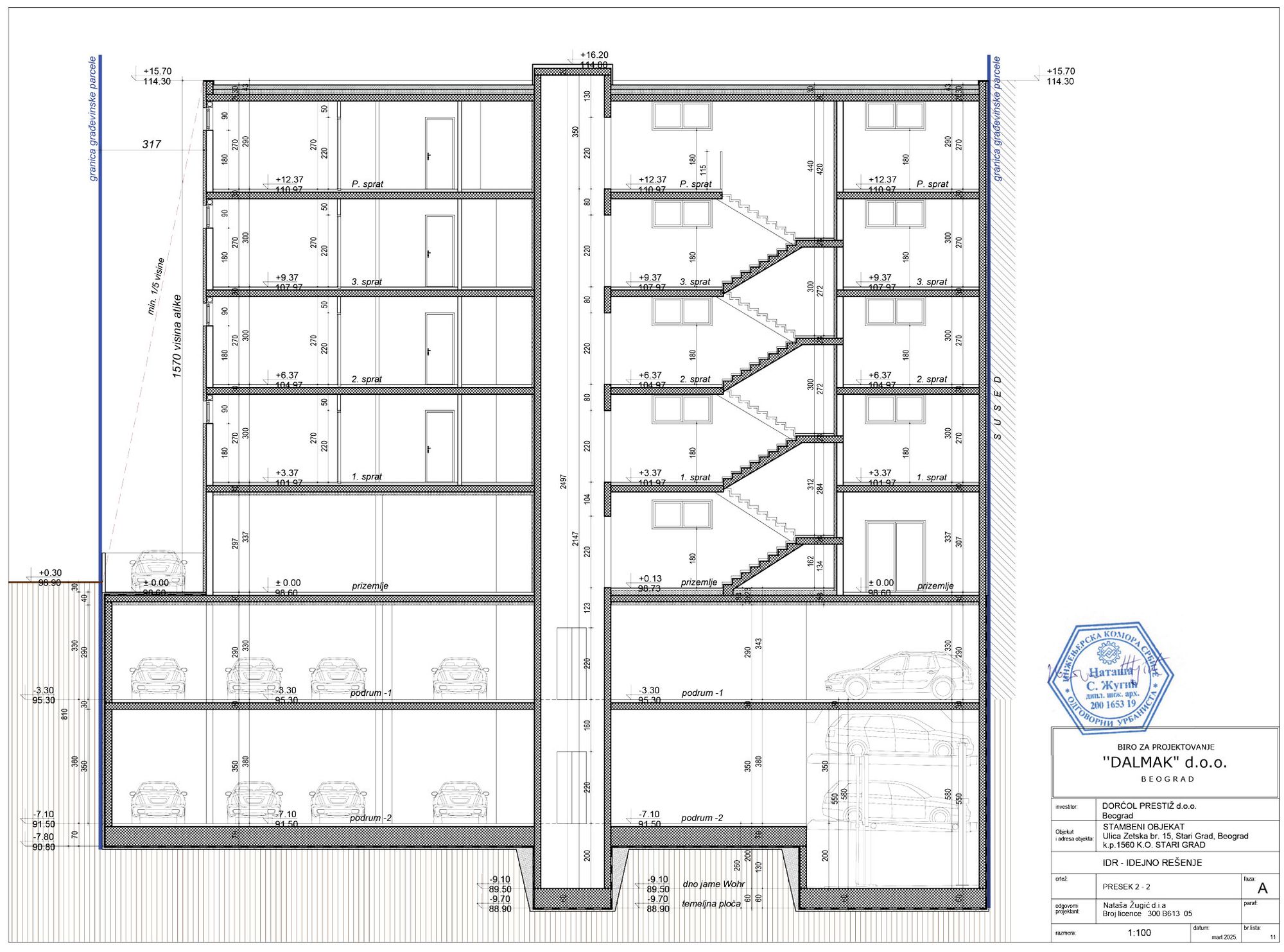
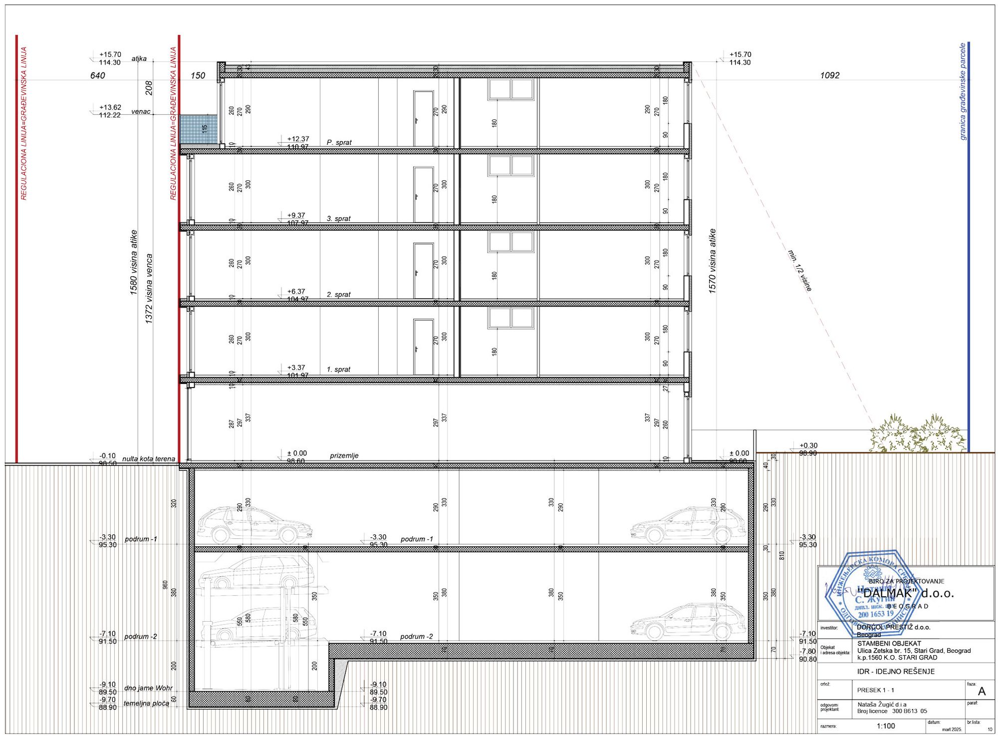
Građevinska parcela obuhvata katastarsku parcelu br. 1560, KO Stari Grad, površine 667 m². Na parceli postoji jedan izgrađeni objekat, površine 221 m², koji će biti uklonjen pre početka izgradnje novog objekta.
Građevinska parcela je nepravilnog oblika. Teren je u padu od ulice, odnosno u pravcu od juga ka severu. Građevinska parcela ima pristup javnoj saobraćajnoj površini Ulici Zetskoj sa južne strane parcele.
Na parceli se projektuje objekat spratnosti 2Po+Pr+3+Ps koji je po funkciji stambeno-poslovni. Nadzemna BRGP objekta iznosi 1.985 m², podzemna 1.029 m², čime dolazimo do ukupne bruto površine objekta od 3.014 m². Korisna površina garaže iznosi 849 m², što je po Pravilniku svrstava u srednje garaže.

Projektovano 15 stanova i 28 parking mesta
U prizemlju je projektovana poslovna namena – jedan lokal neto površine 262 m². U prizemlju je projektovan i stambeni ulaz, komunikacione površine za pristup spratovima (lift i stepenište) kao i hidraulična prohodna auto-platforma za pristup podzemnoj garaži i parking mestu u dvorišnom delu parcele.
Prostor za odlaganje bicikala projektovan je u dvorištu, dok je podzemna garaža projektovana na dva nivoa podruma. Ukupno je ostvareno 28 parking mesta, od čega su dva mesta namenjena za lica sa invaliditetom. Osim garaže, u podrumskim etažama su projektovane tehničke prostorije i pešačke komunikacije (stepenište i lift).
Na prvom spratu projektovan je jedan poslovni apartman neto površine 48,74 m² i tri stana. Na drugom, trećem i povučenom spratu projektovana su po četiri stana. Ukupno je projektovano 15 stanova. Na svakom spratu projektovane su vertikalne komunikacije, kao i horizontalna komunikacija.
Primedbe i sugestije do 20. novembra
Zainteresovana lica mogu tokom javne prezentacije da izvrše uvid u urbanistički projekat, kao i da svoje primedbe i sugestije na planirana rešenja u pisanoj formi dostave na pisarnicu Sekretarijata za urbanizam i građevinske poslove, Kraljice Marije br. 1, najkasnije do 20. novembra 2025. godine.
Grafički prilozi










Arhitektura ’60
Užas. Jezivo.
Samo nam je jos jedna bezlicna zgrada trebala u ovom gradu a pogotovo na toj lokaciji.
Napravili su investitori i arhitekte ruglo od ovog grada, zabole vas na haos i guzvu koju pravite stanarima u toj ulici. Vama vise para a svima drugima gori kvalitet zivota….
Jel to onaj plac gde je sad neka baraka..? Ko je uspeo da ih iseli?
Odakle investitoru to da je Zetska prohodna za automobile?
Divno je, zezam se. Ovo je uzasno, zajednicko vecini nasih arhitekata je permanentni nedostatak kreativnosti, tako je i u likovnoj umetnosti.
Mi kao nacija nismo talentovani u nekim oblastima.
Zar visina susednih objekata ne treba da diktira visinu novog? Otkud sad ovakva zgrada tu? Štrči kao čir na nosu…
Na stranu ovaj “zub“ ka dvorišnoj strani…jasno je da je to ukradena površina…
Ljudi vi niste normalni, lepsa vam je neka raspala baraka na divlje sklepana od normalne zgrade..Vratite se u selo odakle ste i dosli ako vam se ne svidja. Logicno je bilo da ce tu biti zgrada, preko puta ima jos jedna baraka 😉
Arhitektonsko oblikovanje ovog objekta je zaista bez ikakvog pokušaja da se napravi veza sa kontekstom po ritmu, teksturi, visini venaca, a da ne pričamo o gabaritu. Interpolacije stare i nove arhitekture mogu biti lepa rešenja, ali se mora i tada poštovati odnos prema susedima.
Pritom, 3D renderi uopšte ne prikazuju pravo stanje u Zetskoj: u njoj nema kolovoza, niti je ulični profil na tom mestu ovako širok …
Smatram da bi kolege zaista trebalo da pristupe odgovornije projektovanju makar u područjima prostornih kulturno-istorijskih celina, jer ćemo ovakvim delovanjem ugroziti i ono malo istorijske arhitektonske baštine koju imamo. Interes investitora jeste bitan, ali ne sme biti ključan po cenu da ugrozi opšti javni interes i izgled gradova u kojima živimo.