U Višnjici planiran kaskadni kompleks Esperanza od preko 170.000 kvadrata
U dva objekta, sastavljena iz više povezanih kaskadnih lamela u više nivoa, ukupno su projektovana 1.083 stana, kao i 1.397 garažnih mesta pod zemljom.
Locirano na desnoj obali Dunava u dužini od gotovo 5 kilometara, beogradsko naselje Višnjica uskoro bi moglo da dobije stambeno-poslovni kompleks, spratnosti od 2Po+P+5+P do 3Po+Su+P+7+Ps, koji bi poneo naziv Esperanza (srp. nada).
Urbanistički projekat za njegovu izgradnju nalazi se do 11. januara 2024. godine na javnom uvidu, a izradila ga je Nada Popović iz beogradske firme „Studio N“, dok je investitor privatno lice iz Beograda.
Projekat arhitekture potpisuje Biro za projektovanje „Modular Plus“, takođe iz Beograda, sa Borisom Mitrovićem, dia, kao odgovornim projektantom idejnog rešenja.
Pročitajte još na Gradnja.rs:

Kaskadne lamele u više nivoa
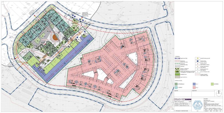
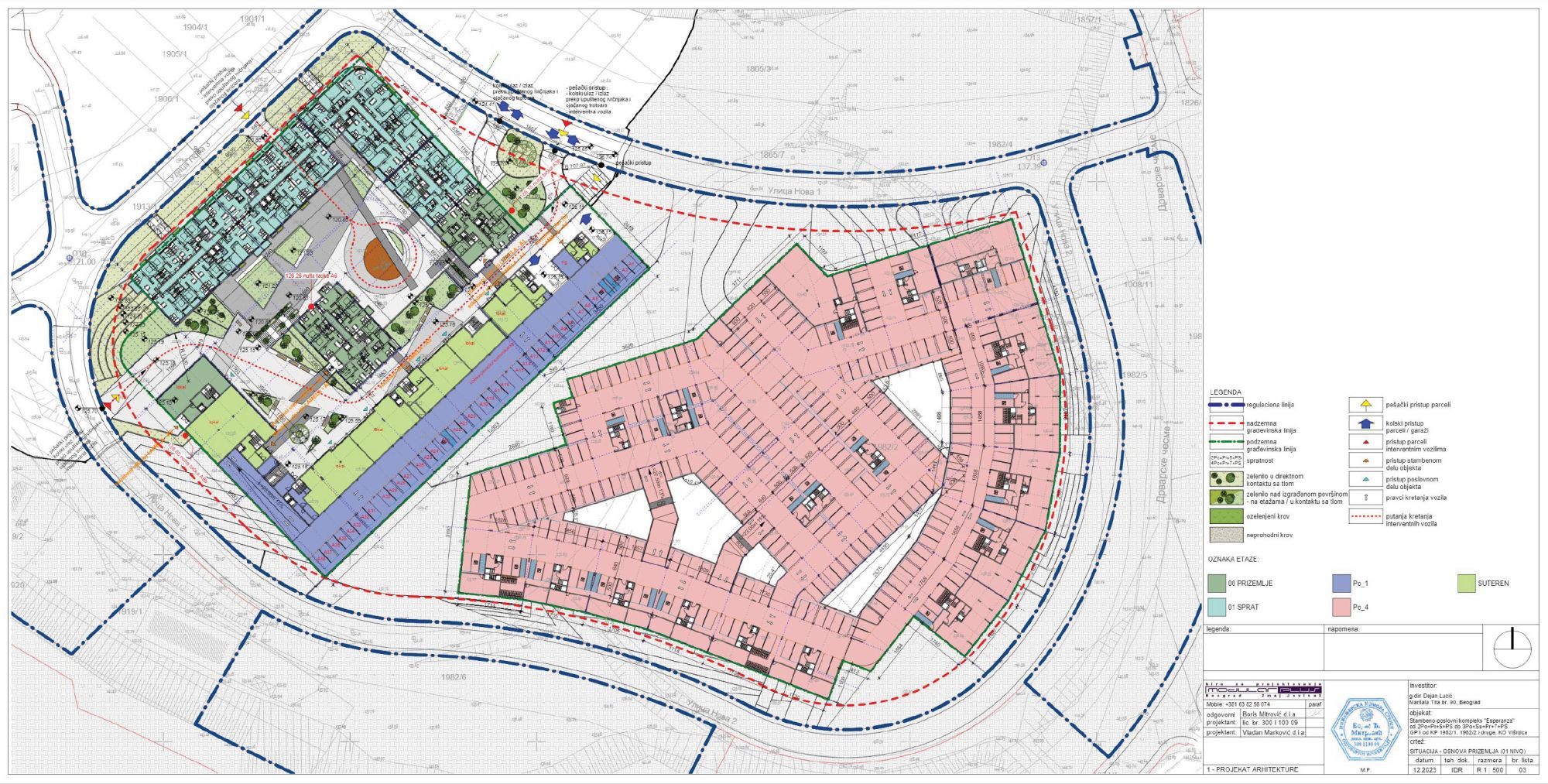
Prema projektu, planira se formiranje građevinske parcele GP1 od delova sedam katastarskih parcela u KO Višnjica. Predmetna građevinska parcela je nepravilnog oblika, zaobljenog pravougaonika, površine od oko 33.007 m².
Planirani stambeno-poslovni kompleks Esperanza čine dva stambeno-poslovna objekta, A i B, čija se realizacija planira u fazama. Svaki objekat se sastoji iz više skladno povezanih kaskadnih lamela u više nivoa u odnosu na teren i obodne saobraćajnice.
Objekat A, spratnosti 2Po+P+5+Ps – 3Po+Su+P+7+Ps se sastoji od osam lamela različite spratnosti i zajedničkim podzemnim delovima i garažom. Objekat B, spratnosti 3Po+P+6+Ps – 3Po+Su+P+7+Ps sastoji se od šest lamela različite spratnosti i zajedničkim podzemnim delovima i garažom.

Stanovanje je na višim etažama objekata, a podzemne etaže namenjene su garažiranju vozila, tehničkim prostorijama i ostavama stanara.
U nižim etažama objekata A i B planirano je poslovanje sa lokalima i različitim sadržajima poslovanja, kulture i zabave, kao i kapaciteti u svakom objektu za jedan depandans dečijih ustanova za grupe do 80 dece. Stanovanje je na višim etažama objekata, a podzemne etaže namenjene su garažiranju vozila, tehničkim prostorijama i ostavama stanara.
U objektu A projektovano je ukupno 460 stambenih jedinica različite strukture, 21 jedinica različitih poslovnih sadržaja i jedan depandans čiji je kapacitet 80 dece. Između lamela se nalaze podzemne korisne etaže i zajednička podzemna garaža za stacioniranje vozila za potrebe korisnika objekta A.

Skoro 1.400 parking mesta
U objektu B projektovane su ukupno 623 stambene jedinice različitih struktura, 18 jedinica različitih poslovnih sadržaja i jedan depandans čiji je kapacitet 80 dece. Između lamela se nalaze podzemne korisne etaže i zajednička podzemna garaža za stacioniranje vozila za potrebe korisnika objekta B.
U podzemnoj garaži objekta A je planirano 612 parking mesta od kojih je 42 PM namenjeno osobama s invaliditetom. U podzemnoj garaži objekta B je projektovano 785 parking mesta, od čega je 68 PM namenjeno za osobe s invaliditetom. U garažama i na otvorenom prostoru planirane su potrebne površine za „biciklane“ za parkiranje bicikala.

Promenada je u funkciji javnog korišćenja sa denivelisanim prodorom kroz sredinu kompleksa i različite širine.
Lamele oba objekta su pozicionirane na kaskadnim i denivelisanim platoima u skladu sa nagibom terena i planiranim saobraćajnim površinama. Sa platoa je omogućen pešački pristup objektima sa pripadajućim lamelama.
Glavnim pešačkim tokom – promenadom, ostvarena je kvalitetna pešačka komunikacija sa platoima između objekata, kao i veza sa planiranim ulicama Nova 1 na jugu i Nova 2 na severu. Promenada je u funkciji javnog korišćenja sa denivelisanim prodorom kroz sredinu kompleksa i različite širine.
Sa promenade je obezbeđen pristup na platoe između objekata i osobama sa smanjenom sposobnošću kretanja. Promenada ima za cilj da fizički i vizuelno poveže sve lamele u kompleksu, kao i objekte koji će biti realizovani u naspramnim Blokovima 1 i 3.

Ukupna BGRP 174.386 kvadrata
Pozicioniranjem objekata omogućeno je da se formiraju uređene slobodne i zelene površine, prostori za igru dece, obrada partera i urbani mobilijar savremenog izgleda (fontane, klupe) koji dominiraju prostorom.
Za objekte A i B je planirano po devet faza izgradnje. BRGP za objekat A iznosi 72.181 m², a za objekat B 102.205 m², čime dolazimo do ukupne bruto površine kompleksa od 174.386 kvadratnih metara.








Beogradskom naselju Hišnjica je prvo prekoptrebna infrastruktura, škole, vrtići, prevoz, saobraćajnice. Ne Šapićev ukraden 3D model škole.
Naselje već trpi ogroman pritisak prvo neplanske izgradnje, a kasnije i predimenzionisanog kompleksa Sanivil.
Samo vi gradite i urbanizujte, ipak je ovo GRAD, bolje nego ono djubre na tom mestu i bahatost roma koji terorišu ceo taj potez.
Slažem se da treba još škola i vrtića i da se bolje reguliše saobraćaj i infrastruktura.
Zania me kada se planira početak izgradnje?
Na mestu na kojem je planirana gradnja trenutno se nalazi vise deponija. To nije ni livada, nego siblje, iz kojeg strepite da li ce neka zivotinja ili manijak da iskoce. Tako da se jako radujemo ako se ovaj pln realizuje. Naravno, komentar koji je vec ostavljen da nema dovoljno prevoza i da treba planski sve da se radi, je istinit.