Aneks na kolibi: Pogledajte kako se rade proširenja kuća u Belgiji
Ovo je dobar primer kako se i u uz stogo poštovanje građevinskih regulativa može napraviti dobro rešenje aneksa.
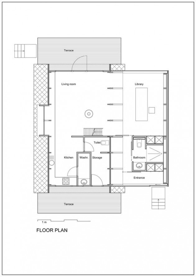
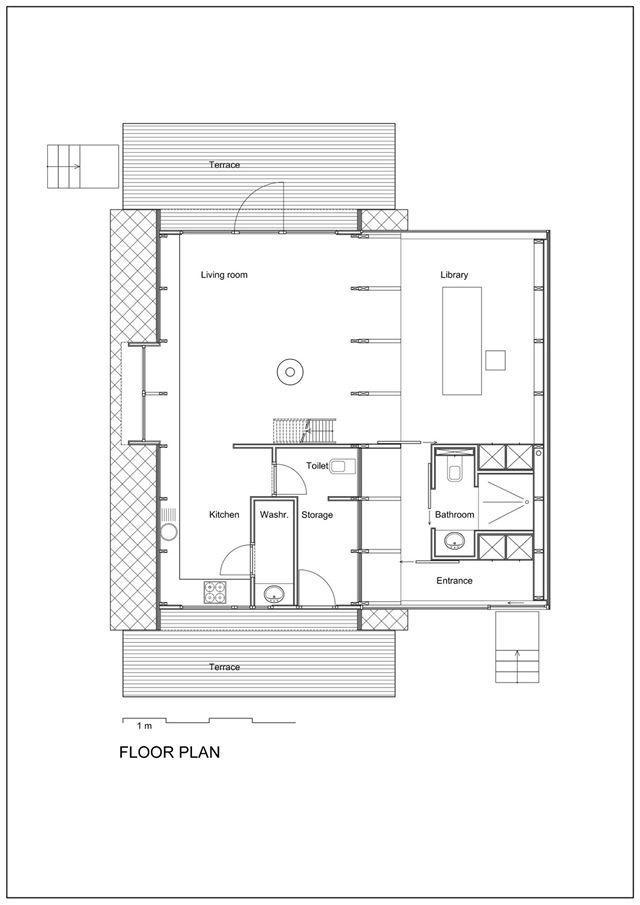
Arhitektonski biro dmvA isprojektovao je aneks za vikendicu koja je tipična za belgijske planine. Kućica sa dvovodnim krovom od „poda do plafona“ iako je dobro služila svojoj svrsi nije bila dovoljna da primi sve članove famijile. Zbog toga je i odlučeno da se krene u rekonstrukciju, odnosno, pravljenje dodatnog prostora za življenje.

Suportno svim očekivanjima, aneks je trapezoidne forme s velikim staklenim površinama koje pružaju sjajan pogled na pridodu. Krovna obloga je morala biti ista kao i originalna koliba, dok je enterijer potpuno osveženje. Ceo trapezoidni aneks uređen je u beloj boji i to s namerom da se stavi akcenat na prirodu – a ne na enterijer.

Aneks je ugostio dnevnu sobu, trpezariju, kuhinju i kupatilo dok je originalna koliba pretvorena u spavaonicu.
Beo zid, bele police: knjige razbijaju monotoniju!
Aneks je podignut veoma brzo zahvaljujući čeličnoj konstrukciji.
Foto: Mick Couwenbergh






