Mega fabrika Continental u Kaću postaće skoro tri puta veća
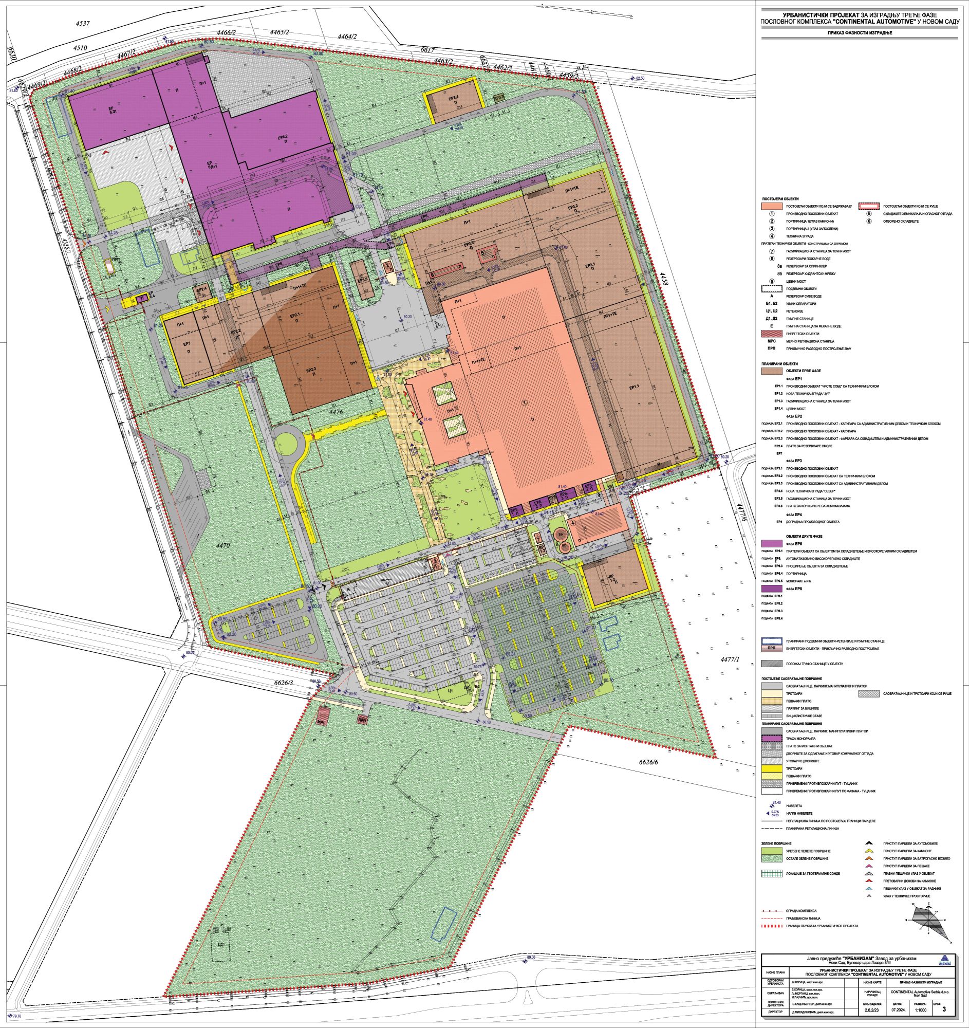
U kompleksu dimenzija 815 x 470 metara kod Novog Sada planira se izgradnja novih objekata na 67.000 kvadrata sa 463 parking mesta.
Kompanija Continental AG je tehnološki gigant koji zapošljava oko 200.000 ljudi u 56 zemalja i tržišta, a u Srbiji trenutno posluje u dva grada, Novom Sadu i Subotici, i to na tri lokacije.
Što se tiče Novog Sada, fabrika Continental posluje u pogonu otvorenom u naselju Šangaj u martu 2021. godine, te u megafabrici u obližnjem Kaću, koja je počela sa radom u februaru 2023. godine. Međutim, ova megafabrika izgleda nije dovoljno mega jer sledi novo proširenje.
Naime, javnosti je ovih dana predstavljen urbanistički projekat za izgradnju treće faze poslovnog kompleksa Continental Automotive u Novom Sadu, a mi vam donosimo detalje.
Pročitajte još na Gradnja.rs:
Izgradnja kompleksa u dve faze
Urbanističkim projektom obuhvaćen je proizvodni kompleks za proizvodnju elektro-delova kompanije Continental Automotive Serbia d.o.o. Novi Sad, predviđen na KP 4470 KO Kać.
Idejno rešenje treće faze Continentalovog poslovno-proizvodnog kompleksa izradio je NORTH Engineering iz Subotice, sa Jelenom Popović, dia, kao odgovornim projektantom.
Izgradnja kompleksa, na parceli koja zauzima površinu od 31,63 ha, planirana je u fazama, dok su predmet ovog urbanističkog projekta I i II faza izgradnje.
U budućnosti je planirano i dodatno proširenje, te će u konačnoj fazi kompleks predstavljati jedinstvenu prostornu celinu, navodi se u dokumentaciji, koju možete preuzeti ovde.

Kompleks dimenzija 815 x 470 metara
Planirani kompleks je nepravilnog oblika, definisan geometrijom i dispozicijom prvobitnih poljoprivrednih parcela, čijim je objedinjavanjem formiran kompleks dimenzija 815 x 470 metara.
U I i II fazi proširenja postojećeg kompleksa planira se izgradnja objekata za proizvodnju i sklapanje elektro i ostalih auto-delova.
Prošireni proizvodni kompleks sastojaće se od proizvodnih, administrativno-proizvodnih i pomoćnih objekata koji su u njihovoj funkciji, kaže se u UP-u.
Postojeći objekti u proizvodnom kompleksu zauzimaju 2,38 hektara, dok se planirani objekti prostiru na 67.060 kvadratnih metara sa bruto razvijenom građevinskom površinom koja će iznositi 11,58 ha. To znači da će se proširenje proizvodnih kapaciteta povećati za skoro tri puta.

Ukupno su za obe faze planirana 463 parking mesta, koja su pozicionirana unutar kompleksa, izvan njegovog ograđenog dela.
Ukupno su za obe faze planirana 463 parking mesta, koja su pozicionirana unutar kompleksa, izvan njegovog ograđenog dela.
„Parking će se graditi fazno i pratiće faznost i potrebe glavnih objekata na parceli“, navodi se u UP-u.
Osim toga, postojeća ograda visine 2,30 m izvedena oko kompleksa će se delimično rekonstruisati i nadograditi da obuhvati sve objekte I i II faze.
Predviđen i monorail sistem za transport
Rešenje obuhvata izgradnju objekata u kojima će se odvijati procesi proizvodnje auto-delova i administrativni poslovi. „Funkcionalne celine po planiranim fazama su posledica organizacije proizvodnog procesa“, kaže se u UP-u.
Zanimljivo je istaći i da se u svim proizvodnim objektima predviđa rezervni prostor za kasniju ugradnju monorail sistema za transport sirovina i proizvoda između objekata, ali navedeni transportni sistem nije predmet ovog projekta.

Poštovani
Interesuje me posao u vašoj industriji.
Šta Treba priložiti za konkurs?
Pošovanje
Svetlana Kostadinović