Dvovodni krov u novom ruhu: Savremena kuća na zahtevnoj parceli u Kragujevcu
Na terenu koji je diktirao svaki korak projektovanja nastala je kuća koja klasičnu formu spaja sa savremenom arhitekturom u skladnu celinu sa bazenom.
U naselju Vinogradi, nadomak Šumarica i na svega desetak minuta od centra Kragujevca, izgrađena je porodična kuća koja klasičnu formu doma pretvara u savremeni oblikovni izraz. Arhitekturu ovog objekta potpisuje Narch2 STUDIO, sa Ninom Radojević kao glavnim projektantom.
Specifična topografija terena i izuzetno uska parcela zahtevali su precizno promišljanje svake kote i svakog poteza. Upravo ti prostorni izazovi postali su polazna tačka za formiranje jednostavnog, čistog volumena sa dvovodnim krovom, osmišljenog da pruži visok nivo funkcionalnosti i udobnosti.
„Ideja je bila da klasičnu formu porodičnog doma reinterpretiramo u modernu kuću prilagođenu prostoru“, navode autori.
Pročitajte još na Gradnja.rs:

Od zahteva do koncepta
Investitori su projektantskom timu postavili jasne, ali nenametljive smernice. Glavni zahtevi bili su dovoljan broj prostorija, kvalitetni materijali i organizacija prostora u jednom nivou kada je reč o spavaćoj i dnevnoj zoni. Sve ostalo prepustili su arhitektama – i u velikoj meri ispoštovali originalni predlog.
Rezultat takvog poverenja je jednostavna pravougaona forma sa dvovodnim krovom, osmišljena kao savremena reinterpretacija tradicionalnih kuća. Umesto da menja postojeći ambijent susedstva, arhitektura ovog objekta se uklapa u postojeći ambijent, stvarajući sklad između prostora, funkcije i forme.
Centralni motiv kuće je dnevna zona otvorenog koncepta, naglašena visokim plafonima i velikim staklenim površinama.
Centralni motiv kuće je dnevna zona otvorenog koncepta, naglašena visokim plafonima i velikim staklenim površinama koje brišu granicu između enterijera i eksterijera. Kuća se tako prirodno otvara ka zelenoj bašti, omogućavajući stalnu vezu sa pejzažem.
Savremeni vizuelni identitet postignut je belim arhitektonskim ramom sa skrivenim olucima, toplim klinker listelama i širokim aluminijumskim staklenim poljima sa spoljnim venecijanerima. Dinamika fasade proističe iz ravnoteže između minimalističkog pristupa i rustičnih materijala.

Topografija koja diktira rešenje
Parcela dimenzija 13,5 x 65 metara nalazi se u značajnom padu ka ulici, što je postavilo jasne izazove: kako organizovati objekat linearne forme, a istovremeno ispoštovati sve urbanističke parametre? “Početna tačka za razradu projekta bio je precizan odabir kote prizemlja na ovakvom terenu” – navode arhitekte.
Kuća je postavljena duž pravca sever–jug, dok je nagib terena iskorišćen za formiranje suterena sa dve garaže, tehničkim prostorijama i komunikacijom ka prizemlju. S druge strane, pomoćni objekat, bazen i zelene površine nalaze se u zadnjem, severnom delu parcele, gde je blagim ukopavanjem formiran intiman plato za boravak na otvorenom.
Materijali i konstrukcija
Objekat je projektovan sa masivnim giter blok zidovima debljine 25 cm u kombinaciji s AB seizmičkim elementima, čime je postignuta stabilnost konstrukcije. Krov je dvovodni, nagiba 35°, sa drvenom konstrukcijom, dok je pomoćni objekat rešavan jednostavnije – krovom na jednu vodu sa čeličnom potkonstrukcijom.
Bazen dimenzija 9,5 x 4 m izveden je kao armiranobetonska celina, a čitav kompleks obložen je termoizolacionim slojevima u skladu s propisima energetske efikasnosti.
Fasada kombinuje tri završna tretmana: dekorativni malter, alubond panele i klinker listelu – što daje vizuelnu dinamiku, ali i materijalnu raznolikost u skladu sa funkcionalnim celinama.

Klasična prostorna organizacija
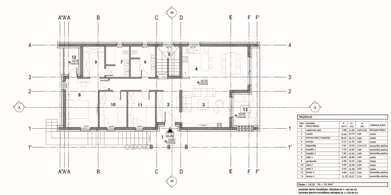
Ulaz u kuću rešavan je bočnim pristupom preko pešačke staze i stepeništa, dok prilaz garaži prati prirodni pad terena i nalazi se na najnižoj koti parcele.
Prizemlje je na klasičan način podeljeno na dve funkcionalne celine: spavaći blok sa sobama, garderobom, dva kupatila i terasom, i dnevni blok koji čine dnevna soba, kuhinja i trpezarija u jedinstvenom, otvorenom prostoru.
S druge strane, pomoćni objekat obuhvata tuš i toalet namenjenog korisnicima bazena, tehničku prostoriju i ostavu, kao i letnju kuhinju sa velikim stolom za okupljanja na otvorenom.

Enterijer: toplina minimalizma
“Od samog početka projektovanja, razmišljali smo i o enterijeru. Ideja je bila da ukupan prostor deluje moderno, umirujuće i prirodno, sa naglaskom na kvalitet materijala i vizuelnu jednostavnost” – navode projektanti.
Čiste linije, obilje svetlosti i drveni akcenti stvaraju smirujuću atmosferu. Rasveta je posebno projektovana – od ambijentalnih izvora do dekorativnih lustera koji prostoru daju identitet.
“Neutralna paleta, hrastovo drvo i diskretan dizajn nameštaja naglašavaju osećaj prostranosti i elegancije.” – kažu arhitekte.

Okućnica kao produžetak dnevne zone
Uređenje dvorišta koncipirano je kao sastavni deo arhitektonskog rešenja. Severna zona, koja se vizuelno nastavlja na dnevni boravak, oblikovana je kao zelena oaza sa fokusnim tačkama u vidu masline, magnolije i crvenog javora.
“Automatski sistem zalivanja, solarna i niska rasveta, reflektori usmereni ka dekorativnom rastinju i pažljivo planirane pešačke površine doprinose atmosferi prijatnog porodičnog ambijenta tokom cele godine.” – navode projektanti.
Površine na tlu izvedene su od štampanog betona, dok su oko bazena postavljene protivklizne pločice koje se nastavljaju na pomoćni objekat.

Maksimum iz izazovne parcele
Fotografije












Faktografija
Porodična kuća sa bazenom
Kragujevac
Neda i Uroš Radivojčević
Narch2 STUDIO, Nina Radojević
2023.
2024-2025.
380 m2
Su+P
Jovana Rakezić




