Mladolika Mladinska knjiga: Nekadašnja slovenačka štamparija doživela totalni preobražaj
Štamparija je zatvorena, mašine prodate, a velika betonska struktura ostala je prazna. Međutim, arhitekte iz OFIS-a su oživele prostor poštujući industrijsko nasleđe.
Tokom 1960-ih godina, najistaknutiji predstavnik takozvane Ljubljanske škole arhitekture, modernistički arhitekta Savin Sever (1927–2003) projektovao je štampariju Mladinske knjige, slovenačkog izdavačkog preduzeća osnovanog 1945. godine.
Objekat je svojom modularnom, repetitivnom vidljivom betonskom konstrukcijom, koja je predstavljala njegov ključni arhitektonski izraz, bio pravi dragulj slovenačke arhitekture, kao i jedna od najvećih i najmodernijih štamparija svog vremena.
Pročitajte još na Gradnja.rs:

Kreativci stvorili novi interes za lokaciju
Stara štamparija u Ljubljani modernizovana je početkom 21. veka, a tadašnje rukovodstvo je štampariju opremilo i najsavremenijim mašinama, ali one, nažalost, nisu dugo ostale savremene.
Ubrzo, izmenjeni kontekst štamparske industrije, kao rezultat novih digitalnih tehnologija, pokazao se kao fatalan za tradicionalnu štampariju.
Štamparija Mladinske knjige je ubrzo zatvorena, većina mašina je prodata, a velika struktura je ostala prazna narednih nekoliko godina.
Ipak, nekoliko kreativnih preduzeća pronašlo je svoj dom unutar zgrade i jedinstven program je počeo da se razvija i da stvara novi interes za lokaciju.

Budući da je struktura bila inicijalno dimenzionisana za teške mašine, mogao se razmotriti širok spektar modernih primena, bez dodatnih ojačanja.
Novi vlasnik objekta odlučio se za renoviranje 2022. godine, angažovavši za ovaj projekat renomirani ljubljanski studio OFIS Arhitekti.
S obzirom na to da je postojeća struktura zaštićena, a u svakom slučaju je i toliko interesantna kao izraz Severovog izuzetnog arhitektonskog pristupa, bilo je nezamislivo srušiti je.
Budući da je zgrada štamparije bila inicijalno dimenzionisana za teške mašine, mogao se razmotriti širok spektar modernih primena, bez dodatnih ojačanja, objasnile su arhitekte.

Kako zagrejati zgradu
Najveći izazov predstavljala je toplotna izolacija zgrade. Naime, postavljalo se pitanje kako obezbediti moderne toplotne uslove u zgradi koja je izgrađena obrnutom logikom?
Tanak okvir, prepun toplotnih mostova, prvobitno je služio za odvođenje viška toplote koju su proizvodite štamparske prese. Sada je princip morao da se obrne. Vidljive betonske strukture trebalo je očuvati, a dodati im toplotnu izolaciju.
Arhitekte su se suočile sa ovim izazovom na način da toplotnu izolaciju postavili unutar zgrade i izveli su dodatna zastakljenja, što je omogućilo i da staklene prizme na krovu ostanu netaknute. Postavljene između betonskih elemenata, one pružaju prirodnu svetlost kroz čitavu dubinu zgrade.

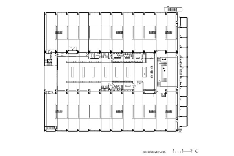
Novi, monumentalni ulaz uveden je sa južne strane, a amfiteatralne stepenice stvaraju neku vrstu urbanog trga unutar zgrade.
Renoviranje fasade zasnovano je na Severovim originalnim planovima koji nisu u potpunosti realizovani tokom izgradnje zgrade. Naime, Sever je imao ideju o postavljanju cementnih panela, ali su elementi bili preskupi, pa je fasada umesto toga napravljena od modularne opeke.
Jedina značajna promena u originalnoj strukturi zgrade bila je pri oblikovanju novog ulaza u objekat. Naime, zaposleni su prvobitno ulazili u zgradu kroz svlačionice u kancelarijskom krilu, a ovakav sistem nije bio pogodan za potrebe renovirane zgrade.
Novi, monumentalni ulaz uveden je sa južne strane, a amfiteatralne stepenice stvaraju neku vrstu urbanog trga unutar zgrade, dočekujući ljude koji ulaze i služeći kao mesto sastanka.

Novi sadržaji u kontekstu zaboravljenog nasleđa
Takođe, na ovaj način je omogućeno pružanje prostora za organizovanje raznovrsnih događaja i nastupa. Ovaj prostor sadrži i segmente štamparskih mašina iz originalne zgrade, čime se prikazuje i čuva sećanje na prethodnu upotrebu zgrade.
Tokom poslednjih decenija nekoliko zgrada iz Severovog opusa je srušeno. I pored toga što je i sam Sever zagovarao principe funkcionalizma i ideju da, kada zgrada više ne ispunjava svoju funkciju treba da bude zamenjena novom, ove zgrade su uglavnom srušene kao rezultat ekonomskog interesa.
Nasuprot tome, stara štamparija je sa poštovanjem renovirana i dobila je novu priliku za život, te je ovo i veliko odavanje poštovanja njenom kreatoru i pružanje paradigme za nove savremene sadržaje u kontekstu zaboravljenog industrijskog nasleđa.
Grafički prilozi
Foto-galerija












Faktografija
Stara štamparija Mladinske knjige
Ljubljana, Slovenija
OFIS Arhitekti
2024.
Tomaž Gregorič, Janez Martinčič, OFIS Architects




