U Gospodara Vučića planiran novi stambeni blok – javni uvid do 9. februara
Prva zgrada u nizu, od preko 2.100 kvadrata, imaće 20 stanova, dva poslovna lokala kao i ukupno 30 parking mesta.
Kompanija Beomarket invest d.o.o. iz Beograda planira izgradnju petospratnice u okviru budućeg stambeno-poslovnog bloka između ulica Gospodara Vučića i Generala Horvatovića.
Urbanistički projekat izradio je beogradski IBM Consult, obrađivač idejnog rešenja je projektni biro Studio Tekto (Stara Pazova/Zemun), odgovorni urbanista je Ivana Stanojević, dia, a odgovorni projektant arhitekture Marjana Ljevaja, dia.
Pročitajte još na Gradnja.rs:

Deo budućeg stambeno-poslovnog bloka
Granica projekta definisana je granicom KP 21563 KO Vračar u Beogradu, koja ujedno predstavlja i građevinsku parcelu GP01 površine 480 kvadrata.
Parcela celim frontom izlazi na obe saobraćajnice, što omogućava dobru pristupačnost i funkcionalnu organizaciju budućeg stambeno-poslovnog objekta, navodi se u urbanističkom projektu na javnom uvidu.
Kao što možemo videti iz urbanističkog projekta, planiran je niz zgrada slične geometrije koje će verovatno biti predmet dalje razrade.

Kao što možemo videti iz urbanističkog projekta, planiran je niz zgrada slične geometrije koje će verovatno biti predmet dalje razrade.
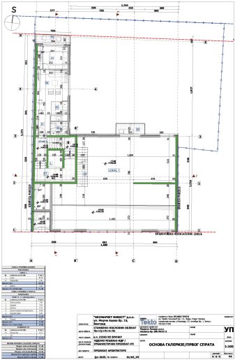
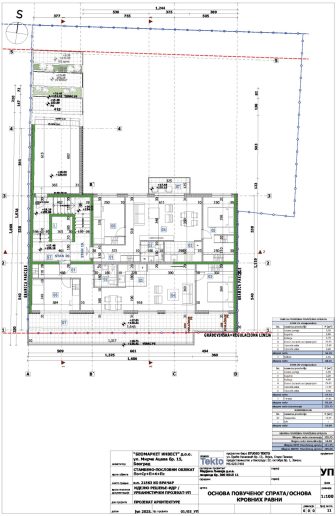
Što se tiče predmetne zgrade, iz idejnog rešenja može se videti da je planirana izgradnja objekta spratnosti Po+Su+P+4+Ps, koji je funkcionalno podeljen u tri celine: stambenu, poslovnu i garažu.
Na podzemnim etažama (podrum i deo suterena) smešten je prostor za parkiranje vozila i tehničke prostorije, na nadzemnom delu suterenske etaže, u delu prizemlja i na galeriji smešteno je poslovanje, a na ostalim etažama smešteno je stanovanje.

U sklopu objekta projektovano je 20 stambenih jedinica, dva lokala i 26 garažnih mesta, dok su 4 parking mesta smeštena na teren.
U sklopu objekta projektovano je 20 stambenih jedinica, dva lokala i 26 garažnih mesta, dok su 4 parking mesta smeštena na teren (na nivou suterenske etaže). Od ukupnog broja parking mesta (30) dva mesta su namenjena licima sa invaliditetom.
Ukupno planirana bruto površina objekta iznosi 2.118 m², a ukupna neto površina 1.855 m². Ostvareni odnos neto površina stanovanje : poslovanje iznosi 78,35% (953,15 m²) : 21,65% (263,45 m²).
Na javnom uvidu do 9. februara
Zainteresovana lica mogu tokom javne prezentacije da izvrše uvid u urbanistički projekat, kao i da svoje primedbe i sugestije na planirana rešenja u pisanoj formi dostave na pisarnicu Sekretarijata za urbanizam i građevinske poslove, Ulica kraljice Marije br. 1, najkasnije do 9. februara 2026. godine.






