Vila Jelena dobija novo ruho: Rekonstrukcija i nadgradnja na Savskom vencu
Urbanistički projekat predviđa rekonstrukciju secesijske vile i dogradnju objekta ukupne površine od 7.889 kvadrata.
Smeštena na uglu ulica Kneza Miloša i Miloša Pocerca na Savskom Vencu, znamenita Vila Jelena uskoro bi mogla biti rekonstruisana i dograđena prema projektu beogradskog studija Bureau Cube Partners, dok je investitor PD Vikasia d.o.o. iz Beograda.
Urbanistički projekat sa idejnim rešenjem za izvođenje ove arhitektonsko-urbanističke intervencije nalazi se na javnom uvidu do 29. avgusta, kao odgovorni urbanista potpisana je Ana Šuman, dia, a kao odgovorni projektant Milan Rašković, dia.
Pročitajte još na Gradnja.rs:

Idejnim rešenjem novoprojektovani poslovno-stambeni objekat je oformljen kao budući dvostrano uzidani ugaoni objekat, spratnosti 3Po+Su+Pr+5.
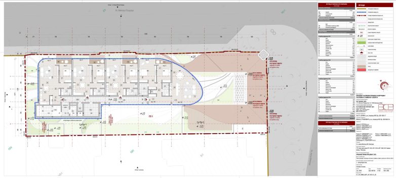
Predmetna zona urbanističkog projekta obuhvaćena je građevinskom parcelom GP1, površine od 1.094 m², koja se formira od celih KP 1318, 1319 i 1320, KO Savski venac. Prostor obuhvaćen granicom UP-a definisan je ulicom Miloša Pocerca na severoistoku i ulicom Kneza Miloša na jugoistoku, sa kojima uspostavlja regulaciju.
U postojećem stanju, na prostoru koji je u obuhvatu urbanističkog projekta, na KP 1318 KO nalazi se prizemni objekat koji je planiran za uklanjanje, na KP 1319 nalazi se objekat spratnosti Pr+2, takođe planiran za uklanjanje, dok se na KP 1320 nalazi se objekat spratnosti Su+Pr+2, Vila Jelena, planiran za rekonstrukciju i dogradnju.
U odnosu na sagledano stanje, objekat je lošeg boniteta. Konstrukcija pokazuje vidljive znake propadanja, dok su svi sistemi unutar objekta nefunkcionalni i zahtevaju zamenu. „Tokom eksploatacije objekta vršene su izmene i u enterijeru, te se danas sa sigurnošću ne može utvrditi koje su sve promene nastale tokom godina“, navodi se u UP-u.

Na četiri etaže predviđeno 18 stanova
Idejnim arhitektonskim rešenjem rekonstrukcije i dogradnje novoprojektovani poslovno-stambeni objekat je oformljen kao budući dvostrano uzidani ugaoni objekat, spratnosti 3Po+Su+Pr+5. Ukupna bruto razvijena građevinska površina celog objekta iznosi 7.889 m² – od čega 5.101 m² otpada na nadzemni, a 2.788 m² na podzemni deo.
Objekat je po funkcionalnim celinama organizovan je kao poslovno-stambeni objekat, u kome je urbana funkcija poslovanja realizovana na suterenu i prizemlju kroz 6 poslovnih prostora, od prizemlja do treće etaže kroz 17 poslovnih apartmana, dok je urbana funkcija stanovanja realizovana od druge do pete etaže kroz 18 stambenih jedinica.
Podzemni deo novoprojektovanog poslovno-stambenog objekta projektovan je u tri etaže – Po3, Po2 i Po1 – sa dvosmernim kolskim pristupom iz ulice Miloša Pocerca. U okviru podzemne garaže ostvareno je ukupno 71 parking mesto, od čega je 12 parking mesta namenjeno za osobe sa invaliditetom.

Ulične fasade Vile Jelena predviđene su za temeljno rekonstruisanje sa akcentom na očuvanju autentičnih dekorativnih elemenata.
Kako se navodi u IDR-u, koncept novoprojektovanog objekta je zasnovan na principu dijaloga i kontrasta, u kome postojeća Vila Jelena predstavlja masivan, secesionistički dekorisan i artikulisan volumen, dok se novi objekat razvija u dinamičnom, transparentnom i linearnom sistemu, sa zakrivljenim i povučenim fasadnim ravnima koje po prirodi svoje geometrije omekšavaju masu i uspostavljaju prostorni ritam.
„Ulične fasade Vile Jelena u planiranoj intervenciji su predviđene za temeljno rekonstruisanje sa akcentom na očuvanju autentičnih dekorativnih elemenata. Nasuprot tome, fasada dograđenog dela obrađena je kroz savremene principe transparentnosti i slojevitosti na fasadi: primenjena je perforirana metalna oplata u ulozi membrane, koja deluje i kao funkcionalna zaštita (zaseni na objektu) i kao dekorativni element,“ dodaje se.

Javni uvid do 29. avgusta
Zainteresovana lica mogu tokom javne prezentacije da izvrše uvid u Urbanistički projekat, kao i da svoje primedbe i sugestije na planirana rešenja u pisanoj formi dostave na pisarnicu Sekretarijata za urbanizam i građevinske poslove, Kraljice Marije br. 1 najkasnije do 29. avgusta 2025. godine.
Grafički prilozi











Opet Biro Kjub Partners…
I opet loše rešenje….
Iju, ludilo! Malo liči na Zahu ali nema veze volim ovako kada je hrabro.
Horor film.
Da smo neka drzava letele bi licence za ovakve projekte.
Sramota za struku i za nas sto prustamo da ivakvu projekti budu izvedeni!
Sta bi vi promenili u resenju?
Smanjio spratnost za pocetak. Iako je to nesto o cemu odlucuju urbanisti i institucije, to ne abolira arhitekte ako ucestvuju u ovakvoj travestiji.
građevinski vandalizam se nastavlja nesmanjenom žestinom…sve dok potuno ne izgubimo svaki duh i atmosferu proteklog vremena!
Nakaradno
Uzasno, dokle cete da unistavate sve sto je iole bilo vredno u ovoj zemljmi od objekata i kulturne bastine!?
Strašan neukus, bez ikakvog osećaja za formu i za kontekst. Ovakve krivine pristaju na Novom Beogradu u starom gradu nikako!