U Bogdana Bogdanovića na Mirijevu planirana četvorospratnica sa 16 stanova
Urbanistički projekat predviđa stambeni objekat od gotovo 1.500 kvadrata, sa 18 parking mesta u podzemnim etažama.
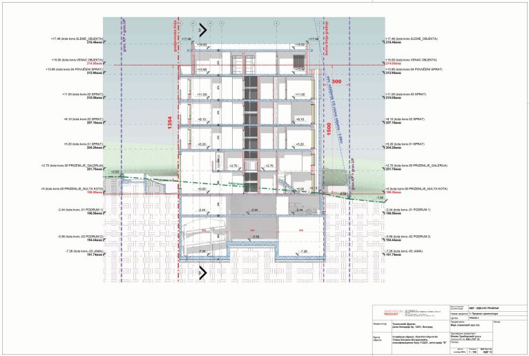
U beogradskom naselju Mirijevo, u ulici koja nosi ime proslavljenog srpskog arhitekte i umetnika Bogdana Bogdanovića, planirana je izgradnja stambene četvorospratnice sa dve podrumske etaže, saznajemo iz urbanističkog projekta koji se do 27. novembra nalazi na javnom uvidu.
Predmetni urbanistički projekat izradio je biro Arhitektura produkt iz Beograda, kao odgovorna projektantkinja urbanističkog dela potpisana je Iva Mihaela Babkova, miu, a kao odgovorni projektant arhitektonskog dela Filip Zumberović, dia. Investitor je fizičko lice sa adresom na Novom Beogradu.
Pročitajte još na Gradnja.rs:

Zgrada od skoro 1.500 kvadrata
Urbanističkim projektom obuhvaćena je katastarska parcela 3316/10, KO Mirijevo, koja je formirana kao građevinska parcela, u ulici Bogdana Bogdanovića. Granicom urbanističkog projekta obuhvaćen je prostor u ukupnoj površini od 540 m².
Novoprojektovani objekat je po tipu izgradnje slobodnostojeći objekat, po nameni stambeni, spratnosti Po2+Po1+P+3+PS. Ostvarena BRGP podzemnih etaža iznosi 524 m², nadzemnih 974 m², čime dolazimo do ukupne BGRP objekta od 1.498 m². Ukupna neto (korisna) površina objekta iznosi 1.452 m².

Projektovano 16 stambenih jedinica
Na etaži prizemlja organizovane su četiri stambene jedinice, dupleksi, i ulaz/komunikacija u objekat. Na etaži prvog i trećeg sprata su projektovane po tri stambene jedinice, na drugom spratu smeštene su četiri stambene jedinice, dok su na etaži povučenog sprata organizovane dve stambene jedinice.
U podrumima je ostvareno ukupno 18 parking mesta, od čega je za potrebe parkiranja vozila lica sa posebnim potrebama obezbeđeno jedno mesto. Planiran i je prostor za parkiranje bicikala, navodi se u urbanističkom projektu.
Primedbe i sugestije do 27. novembra
Zainteresovana lica mogu tokom javne prezentacije da izvrše uvid u urbanistički projekat, kao i da svoje primedbe i sugestije na planirana rešenja u pisanoj formi dostave na pisarnicu Sekretarijata za urbanizam i građevinske poslove, Kraljice Marije br. 1, najkasnije do 27. novembra 2025. godine.






