Linearni kondominijum dužine 185 metara gradiće se u Novim Banovcima
Urbanistički projekat na javnom uvidu otkriva stambeni kompleks sa četiri dvospratne lamele raspoređene linearno duž parcele.
Odeljenje za urbanizam i građenje Opštinske uprave opštine Stara Pazova oglasilo je u sredu, 3. decembra, javnu prezentaciju urbanističkog projekta za izgradnju kondominijumskog naselja u Novim Banovcima, čiji je investitor lokalno preduzeće Karamarković d.o.o.
Nosilac izrade urbanističkog projekta je Aliquantum d.o.o. iz Novog Sada, odgovorni urbanista je Zoran Rašević, dia, dok je obrađivač projekta arhitekture studio MrsArchitecture iz Stare Pazove, sa Marijom Prokić, dia, imenovanom za glavnog projektanta.
Pročitajte još na Gradnja.rs:

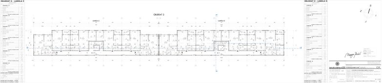
Izgradnja kondominijumskog naselja u Novim Banovcima obuhvatiće dva dvospratna objekta ukupne dužine 185 metara.
Granica obuhvata urbanističkog projekta jesu cele katastarske parcele 94, 584/1 i 585/1, KO Novi Banovci, i deo katastarske parcele 1019/2 koja predstavlja javnu površinu, odnosno saobraćajnicu na koju će se priključiti budući objekat.
Prema PGR-u, deo katastarskih parcela 584/1 i 585/1 se odvaja za ulicu Nova 43, a površina novoformirane parcele na kojoj je planirana izgradnja posle parcelacije i preparcelacije iznosi 4.873 m². Na KP 94 nalazi se porodična stambena zgrada predviđena za rušenje.

Dva objekta ukupne dužine 185 metara
Kako se navodi u dokumentaciji, izgradnja kondominijumskog naselja u Novim Banovcima obuhvatiće dva objekta višeporodičnog stanovanja – Objekat 1 (Lamele A i B) i Objekat 2 (Lamele C i D), oba spratnosti Po+P+2, ukupne dužine 185 metara.
U planiranim objektima projektovano je ukupno 75 stambenih jedinica, po strukturi isključivo dvosobnih i trosobnih. Ukupna bruto razvijena građevinska površina za oba objekta iznosi 4.689 m² (Objekat 1 – 2.430 m², Objekat 2 – 2.259 m²).
Projektovano je 11 parking mesta za putnička vozila u okviru parcele i 64 GM u garažama objekata, što zadovoljava potrebe parkiranja za planiranih 75 stanova, navodi se. Od ukupnog broja garažnih i parking mesta, četiri su predviđena za lica sa invaliditetom.

Primedbe i sugestije do 12. decembra
Zainteresovana lica mogu u toku javne prezentacije da izvrše uvid u urbanistički projekat u zgradi Opštine u Staroj Pazovi, kao i na internet stranici Opštine Stara Pazova.
Svoje primedbe i sugestije na planirana rešenja zainteresovani u pisanoj formi mogu da dostave Odeljenju za urbanizam i građenje, OU Stara Pazova, ul. Svetosavska br. 11, najkasnije do 12. decembra 2025. godine (petak).









Užas, užas. Šta dobijaju u tih 200m, parking ispred zgrade i ništa više.
Jel moguće da su stanovi okrenuti ka severu, a hodnik ka jugu? Tako bar stoji oznaka na osnovama.
Moguce je, i pozeljno. Pre 20-30 godina jos uvek se preferiralo stanovanje sa pogledom na jug, ali tada se leti temperatura panjala do 32-3 stepena u proseku leti. Sa danasnjom klimom ljudi traze sever. Komforniji zivot, bez potrebe da su ti celo leto spustene roletne i zivis u mraku, i sa drasticno manjim racunom za struju zbog manjeg koriscenja klime….
Žrtva komfomizma.
Ma moglo je to još bar 70 80 m.
„Kondiminijum“ je zatvorenog tipa,sa svim potrebnim objektima i zelenilom u sredini,a ovo je „lamela“ pored kukuruza,u Novim Banovcima…
😀