Od vojne kantine do hotela sa pet zvezdica: Centrale u srcu Luštice
Projekat je zasnovan na očuvanju postojeće konstrukcije i njenoj transformaciji u savremeni butik hotel koji spaja industrijsko nasleđe i luksuznu ugostiteljsku ponudu.
Na trgu Centrale Piazza u Luštica Bayu izgrađen je Butik Hotel Centrale, projekat podgoričkog studija NRA Atelier, koji kroz očuvanje i adaptaciju postojeće armirano-betonske konstrukcije reinterpretira duh nekadašnje vojne radionice i kantine. Arhitektonski koncept zasnovan je na ideji da se industrijski identitet prostora transformiše u savremenu formu, uz dodavanje novih sadržaja i funkcija koje odgovaraju standardima hotela sa pet zvezdica.
Projektovan u duhu gradskog butik koncepta, objekat od preko 3.200 m² osmišljen je sa ciljem da “reinterpretira genius loci kroz savremeni arhitektonski izraz, uspostavljajući novu funkciju u jedinstvenoj prostornoj i estetskoj sintezi.” – kažu arhitekte.
Pročitajte još na Gradnja:

Forma objekta proizlazi iz postojeće konstrukcije – dve volumetrijski čiste mase sa dvovodnim krovovima, reinterpretirane kroz savremenu nadogradnju.
Kako objašnjavaju podgoričke arhitekte, Butik Hotel Centrale izgrađen je na mestu nekadašnje vojne radionice i kantine, a postojeći kontekst poslužio je kao inspiracija za arhitektonski koncept, koji je zasnovan na očuvanju i adaptaciji postojeće armirano-betonske konstrukcije.
“Originalni stubovi, međuspratne ploče i temelji su dodatno ojačani i integrisani u novu konstrukciju sa ciljem zadovoljenja savremenih standarda gradnje, uz nadogradnju jednog sprata koji je omogućio proširenje kapaciteta bez narušavanja kompaktnosti volumena“, kažu iz NRA.
Reinterpretacija industrijskog identiteta
Forma objekta proizlazi iz postojeće konstrukcije – dve volumetrijski čiste mase sa dvovodnim krovovima, reinterpretirane kroz savremenu nadogradnju. Sačuvan betonski skelet – stubovi i grede – naglašen je kao fundamentalni element identiteta objekta, kažu arhitekte.
Između njih, dodaju, staklene površine sa izraženim podelama evociraju duh industrijske arhitekture, bez obzira na specifičnu namenu. Dominantna vertikala, uvedena po želji investitora, objedinjuje dve strukture i funkcioniše kao prostorni reper. U njoj su smeštene vertikalne komunikacije, dok njen oblik dodatno naglašava industrijski karakter objekta.

Dominantna vertikala, uvedena po želji investitora, objedinjuje dve strukture i funkcioniše kao prostorni reper.
„Aneks, sa zelenim krovom i zidovima obloženim u suvomeđu, ponaša se kao produžetak prirodnog terena. Njegova diskretna pozicija omogućava vizuelnu nenametljivost, dok otvori soba gledaju ka šumi, nudeći mir i privatnost“, kažu iz arhitektonskog tima.
Eksterijer karakterišu silikatni malter, antracitna bravarija i kamen u suvomeđi, čime se postiže estetska svedenost i naglašava proporcija objekta.
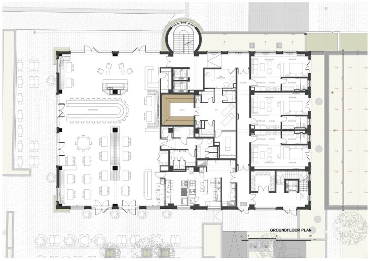
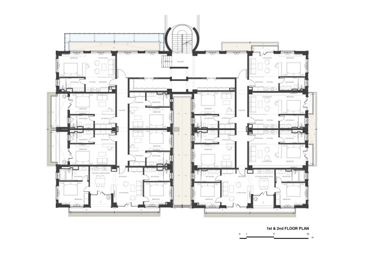
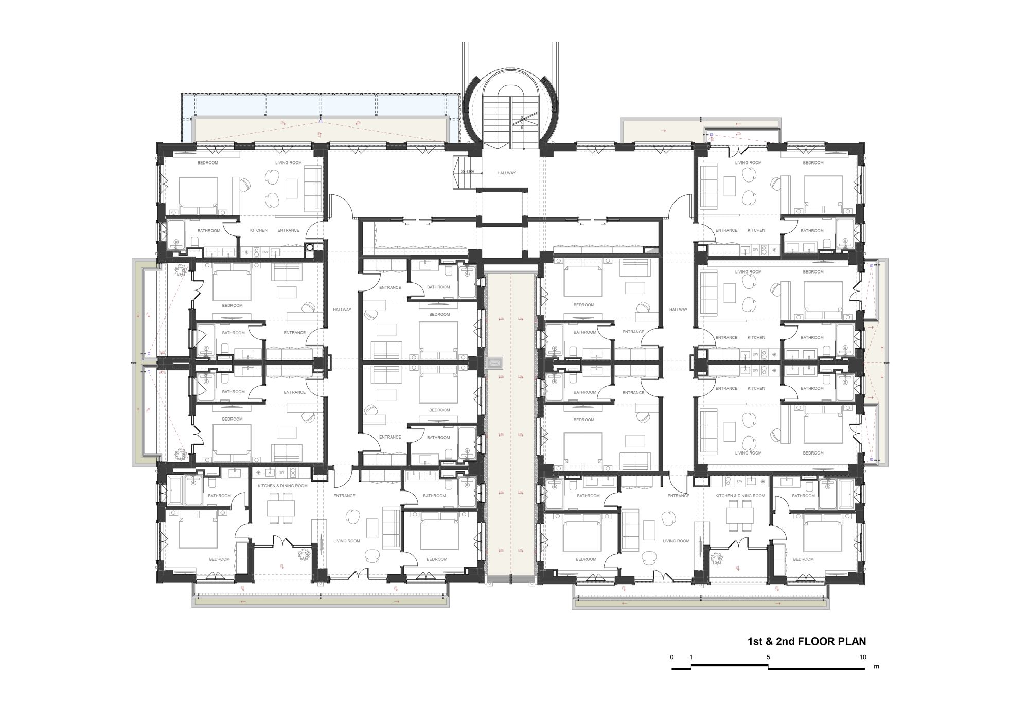
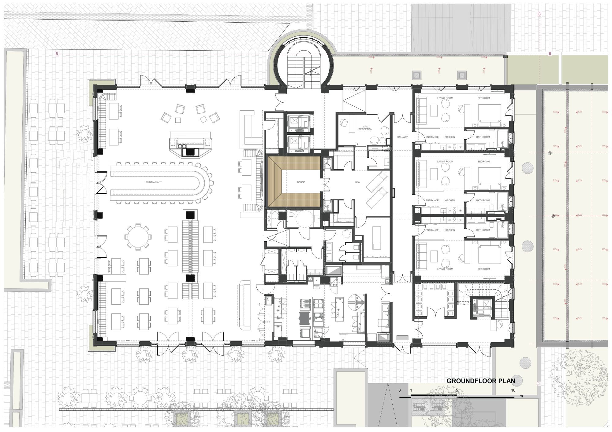
Objekat se sastoji od rekonstruisanog glavnog volumena i pažljivo pozicioniranog aneksa. Glavni deo obuhvata četiri nivoa – podrum, prizemlje, sprat i potkrovlje – dok je aneks prizemne spratnosti diskretno uklopljen u teren i gotovo nevidljiv sa glavnog trga.
Prizemlje sadrži recepciju, restoran, bar, show-kuhinju, spa zonu i četiri smeštajne jedinice. U podrumu se nalaze tehničke prostorije, kantina za osoblje, glavna kuhinja i skladišta. Gornji nivoi nude 24 sobe i apartmana, dok aneks dodaje još četiri jedinice sa pogledom ka borovoj šumi.

U enterijeru, javne zone zadržavaju sirovi karakter sa izloženim betonom, dok su podovi kombinacija terakote i parketa.
Na oblikovanju enterijera studio NRA Atelier sarađivao je sa francuskim dizajnerom Simonom Drotterom. Projektni menadžment vodili su Saša Radojković, u ime investitora, i Danilo Đurišić iz NRA tima, čime je obezbeđeno usklađivanje svih faza – od ideje do realizacije.
Enterijer prati dualni pristup: javne zone zadržavaju sirovi karakter sa izloženim betonom, dok su podovi kombinacija terakote i parketa.
Smeštajne jedinice nude toplinu kroz drvene podove i pažljivo odabrane završne obrade. Nameštaj je delimično rađen po meri, a delimično prikupljan iz starih evropskih hangara – prvenstveno iz Mađarske i Francuske, čime se unosi autentičnost i stvara osećaj doma, dok ručno rađeni bravarski elementi dodatno pojačavaju industrijski identitet enterijera.

Održivost kao kulturološki i prostorni stav
Kako ističu autori, jedan od ključnih elemenata projekta jeste rekonstrukcija postojećeg objekta, što je značajno uticalo na smanjenje emisije ugljen-dioksida i izbegavanje nepotrebne potrošnje resursa. Takav pristup je, kažu, ne samo potvrdio odgovornost prema životnoj sredini, već i afirmisao održivost kao kulturološki i prostorni stav.
„Verujemo da budućnost arhitekture leži upravo u očuvanju vrednih objekata ili delova objekata, njihovoj adaptaciji i nadogradnji u skladu sa savremenim potrebama i tehnologijama, uz duboko poštovanje prema prostoru, istoriji i čoveku“, navode na kraju iz studija NRA Atelier iz Podgorice.

BuildUp 2025: Konferencija o hotelima
Arhitektura ugostiteljstva tema je konferencije BuildUp 2025, koja se 23. oktobra održava u hotelu Crowne Plaza u organizaciji portala Gradnja.
Konferencija BuildUp 2025: Horekatura okupiće najznačajnije aktere iz oblasti arhitekture, hotelijerstva i investicija u ugostiteljski sektor. Reč je o najvećem regionalnom događaju posvećenom arhitekturi ugostiteljstva, čiji je cilj da poveže stručnjake, predstavi najnovije trendove i otvori diskusiju o budućnosti HoReCa industrije.
Broj karata je ograničen, stoga ne propustite priliku da rezervišete svoje mesto na vreme.
Više informacija potražite na sajtu BuildUp, a karte možete nabaviti putem sajta Tickets.
Grafički prilozi
Foto-galerija














Faktografija
Butik Hotel Centrale
Luštica Bay, Centrale Piazza, Crna Gora
3.212 m²
MONTE C D.O.O.
2022.
Izvedeno
NRA Atelier d.o.o.
Nikola Radović
Nikola Radović
Danilo Đurišić
Nina Simović
Simon Drotter
Danilo Đurišić
Saša Radojković i Vladan Radović
Lejla Nurković
Projekat konstrukcije: „OptimusProject“ d.o.o.
Projekat elektroenergetskih instalacija: „Lines“ d.o.o. i „Fil-Electronics“ d.o.o.
Projekat mašinskih i sprinkler instalacija: „Artermo“ d.o.o.
Projekat hidrotehničkih instalacija: „Vigoris Ecotech“ d.o.o.
Projekat instalacija irigacije: „Vigoris Ecotech“ d.o.o.
Projekat BMS instalacija: „Elkon“ d.o.o.
Pejzažna arhitektura: „Green Factory Montenegro“ d.o.o.
Elaborat zaštite od požara i zaštite na radu: „Paming“ d.o.o.



