Antialergijska kuća u Ljubljani za četvoročlanu porodicu i tri kućna ljubimca
Kuća je u potpunosti izgrađena od drveta, sa prirodnim lepkovima i premazima, izolacijom od konoplje, malterom na glinenoj bazi i konstrukcijom bez metalnih okova.
Iako je oko 80% Slovenije pokriveno šumom, tokom prošlog veka većina kuća bila je građena od betona i opeke, budući da se ovi materijali smatraju trajnim, otpornim na zemljotrese i ekonomičnim. Kuće od drveta su ponovo počele da se grade tek u poslednje dve decenije, uglavnom zbog podizanja svesti o održivoj gradnji i blagodetima života u drvenom objektu.
Stanari kuće Catwalk House u Ljubljani, koji su za svoj projekat angažovali studio OFIS Arhitekti, članovi su četvoročlane porodice koja je godinama vodila borbu sa teškim dečjim alergijama. Tokom vremena, eliminisali su gotovo sve što nije prirodno, a naredni izazov koji su sebi postavili bio je da izgrade dom u kom nema veštačkih ili hemijskih materijala i tretmana.
Pročitajte još na Gradnja.rs:

Projekat fokusiran i na kućne ljubimce
Neke od smernica postavljene za formiranje koncepta uključivale su i kućne ljubimce – mačku koja nikad ne izlazi u baštu, papagaja koji treba da ima pogled na zelenilo, te psa koji ne sme da napušta baštu.
Postavljeni zadatak i postojeće drvo magnolije staro pedeset godina su diktirali koncept dizajna, objasnili su iz ljubljanskog arhitektonskog studija.
Kroz koncept je formirana potreba za: balkonom slobodnim za šetnju mačke, velikim prozorom okrenutim prema drvetu za papagaja, ograđenom baštom, kao i servisnim delom za parking i skladištenje baštenske opreme.

Izolacija kuće je od konoplje, malter na glinenoj bazi, a konstrukcija nema metalne okove.
Kuća je izgrađena potpuno od drveta, tretirana lepkovima i zaštitnim premazima na potpuno prirodnoj bazi, izolacija je od konoplje, malter na glinenoj bazi, a konstrukcija nema metalne okove.
Glavni pristup objektu je preko postojeće veze sa lokalnim putem na zapadnoj strani parcele.
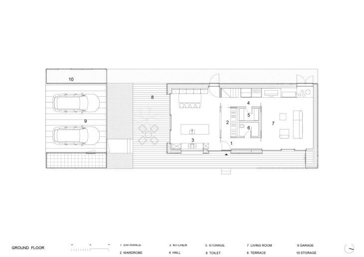
Objekat je strukturalno podeljen na dva dela, stambeni i servisni deo. Servisni deo uključuje nadstrešnicu za parking, ostavu za bicikle sa skladišnim prostorom na prizemlju i terasu na spratu.

Volumen kuće dugačak je 30m, a povezan je mostom za mačke kako bi se slobodno kretale kroz objekat. Tako je kuća i dobila ime – Catwalk House.
Glavni koncept je doveo do kreiranja velike bašte ispred objekta i postavljanje kuće na ivicu dužeg dela parcele.
Volumen kuće ima dužinu od trideset metara, a obuhvata postojeće drvo magnolije, te se u toj zoni stvara dodatni privatni prostor na otvorenom ispred dela za ručavanje.
Ovaj otvoreni prostor takođe deli ulaz od stambenog dela kuće.
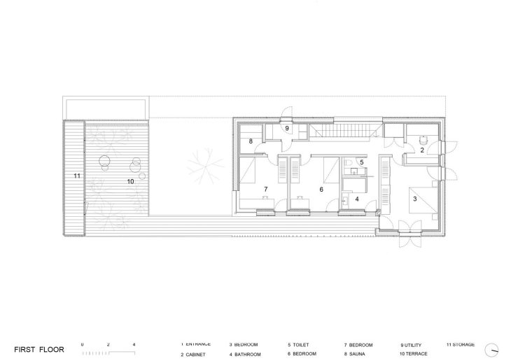
Spavaće sobe smeštene na spratu
Prizemlje stambenog dela obuhvata dnevni boravak, kuhinju sa trpezarijom, toalet, ostavu, dok su spavaće sobe na spratovima.
Stambeni deo je povezan sa terasom iznad nadstrešnice, preko mosta, kao deo posebnog zahteva klijenata da se obezbedi privatni vrt za mačke, omogućavajući im tako da se slobodno kreću u okvirima kuće, koja je stoga i dobila naziv – Catwalk House.

Što više uslova to bolji rezultat
Ovaj projekat u Ljubljani još jednom potvrđuje da veći broj uslova i ograničenja koji klijent postavi kroz projektni zadatak, podstiče arhitektu na kreativnija rešenja, što na kraju rezultira boljim ishodima. Catwalk House je odličan primer kako arhitektura može uspešno odgovoriti na zahteve i po pitanju programskog sadržaja, estetike ali i unapređenja zdravstvenog blagostanja.
Grafički prilozi
Foto-galerija















Faktografija
Catwalk House
Ljubljana, Slovenija
195 m²
Rok Oman, Špela Videčnik
2023.
Tomaž Gregorič, Janez Martinčič





jednostavna i bez kalkulacija, predobra kuća