Proširenje slovenačke fabrike inspirisano zupčanikom
Po projektu biroa Superform iz Ljubljane u Nazarju je izvedeno proširenje fabrike pogonskih sklopova Podkrižnik.
Klijent je imao potrebu da se preseli u novi objekat ali da u isto vreme obnovi staru zgradu kako bi bolje odgovarala uslovima energetske efikasnosti. Kako je postojeći objekat rađen u vreme kasnog modernizma, on je imao veliki potencijal za redizajn. Pogledajte kako je to na kraju ispalo!
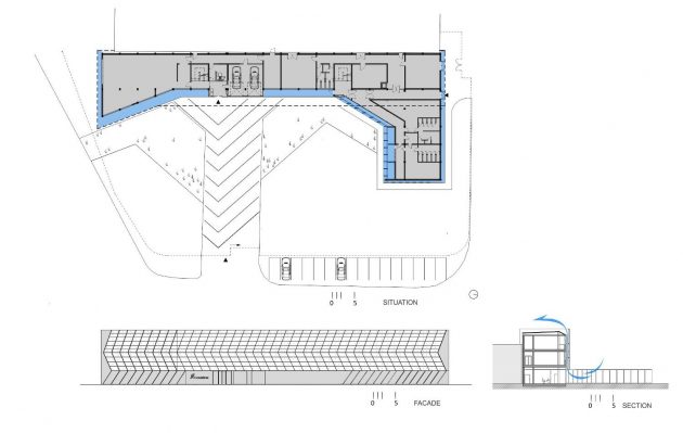
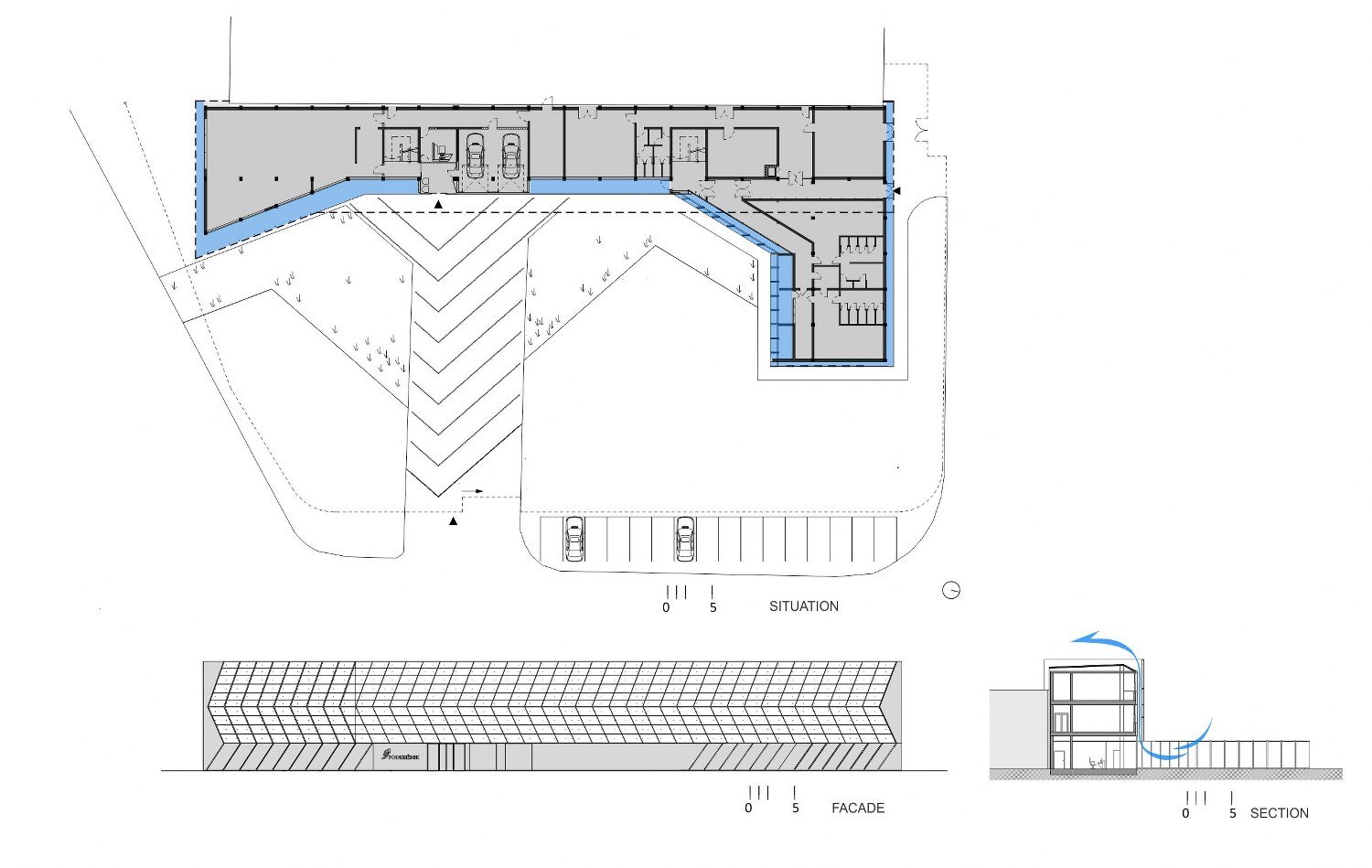
Nova ventilisana fasada sa metalnim brisolejima obezbeđuje neophodan zaklon od sunca.
Ideja za novu fasadu proistekla je iz forme zupčanika koji je jedan od proizvoda koji se pravi u ovoj fabrici. „Baš kao što ovaj površinski element pokreće motore u prostoru, tako je i na fasadi napravljen efekat koji se prepliće iz druge u treću dimenziju“, kažu arhitekti iz biroa Superform.

Metal i staklo, dva materijala koja su korišćena na fasadi fabrike, na najbolji mogući način izražavaju identitet klijenta. Ovaj suptilni omotač zgrade u potpunom je skladu za delikatnom okruženjem slovenačkom mestašceta Nazarje.
Održivost
Nova ventilisana fasada sa metalnim brisolejima obezbeđuje neophodan zaklon od sunca. Dimovano staklo dodatno pomaže u održavanju temperature unutar objekta, a zahvaljujući svim ovim inovacijama potrošnja energije za rashlađivanje prostora značajno je smanjena.
Objekat površine 1.400 kvadrata projektovale su arhitekte Marjan Poboljšaj, Anton Žižek i Špela Gliha iz biroa Superform.
Nekad i sad

Foto: Miran Kambič








