Vila u Ljubljani koja se svojom arhitekturom brani od poplava
Prolaskom kroz jedinstveni arhitektonski element u vidu ulaznog trema otvaraju se prostori duple spratne visine koji stvaraju dinamičnu interakciju ambijenata.
Istureni portik formiran od natur betona stvara impozantan ulaz u Vilu Eternal Way, kuću u Ljubljani koju je projektovao lokalni studio OFIS Arhitekti.
Izdignuti ulaz objekta referenca je na tradicionalne slovenačke strukture u toj oblasti, koje su podignute iznad nivoa tla zbog istorijskog rizika od poplava.
Što se pak tiče fasada vile, one su izvedene od natur betona i crne opeke, kao posveta crnom tresetu koji je pronađen u blizini.
Pročitajte još na Gradnja.rs:

Delimično ukopani podrumi
„Ovo područje je bilo pod rizikom od poplava sve do nedavno, kada su izgrađeni regulacioni sistemi,“ rekli su iz ljubljanskog studija za Dezeen, dodavši da je to dovelo do razvoja tipologije objekata sa izdignutim prizemljem.
„Podrumi su delimično ukopani i smanjuju štetu od poplava. Pristup glavnom životnom prostoru na prizemlju razvio se kroz jedinstveni arhitektonski element, ulazni trem,“ objasnile su arhitekte iz OFIS-a.

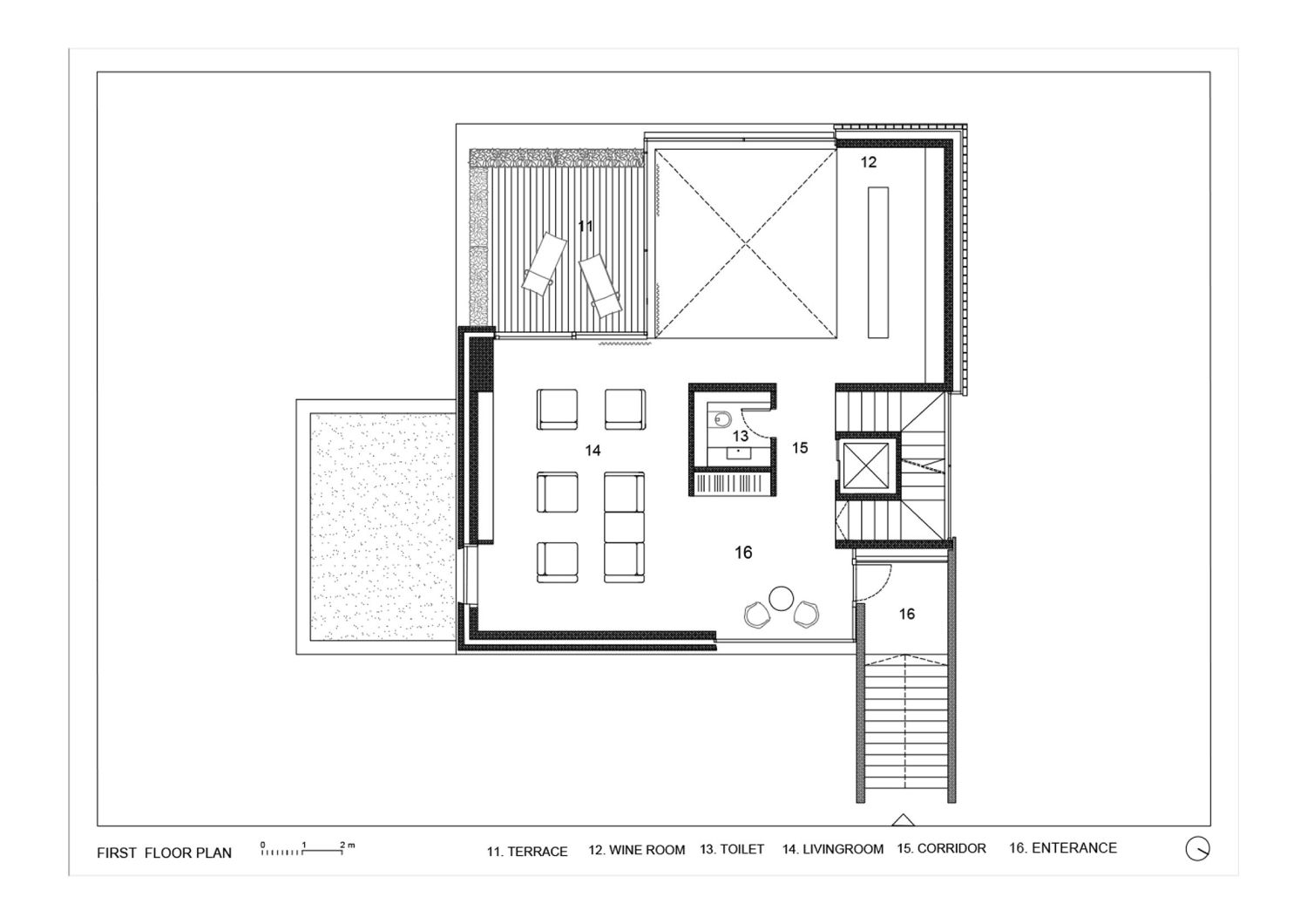
Izdignuti ulaz Vile Eternal Way omogućava direktan pristup dnevnom boravku, preko garaže u prizemlju.
Ulaz u vilu dizajniran je kao ritual – njegova svrha je stvaranje impozantnog akcenta i natkrivenog puta prema ulazu.
Izdignuti ulaz vile, čije ime bismo mogli prevesti kao „Večni put“, omogućava direktan pristup dnevnom boravku, preko garaže u prizemlju.
Prostrani dnevni boravak OFIS Arhitekti su organizovali oko sjajne crne kocke u kojoj se nalazi kupatilo.
Trpezarija duple spratne visine
Na zadnjoj strani kuće, koja je okrenuta prema jugozapadu, dnevni boravak se otvara ka terasi koja je natkrivena volumenom sprata kuće.
Ispod, delimično ukopani podrum kuće sadrži pomoćne prostore koji vode do velike trpezarije duple spratne visine.
Ova prostorija gleda na vinsku zonu i otvara se ka vrtu preko staklenih, kliznih vrata.
„Prostori duple spratne visine u kući stvaraju dinamičnu interakciju ambijenata,“ naveli su iz studija.
U unutrašnjosti se mogu videti znatne površine izloženog betona, koje su u kontrastu sa crnim nameštajem i opremom.
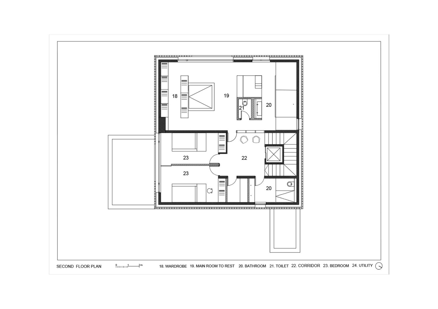
Svedeno crno stepenište povezuje spratove kuće, te vode do najvišeg nivoa na kom je smeštena velika spavaća soba sa sopstvenim kupatilom i koja stoji naspram dve manje spavaće sobe.
U unutrašnjosti je nastavljena paleta boja iz eksterijera, te se mogu videti znatne površine izloženog betona, koje su u kontrastu sa crnim nameštajem i opremom.
Zadnja fasada kuće obložena je crnom opekom, koja se proteže u teksturirani, niski zid koji obuhvata granicu parcele.

















Ne bih živeo u ovakvoj otuđenoj kući