Kuća od 40 minuta hoda: Continuum Alekse Rogana u Kruču kraj Ulcinja
Kuća u kojoj 40 minuta možete hodati bez ponavljanja iste staze, sa vidikovcem, vinskim podrumom, povrtnjakom i spoljnim bazenom, predstavlja jedan od najambicioznijih projekata biroa Opna BIT.
Beogradski arhitekta Aleksa Rogan, čitaocima Gradnje poznat kao jedan od autora hvaljenog projekta Vinarije Temet kraj Jagodine, danas vodi biro Opna BIT. U njegovom fokusu su, osim klasičnog projektovanja, i „arhitekture drugačijih sistema sa ciljem unapređenja društva“.
Projekat u Crnoj Gori koji je dobio naziv Continuum nosio je izazov u tome što je zahtev klijenta bio izložen na oko 70 strana, a odgovor je bio nezadovoljavajući u mnogo pokušaja. I pokušavalo je više biroa. „Potrudio sam se da ne izneverim to poverenje i zauzvrat dobio fantastična iskustva“, ističe Rogan.
Pročitajte još na Gradnja.rs:

Struktura nastala iznutra
Kako objašnjava arhitekta sa dve decenije iskustva u rukovođenju projektima, struktura Continuuma, objekta podignutog u mestu Kruče kraj Ulcinja – nastala je iznutra. Program je obimniji od prostora koji je na raspolaganju, dok je konačna forma posledica specifičnog procesa „dizajna bez prisustva“.
„Nakon što sam video formu koju sam izmodelovao, mogao sam da izučim šta sam uradio, recimo kao glumci koji, osim što glume predstavu, ujedno su i publika koja je gleda. Projektovanju inače nedostaje ta interaktivnost sa delom. Rezultati su u nekom odloženom trenutku. Obično čišćenje kuće daje instant-satisfakciju. Ne i projektovanje“, kaže Rogan.

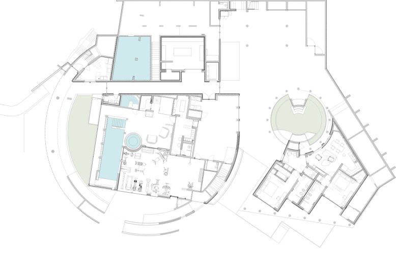
Bazen ima dve „plaže“ pa domaćin i gosti mogu neometano da ga koriste svako u svom ritmu. Kada napolju zahladni, moguće je isplivati u bazen iz dela boravka.
Kada je reč o materijalima, naš sagovornik navodi da je u tom segmentu sve prilično standardno, a najviše je korišćen beton. „Imao sam i sjajne projektante konstrukcije iz firme Asmec. Oni su našli rešenja za neke kritične zahteve koje niko i ne vidi. Najveći izazovi su bili u realizaciji. Tu se nakupilo priča”, dodaje arhitekta.
Objekat može da se klasifikuje kao jednoporodični hotel. Ima nekoliko blokova: Master, family, servisni, gostinski. Rogan dalje nabraja: “Hydraulica centar sa unutrašnjim bazenom, saune, teretana, plesna dvorana. Vidikovac sa pogledom na obalu Crne Gore, podrum vina, povrtnjak, spoljni bazen za plivanje i takve standardne stvari, je l’ da”.
Spoljni bazen se nalazi iznad unutrašnjeg tako da je moguće gledati se kroz prozore na podu. Arhitekta kaže: „Ima dve ‘plaže’ pa domaćin i gosti mogu neometano da ga koriste svako u svom ritmu. Kada napolju zahladni, moguće je isplivati u bazen iz dela boravka. Kad je bal…”.

Za svaki deo objekta su rađene studije i izvođači su redom bili suočeni sa tim kako da odgovore na nivo detaljnosti u ugovaranju koji se zahtevao.
Što se tiče izazova koje je nosio projekat Continuum, arhitekta je iskren: „Izazov u projektovanju je bio taj što nisam umeo da uradim ovakav projekat. Tehnički sam bio dovoljno vešt, ali morao sam da se oslobodim nečega u sebi. I nije bilo dovoljno jedno oslobađanje, trebalo ih je više. Leap of faith je dobar opis. Mora da se rizikuje“.
Saznajemo zatim i da je izvođenje trajalo daleko više od projektovanja. „Za svaki deo objekta su rađene studije i izvođači su redom bili suočeni sa tim kako da odgovore na nivo detaljnosti u ugovaranju koji se zahtevao“, istakao je sagovornik Gradnje.

Kuća bez klasičnog ulaza
Pažljivi čitalac svakako će primetiti da dosad nismo pomenuli površinu Continuuma. Evo šta o tome kaže autor: „Postoji jedna igra u objektu – koliko prostora možeš da obiđeš a da ne ideš dva puta istom stazom. I onda kada neko pita koliko ima kvadrata, ja kažem 40 minuta hoda. To je sloboda prostora“.
Vredi pomenuti i to da kuća nema klasičan ulaz. „Ulazi naravno postoje (i svaki ima kadicu za pranje šapa), ali ne dominiraju na način kako reprezentativni objekti to obično zahtevaju. Jednom kada ste ušli u prostor Continuuma, postajete deo slobode tog prostora“, objašnjava arhitekta.
Delo sa sopstvenim životom i smislom u svetu
Na kraju, na pitanje na šta je najviše ponosan u vezi sa ovim projektom, beogradski arhitekta ističe da su mu iskustva stečena na Continuumu zapravo pomogla da nauči šta je „finalna faza kreacije”.
„Tokom putešestvija u traganju za idejnim rešenjem, jednom prilikom je klijent došao i rekao da ima dobru i lošu vest. Kaže, loša vest je da ipak neću da radim tvoj projekat. Možda je trebalo da osetim nešto loše u tome, ali samo sam se nasmejao i rekao mu – ovo nije moj projekat. Ovo je tvoj projekat. Dobra vest je inače bila da želi da vodim izradu projekta. Ništa bolje nije mogao da mi ponudi! Ipak, taj koncept je spektakularno propao i on je ostao bez opcije kako da nastavi dalje. Jedino što mu je ostalo sam bio ja,” kaže Rogan i dodaje:
„Ono što je meni trebalo, došlo mi je jedne večeri dosta kasnije, kada sam shvatio prepreke u sebi. Javio sam mu ujutru da sam kupio kartu i da dolazim sutra sa projektom. To što sam uradio tog dana je ono što je kasnije sazidano. A ja sam kroz ta iskustva naučio da je finalna faza kreacije – oslobađanje od dela. Delo se stvara da ima sopstveni život i smisao u ovom svetu. Mogu samo da budem ponosan kao na decu kada vidim da su samostalna. Poenta nikada nije bila u meni, već u njima”.
Pogledajte video:
Grafički prilozi
Foto-galerija












8.1.2026. Članak je osvežen ubacivanjem grafičkih priloga i fotografijama enterijera
Faktografija
Continuum – Feeling Unbounded
Kruče, Ulcinj, Crna Gora
Casa Valdanos
Aleksa Rogan
2015–2017.
2016–2020–2024.
„40 minuta hoda da se obiđu svi sadržaji“
podrum, prizemlje 1, prizemlje 2, sprat, vidikovac
Miloš Martinović (& Aleksa Rogan)







Fantastično!
fenomenalno, konačno se vidi sloboda u arhitekturi pa kakva god da je!
<3
Bravo
Prelepo!