Kolibri u Bariču: Arhitektura koja priča dečijim jezikom
Ovaj vrtić nadomak Beograda sa osam kućica koje simbolizuju sobe za različite uzraste, u potpunosti je prilagođen percepciji i potrebama dece.
„Sintagma arhitektura po meri čoveka, ponekad shvaćena kao fraza, odavno je postala osnovna premisa kojom se vodi cela naša struka. Međutim, kada je taj čovek za koga projektujemo i gradimo zapravo dete, susrećemo se sa jednom drugačijom perspektivom”.
Ovom konstatacijom priču o nastanku vrtića „Kolibri“ u Bariču započinju arhitekte iz Studija A&D Architects (SADA), koji su se na ovom projektu, pored drugačijih pravila za dimenzionisanje, ustanovljenih standardima, te tako jednostavnim za savladavanje, suočili i sa činjenicom da deca percipiraju prostor na sebi svojstven način.
„Na primer, dizajn koji je odraslima preterano šaren, napadan, pa nekad i kič, deci biva interesantan jer komunicira sa njihovim čulima i interesovanjima. Tako, arhitekta dobija zadatak da kroz igru boja, oblika i tekstura, prostor prilagodi njihovom nivou percepcije, potrebama, kognitivnim sposobnostima i interesovanjima” – navode iz studija.
Sve ovo praćeno je potrebom da se ispune svi neophodni programski i tehnički standardi propisani za ovu namenu objekta, a kako saznajemo, olakšavajuća okolnost u savladavanju ovog procesa pri projektovanju vrtića u Bariču bila je pristupačnost lokacije i kontekst koji po sebi nije nametao dodatna ograničenja za objekat ove namene.
Pročitajte još na Gradnja.rs:

Vrtić bez stepenica
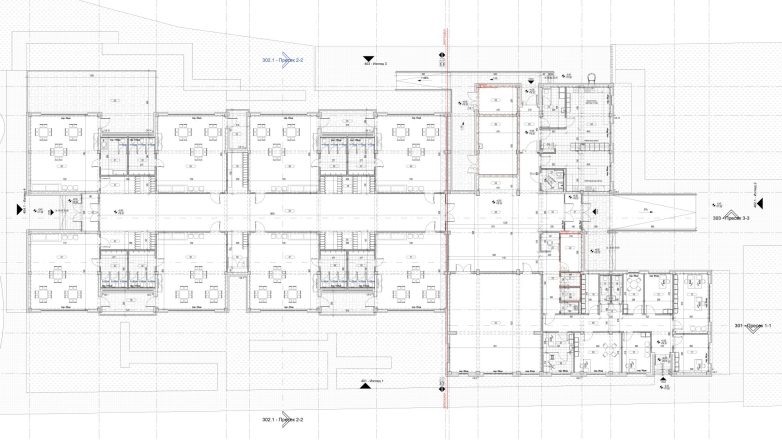
Zauzimajući ukupnu površinu od 1.529 kvadratnih metara vrtić „Kolibri“ u Bariču, naselju u beogradskoj gradskoj opštini Obrenovac, nalazi se na parceli kojoj se pristupa sa tri strane.
„Ovime je omogućena efikasna dispozicija glavnog, službenog i tehničkog ulaza, tako da je svakoj grupi korisnika omogućen neometan pristup, kao i parking. Dečije igralište smešteno je u mirnoj zoni parcele, koja ne izlazi na saobraćajnicu, i koja je time izolovana od buke”, objašnjavaju arhitekte.
Prizemni objekat namenjen je deci uzrasta od 1 do 7 godina, što uključuje i jaslice i predškolsku grupu. Odsustvo vertikalne komunikacije omogućava jednostavno i bezbedno kretanje za decu svih uzrasta i sposobnosti. Pored dece, ovaj prostor koriste i zaposleni, vaspitači i pomoćno osoblje, kao i roditelji.

Od spolja, jasno je vidljiva unutrašnja organizacija prostora, osam kućica predstavlja osam soba za decu različitih uzrasta.
„Arhitekturom je jasno prikazana podela korisnika – deo objekta u kom se nalaze kancelarije za zaposlene i pomoćne prostorije oblikovan je u vidu prostih kubičnih volumena, sa fasadnom oblogom od opeke, dok deo sa sobama za decu predstavlja igru volumena i boja koji podsećaju na arhetipske kuće u nizu”, navode iz studija i dodaju:
„Od spolja, jasno je vidljiva unutrašnja organizacija prostora, osam kućica predstavlja osam soba za decu različitih uzrasta. Korišćenje boje u naglašavanju i nabrajanju ovih volumena doprinosi isticanju osnovne namene prostora – prostora za igru i razvoj dece”.
Spoljno uređenje prati arhitekturu objekta, pa je tako fasadna opeka postala gradivni element klupica koje su pored igrališta, zelenila i staza glavni deo partera, objašnjavaju autori.

Kičmu objekta čini horizontalna komunikacija koja spaja dva ulaza u objekat.
Kada je reč o unutrašnjoj organizaciji, kičmu objekta čini horizontalna komunikacija koja spaja dva ulaza u objekat – glavni ulaz za decu i roditelje, i ulaz iz dvorišta, odnosno sa dečijeg igrališta. Na ovu osu naizmenično se nižu kubični volumeni – sobe za decu i niše, džepovi koji imaju ulogu garderobe, objašnjavaju iz studija.
„Sa glavnog ulaza pristupa se glavnom holu, prostoru koji se može koristi kao višenamenska sala za dečije priredbe ili druge aktivnosti. Iz hola se pristupa kuhinji, kancelarijama za zaposlene i fiskulturnoj, višenamenskoj sali koja ima ulogu zajedničkog prostora za igru i sport, posebno u zimskim mesecima kada se manje koristi dvorište. Svaka soba ima pripadajući toalet i terasu”, kažu arhitekte.

Ideja je bila ispuniti sve programske zahteve uz ostvarivanje maksimalnog mogućeg procenta zelenih površina.
Što se pak tiče ostalih detalja vezanih za spoljno uređenje, autori projekta navode da se smenom zelenih površina, popločanih pešačkih staza i klupica u dvorištu vrtića postiže naizgled nasumičan ritam, koji podstiče samostalno istraživanje i slobodno kretanje kroz prostor.
„Igra boja, materijala i oblika prisutna je i u ovom delu projekta, praveći autentične mikroambijente namenjene sportu, igri i odmoru. Ideja je bila ispuniti sve programske zahteve uz ostvarivanje maksimalnog mogućeg procenta zelenih površina , ističu arhitekte, dodajući da je vegetacija birana u skladu sa namenom prostora, vodeći računa o estetskim i bezbednosnim svojstvima biljaka.

Izazovi i radosti oivičeni prostorom vrtića
Na kraju, arhitekte ističu da projekat predstavlja simbiozu unutrašnjeg i spoljašnjeg prostora koji komuniciraju kako kroz materijale i boje koji se ponavljaju, tako i kroz jasno i jednostavno definisane komunikacije koje spajaju objekat vrtića sa dvorištem.
„Ustanova vrtića predstavlja prvi izlazak osobe iz kruga porodice, prvi kontakt sa širom zajednicom. Izazovi i radosti koje nameće početak socijalizacije ljudskog bića oivičeni su prostorom vrtića, i zato je naš zadatak da ih učinimo što ugodnijim za razvoj najmlađih članova naše zajednice” – zaključuju iz Studija A&D Architects.
Grafički prilozi
Foto-galerija
Faktografija
Vrtić u Bariču
Barič, Srbija
Grad Beograd, Gradska opština Obrenovac
M Enterijer Gradnja
Studio A&D Architects
2022.
2024.
1.529 m² (BRGP)
P
Boško Karanović










arhitekte kad iskoriste pet boja umesto dve i onda se tripuju da objekat „prica dečjim jezikom“