Na aerodromu Nikola Tesla gradiće se DHL-ov distributivni centar
Objekat poznate međunarodne kurirske službe površine preko deset hiljada kvadrata radi se po projektu Energoprojekt urbanizam i arhitektura.
Na samom kraju radne sedmice, Sekretarijat za urbanizam i građevinske poslove Grada Beograda oglasio je javnu prezentaciju urbanističkog projekta za izgradnju terminala distributivnog centra avionskih pošiljki sa administrativno logističkom službom na beogradskom aerodromu Nikola Tesla.
Kao nosilac izrade potpisano je preduzeće Energoprojekt urbanizam i arhitektura sa Novog Beograda, a zahtev za potvrđivanje projekta podnelo Ministarstvo građevinarstva, saobraćaja i infrastrukture – Sektor za prostorno planiranje i urbanizam, u ime investitora – JAT-tehnika d.o.o. iz Surčina.
Autor idejnog rešenja je Nevena Mijušković, MSc arhitekture, posao odgovornog projektanta IDR-a poveren je Milki Ilić, dia, dok nam priloženi renderi govore da se projekat tiče izgradnje objekta kompanije DHL, međunarodne kurirske službe sa sedište u Bonu, Nemačka.
Pročitajte još na Gradnja.rs:

Objekat od preko 10.000 kvadrata
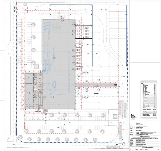
Parcela na kojoj je predviđena izgradnja DHL-ovog kompleksa zauzima površinu od 21.424 kvadratna metra, a smeštena je između asfaltiranih internih saobraćajnica kompleksa aerodroma Nikola Tesla.
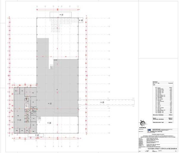
Projektom je planirana gradnja objekta za prihvatanje, razvrstavanje i isporuku pošiljki koje se prevoze avionskim saobraćajem, ukupne BRGP od 10.176 m².

Objekat od preko 15 metara sastoji se od hale za prijem, razvrstavanje i isporuku pošiljki, administrativni delo kao i finger sa transportnim trakama.
Predviđeno je da se objekat maksimalne visine od 15,45 metara sastoji od hale za prijem, razvrstavanje i isporuku pošiljki, administrativnog dela i fingera sa transportnim trakama.
U blizini glavnog objekta je predviđen i tehnički blok sa trafostanicom, dizel agregatom i prostorom za tehničke sadržaje i opremu. U kompleksu je predviđen i parking sa oko 120 mesta.
Izgradnja objekta se može obavljati fazno, a kako se navodi u urbanističkom projektu, planirani broj zaposlenih do 2040. godine trebalo bi da iznosi 302, sa radom u tri smene.

Na javnom uvidu do kraja meseca
Kao i uvek, zainteresovani mogu tokom javne prezentacije da izvrše uvid u Urbanistički projekat, kao i da svoje primedbe i sugestije na planirana rešenja u pisanoj formi dostave Sekretarijatu za urbanizam i građevinske poslove, najkasnije do 31. maja 2024. godine.
Grafički prilozi
3D vizuelizacija















