Dupleks stan u industrijskom stilu
Bela bojena opeka na zidovima i drvene palete bile su osnovni motivi za dizajn ovog enterijera.
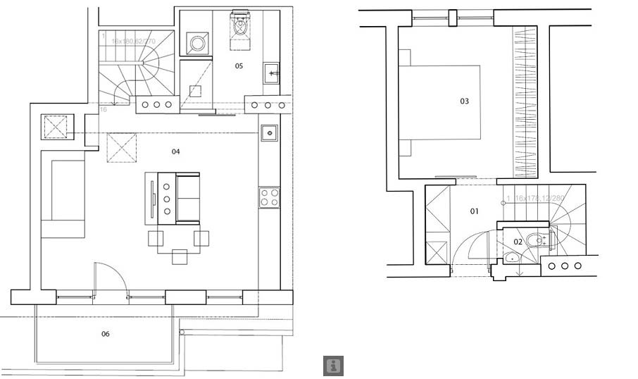
Uređenje stana u potkrovlju sa tri dimnjačke vertikale bio je izazov za češki projektni biro SMLXL. Dimnjaci su iskorišćeni kao pregrade, dok su palete poslužile kao osnova za nameštaj.
Na prvom nivou stana nalazi se otvoreni prostor koji uključuje dnevnu sobu, trpezariju i kuhinju. Jedan od dimnjačkih vertikala delimično zaklanja kuhinju od dnevne sobe. Toalet je smešten uz stepenište dok je se na spratu nalazi jedna spavaća soba i kupatilo.
Pored paleta koje su iskorišćene za pravljenje nameštaja kao što je sofa i krevet, pod izveden od epoksida doprinosi modernom industrijskom stilu ovog enterijera.
(desiretoinspire.net)









