U Stanišincima na Goču planiran turistički kompleks sa 20 kuća za odmor
Urbanistički projekat otkriva naselje sa tipskim kućama od 60 kvadrata, 30 parking mesta i restoranom, koje će se graditi u pet faza.
Stanišinci, malo planinsko selo na Goču, moglo bi uskoro da dobije turistički kompleks sastavljen od 15 tipskih kuća za odmor, pet tipskih kuća za odmor za osobe sa invaliditetom i jednog ugostiteljskog objekta – restorana, saznajemo iz urbanističkog projekta koji je Opština Vrnjačka Banja stavila na javni uvid.
Investitor je fizičko lice, nosilac izrade urbanističkog projekta je preduzeće Arhitekt PRO d.o.o. iz Vrnjaca, dok je obrađivač idejnog rešenja firma MioProjekt d.o.o. iz Vrnjačke Banje. Kao odgovorni urbanista i odgovorni projektant potpisan je Đorđe Miodragović, diplomirani inženjer arhitekture.
Pročitajte još na Gradnja.rs:

Izgradnja planirana u pet faza
Prema PGR-u Goča, predmetne parcele se nalaze u namenama – selo, poljoprivreda i manjim delom u nameni zaštitne šume. Projektom su obuhvaćene tri katastarske parcele u KO Stanišinci – površine od 3.552 m², 1.706 m² i 7.820 m², sve u vlasništvu investitora, te deo javnog puta u vlasništvu Republike Srbije, površine od 2.790 m².
Predmetni objekti biće izgrađeni u pet faza, sa predviđenom spratnošću kuća za odmor Pr+Pk, dok je restoran projektovan kao prizemni objekat, P+0. Upravo restoran, kao i jedna tipska kuća za odmor i jedna kuća namenjena za osobe sa invaliditetom biće izgrađeni u prvoj fazi, a potom sledi dalje širenje kapaciteta, sa petom fazom kao najobimnijom.

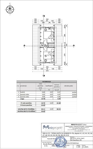
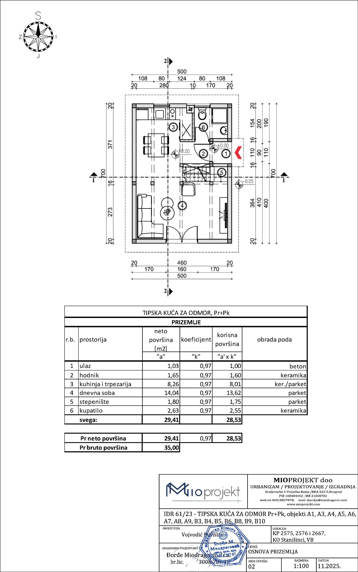
Tipske kuće za odmor su objekti površine od 60 kvadrata sa dve spavaće sobe u potkrovlju.
BRGP svih planiranih objekata u kompleksu iznosi 1.309,26 m². Tipske kuće za odmor su objekti bruto površine od 59,65 m², na čijem se prizemlju nalaze ulaz, hodnik, kuhinja i trpezarija, dnevna soba, stepenište i kupatilo, dok su u potkrovlju smeštene dve spavaće sobe.
Tipske kuće za odmor osoba sa invaliditetom imaju identičnu bruto, ali manju korisnu površinu, a svaki od pet objekata sastavljen je od dnevne sobe, kuhinje i trpezarije, kupatila i platforme, projektovanih na prizemlju, te jedne spavaće sobe predviđene u potkrovlju.
Bruto površina ugostiteljskog objekta iznosi 116,26 m², a u njemu se nalaze restoran, šank, ulaz, hodnik, ostave, kuhinja, svlačionice i toaleti.
Na parceli je predviđeno 30 parking mesta, od čega je 5 PM namenjeno za osobe sa invaliditetom.

Grafički prilozi












