Bela čipka kao potpis: Kako izgleda nova Poliklinika Human u Nišu
Vertikalni aluminijumski raster daje objektu prepoznatljiv identitet i organizuje složeni medicinski program na parceli od svega 322 kvadrata.
Početak pandemije 2020. otvorio je brojna pitanja o funkcionisanju zdravstvenih ustanova. Upravo tada se javila potreba vlasnika privatne Poliklinike Human iz Niša da objedini više manjih stanica u jedan savremen, funkcionalan objekat.
Zadatak koji se našao pred arhitektama iz niškog KontraStudija je bio projektovati obiman i složen program na parceli od svega 322 m², u skladu sa tada važećim Planom. Parcela se nalazi u zoni namenjenoj zdravstvenoj zaštiti, između Kliničkog centra Niš, Hitne pomoći i Vojne bolnice Niš.
“Uz južnu stranu parcele planirana je nova kolsko-pešačka komunikacija ka Kliničkom centru i Vojnoj bolnici, što čini predmetnu parcelu ugaonom lokacijom“, navode arhitekte.
Pročitajte još na Gradnja.rs:

Sadržaji organizovani „po vertikali“
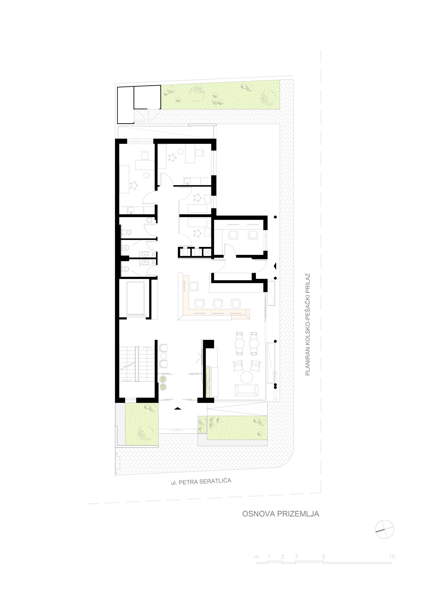
Da bi se ispunili svi urbanistički parametri, niške arhitekte su sadržaje organizovale „po vertikali“, kroz ukupno šest etaža — jednu podzemnu i pet nadzemnih. „Različite funkcije smenjivale su se i raslojavale oko centralnog hola i vertikalnih komunikacija, stvarajući jasan i intuitivan tok kroz objekat“.
Program poliklinike obuhvata veći broj ordinacija različitih specijalnosti, biohemijske laboratorije sa prostorom za uzorkovanje i pratećim sadržajima, kao i operacionu salu za manje intervencije sa dve sobe za oporavak na drugom spratu. U podrumu su smeštene tehničke prostorije, dok je poslednja etaža rezervisana za kancelarijski prostor.
Tamni osnovni kubus obavijen je belom „čipkom“ formiranom od aluminijumskih profila, koja postaje ključni motiv koji povezuje enterijer i eksterijer.
Kako se unutrašnji sadržaji međusobno nadovezuju, tako je i arhitektonsko oblikovanje nastalo iz iste logike, objašnjavaju dalje iz KontraStudija. Tamni osnovni kubus obavijen je belom „čipkom“ formiranom od aluminijumskih profila.
„Postavljanjem ovih fiksnih elemenata preko izabranih otvora, fasadna ‘čipka’ postala je ključni motiv koji povezuje enterijer i eksterijer. Transparentno prizemlje i čelični stubovi dodatno su naglasili dominantan beli volumen iznad njega“, kažu iz studija.

Zelena boja integrisana u fasadu
Autori ističi da arhitektura Poliklinike Human počiva na čistim, jasnim formama, višeslojnosti i bogatoj materijalizaciji. Primena provetrene fasade u tamnoj masi (alucobond i polimercementni paneli) kontrastira sa kontaktnom fasadom koja se nalazi iza belih metalnih profila.
„Zelena boja, kao deo vizuelnog identiteta poliklinike, integrisana je u fasadu kroz nekoliko detalja – istaknute zelene žardinjere i parapeti obloženi folijom u istoj nijansi, čime je objekat dobio dodatnu prepoznatljivost“, kažu iz KontraStudija.
Osim arhitektonskog rešenja izrađen je i projekat enterijera, u kojem su, kako navode autori, motivi spoljašnje arhitekture i ritam fasade dosledno preneti u unutrašnji prostor.
Integracija funkcije i identiteta
Poliklinika Human tako dobija arhitektonsko ostvarenje koje u maloj urbanoj matrici spaja funkcionalnost, prepoznatljiv identitet i logičnu organizaciju sadržaja. Projekat KontraStudija pokazuje kako se složen medicinski program može smestiti na ograničenu parcelu, uz jasnu strukturu i dosledno sprovedenu materijalizaciju.
Grafički prilozi
Faktografija
Poliklinika Human
Niš
privatno lice
KontraStudio
2021.
2024.
893 m²
Po+P+M+3
Miloš Martinović











Mislim da su mi oči upravo silovane.
Poliklinika NeHuman
Mocna zgrada