Amsterdamski Peščani sat: Prefabrikovanom gradnjom do sofisticiranog izgleda
Betonski paneli obloženi su specijalno sečenim belim peskarenim kamenom, te su montirani na licu mesta sa spojevima širine svega 12 milimetara.
Kao mana prefabrikacije često se navodi uniformnost zgrada. Međutim, da je to još jedna u nizu predrasuda govori i nedavno izveden objekat pod imenom Hourglass (srp. Peščani sat) u Amsterdamu.
Ime zgrade i njen karakteristični oblik peščanog sata proizlaze iz njenog promišljenog oblikovanja. Naime, dizajn je inspirisan geometrijskim skulpturama čuvenog rumunskog vajara Konstantina Brankušija (1876–1957), te arhitektura predstavlja spoj forme i funkcije.
Forma peščanog sata odražava inovativni prostorni koncept, gde je široki auditorijum organizovan na gornjim i donjim spratovima, koji su povezani središnjim užim delom, omogućavajući efikasnu upotrebu prostora.
Pročitajte još na Gradnja.rs:
Prefabrikovani betonski paneli obloženi su specijalno sečenim belim peskarenim kamenom, te je osigurana besprekorna montaža.
Kako objašnjavaju autori iz studija Dam & Partners Architecten, fasada je izvedena uz primenu velike preciznosti i umetničkog dodira, gde lagana kamena obloga i topli fasadni materijali naglašavaju monumentalnost zgrade, dok raspored prozora optimizuje refleksiju.
Prefabrikovani betonski paneli koji čine konstrukciju obloženi su specijalno sečenim belim peskarenim kamenom, te je osigurana besprekorna montaža. Spojevi su svedeni na maksimalnu širinu od 12 milimetara, čime se poboljšava rafinirani, besprekidan izgled zgrade.

Funkcionalnost i urbano integrisanje
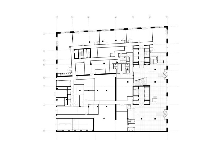
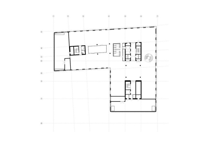
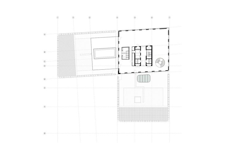
Hourglass predstavlja pažljivo osmišljen urbani dizajn, s obzirom na to da se objekat u L formi otvara prema javnom trgu.
Hodnici i komercijalni prostori okrenuti su prema severu i istoku, angažujući pešake, dok su ulazi za servisne prostore diskretno pozicionirani na zapadnoj strani.
Integrisanjem javnih, stambenih i komercijalnih funkcija, dizajn obogaćuje dinamičan karakter celog kvarta.

Inovativni principi dizajna objekta Hourglass su prepoznati i odlikovani nagradom za izuzetnost od strane Saveta za visoke zgrade i urbani habitat.
Inovativni principi dizajna objekta Hourglass su prepoznati i odlikovani nagradom za izuzetnost od strane Saveta za visoke zgrade i urbani habitat (CTBUH).
“Fuzija geometrijske umetnosti, visokokvalitetnih prefabrikovanih tehnika i pažljivog izvođenja detalja postavlja novu meru za višenamenske visoke zgrade u gradskim sredinama”, kaže se u saopštenju.
Dalje se dodaje da “svojim ikoničnim dizajnom i multifunkcionalnim karakterom, Hourglass stoji kao simbol bezvremenske arhitekture i urbane sofisticiranosti.”

Uselili se advokati
Ova zgrada mešovite namene kombinuju kancelarije, stambene jedinice, maloprodajne prostore, kao i javni restoran i kafić. Strateški lociran naspram nove zgrade suda, elegantno dizajnirani Hourglass domaćin je jedne od najvećih advokatskih firmi u Holandiji.
Grafički prilozi
Faktografija
Hourglass Building
Amsterdam, Holandija
Dam & Partners Architecten
Diederik Dam i Haakon Brouwer
42.000 m²
2020.











