Japanska kuća podignuta na stubove
Kuća oblika ptičjeg gnezda sa pogledom na Hirošimu i more, vlasnicima pruža osećaj sigurnosti i tišine.
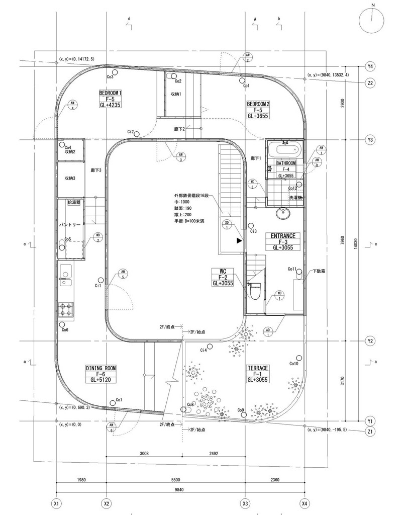
Arhitekta Kimihiko Okada je ovaj prvatni stambeni objekat nazvao Toda House. Njena struktura koja je podignuta iznad zemlje podseća na ptičje gnezdo koje stvara osećaj sigurnosti i distanciranja od uobičajenih gužvi koje se dešavaju na ulici.
Konstrukcija kuće se sastoji od betonske ploče zaobljenih ivica kroz koju je prodire spiralno stepenište.
Prizemlje objekta je projektovano kao otvoreno dvorište dostupno svima. Iznad ovog poluprivatnog prostora nalaze se dve stambene etaže.
Arhitekta je ovim objektom posmatrača uveo u novi način razmišljanja o strukturi stambenog objekta.







