Na Voždovcu planirana zgrada od 13 hiljada kvadrata
U Ustaničkoj ulici investitor „Trace Build“ planira izgradnju sedmospratnice sa 73 stana, pet lokala i 106 parking mesta.
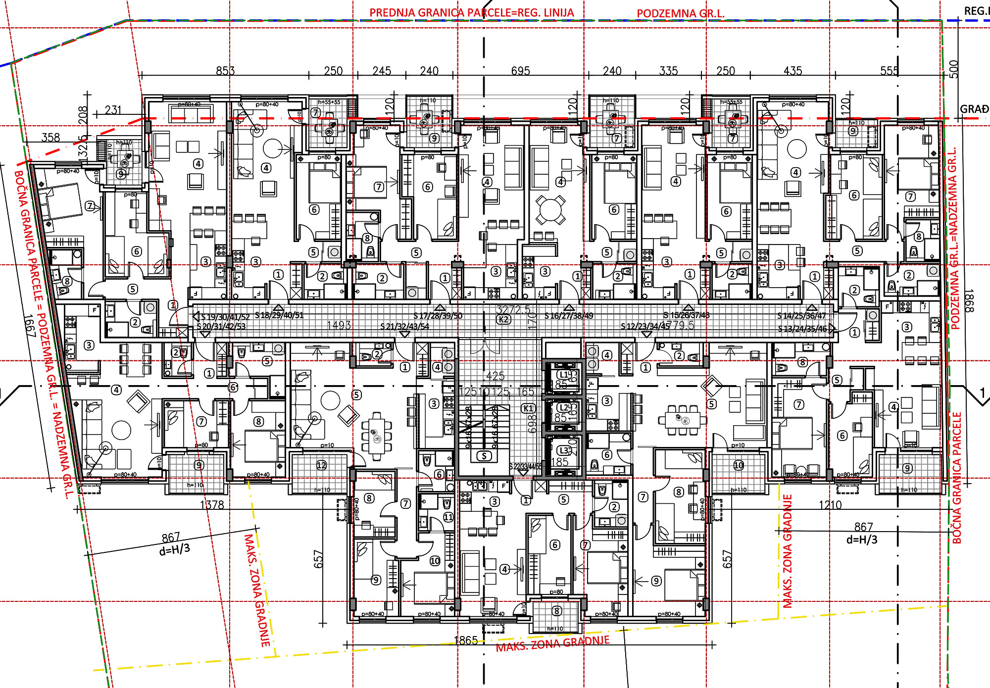
Gradska uprava Grada Beograda, Sekretarijat za urbanizam i građevinske poslove, oglašava javnu prezentaciju Urbanističkog projekta za izgradnju stambeno-poslovnog objekta spratnosti 2Po+Su+P+7+Ps na Voždovcu.
Nosilac izrade projekta je biro „Urbanistiq” iz Rakovice, koji je zahtev za potvrđivanje podneo u ime investitora, preduzeća „Trace Build“ iz Beograda.
Predmetna parcela nepravilnog je poligonalnog oblika površine 2.039 m2, a oslanja se na ulicu Ustaničku u delu planirane okretnice i raskrsnice sa ulicom Milenka Grčića. Na parceli je izgrađen prizemni objekat sa suterenom.

Planirane su tri garaže srednje veličine, odnosno 106 parking mesta od kojih je šest rezervisano za lica sa invaliditetom.
Objekat je ukupne BRGP površine 13.075 m2, odnosno nadzemno 8.906 m2 i podzemno 4.169 kvadrata. Visina objekta je 25,74 metara, a od drugog sprata formirani su prepusti (erkeri) preko građevinske linije širine do 120 cm.
U prizemlju i na prvom spratu su planirani poslovno-komercijalni sadržaji površine oko 1.500 kvadrata, raspodeljenih u pet poslovnih jedinica.
U suterenskoj i podrumskim etažama planirane su 3 garaže srednje veličine, odnosno 106 parking mesta od kojih je šest rezervisano za lica sa invaliditetom. Planirani su i mehanički sistemi višeetažnog parkiranja.

73 stambene jedinice
Na spratovima (od druge do povučene etaže) projektovane su 73 stambene jedinice različitih struktura, ukupne neto stambene površine oko 5.400 kvadrata.
Na tipskom spratu (2-6) projektovano je 11, na 7. spratu 10, a na povučenom 8 stanova. Stanovi su različitih struktura: dvosobni, trosobni i četvorosobni.

Kolski pristup iz Ustaničke
Kolski pristup objektu je planiran iz Ustaničke ulice preko kolskog prolaza na delu objekta i pristupne kolske rampe. U okviru prizemlja projektovani su ulazi u objekat, u stambeni deo, tri lokala i pristup interventnom stepeništu.

Na javnom uvidu do 17. decembra
U toku javnog uvida, elaborat za potrebe izrade Urbanističkog projekta biće izložen i na sajtu Grada Beograda.
Zainteresovana lica mogu tokom javne prezentacije da izvrše uvid u urbanistički projekat, kao i da svoje primedbe i sugestije dostave najkasnije do 17. decembra 2021. godine.
Grafički prilozi
Izabrali smo za vas…



stambene jedinice za koke nosilje. Nit se okrenuti, nit…
Ako je ovo nekome dobro i humano, onda sam ja u strasnoj zabludi i treba da batalim stosta sto se arh i urb tice // zaista
samo pet lokala za ovoliki golubarnik? nemoguće, neka greška
Pet lokala x 1000 m2 svaki i to je to, A ko će da ga rentira to je drugo.