Dva lica velike kuće u Vojvodini od nemačke opeke
Dok je ulična fasada čvrsta i stroga, lice ka unutrašnjosti oblikovano je tako da svojim velikim staklenim površinama prigrli celo dvorište.
Ne, ovo nije klasična vojvođanska kuća koje smo navikli da viđamo u ravnici. Ona je koncipirana na sasvim drugačiji način. Njena arhitektura i organizacija proizilaze iz njene veličine, odnosno potrebe da se mnogobrojni sadržaji prilagode placu.
Projekat ove velike porodične kuće od čak 470 kvadrata potpisuju arhitekte Branka Temunović i Vukašin Nikolić iz šabačkog biroa Invest Projekt d.o.o. koji za naš portal otkrivaju kako je izgledala izgradnja od 2017, kada je završen projekat, do 2022. godine kada je objekat useljen.
Pročitajte još na Gradnja.rs:

Stroga ka ulici, otvorena prema dvorištu
Klijenti su porodica koja vodi veoma aktivan život sa potrebom za prostorom koji ostavlja mogućnost za različite aktivnosti, a koji je dovoljno prostran, fleksibilan, podložan manjim unutrašnjim promenama, otvoren i osunčan, sa direktnom vezom sa dvorištem.
Arhitekte iz Šapca kažu da su se prilikom projektovanja objekta trudili da osmisle kuću koja će podržavati njihove svakodnevne aktivnosti na otvorenom.
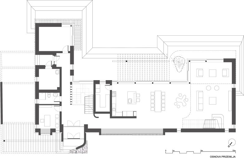
Stoga je objekat postavljen na severoistočni deo parcele sa čvrstim i strogim oblikovanjem fasade ka ulici koje je u kontrastu sa potpuno otvorenom fasadom ka intimnom dvorištu.
Takođe, ovi prozori aktiviraju dugačku uličnu fasadu koja je ka ulici primarno zatvorena zbog severne orijentacije, ali i kako bi se sačuvala privatnost unutrašnjeg prostora, što je, ističu autori, u skladu sa načinom izgradnje u ovoj sredini.

Prvi kontakt sa kućom je prolaz kroz lučni osvetljeni vetrobran, zaklonjen od pogleda sa ulice.
„Detalj kome smo posebno posvetili pažnju je kompletna ulazna particija. Ulaz u dvorište i objekat su naglašeni oblikovno i materijalizacijom, ali su istovremeno projektovani sa ciljem da sačuvaju intimnost prostora“ – navode naši sagovornici.
Prvi kontakt sa kućom je prolaz kroz lučni osvetljeni vetrobran, zaklonjen od pogleda sa ulice, nakon koga se kroz glavni ulaz pristupa prozračnom stepenišnom prostoru koje ima direktnu vezu sa dvorištem, vizuelnu i fizičku.
„Od ulaza ka dnevnom boravku, postepeno se vodi pogled uz povećanje volumena prostora, sve do dela dnevnog boravka sa duplom visinom. Na ovaj način je omogućen doživljaj laganog i zanimljivog otvaranja objekta“ – kažu arhitekte.

Duboka streha kao dodatna zaštita
Budući da su se autori opredelili za čistu kubičnu formu objekta sa plitkim kosim krovom, bili smo znatiželjni da saznamo da li je to bio zahtev klijenta ili njihova sopstvena odluka.
„Predmetna lokacija, klimatski uslovi i okolna građena sredina su uticali na poziciju objekta na parceli, njegovu orijentaciju, osnovni gabarit i volumen, kao i na većinu detalja primenjenih na objektu“ – objašnjavaju arhitekte.
Kosi krov je, kako dodaju, uobičajen za naše podneblje i klimatske uslove, dok duboka streha objekat dodatno štiti od atmosferskih uticaja i letnjeg pregrevanja.
„U estetskom smislu se težilo kombinaciji modernih i ’tradicionalnih’, odnosno lokalno zastupljenih formi, čime se složen krov prirodno nametnuo kao rešenje. Nagib krova i dužina strehe su vizuelno odabrani u odnosu na veličinu objekta“, navode iz Invest Projekta.

Korišćena je nemačka opeka sa takvom završnom obradom da ne postoje dve identične.
Što se tiče materijalizacije fasade, fasadni zidovi ventilisanog sklopa obloženi su fasadnom opekom, a listele koje su na licu mesta isecane od opeke korišćene samo na malim površinama, preko sendvič greda i u delu enterijera.
„Fasadna opeka je primarno postavljena na delovima objekta u kojima se provodi najviše vremena, kako bi se stvorio prijatan osećaj koji dolazi od upotrebe prirodnog materijala, te je najveća obložena površina upravo dvorišna fasada uz terasu, na prelazu unutrašnjeg i spoljašnjeg prostora.“ – navode autori .
Oblaganje opekom je upotrebljeno i da se naglasi glavni ulaz i vertikalna komunikaciju u objektu.
Korišćena je opeka nemačkog proizvođača Vandersanden sa takvom završnom obradom da ne postoje dve identične, ističu iz šabačkog studija.
Stakleni paneli ka dvorištu
Upečatljiv element objekta predstavlja i fasadna stolarija, te otvorenost prizemlja prema dvorištu, a željeni efekat postignut je Alumil Supreme S700 podizno-kliznim termički izolovanim sistemom.
„Dugački horizontalni fasadni prozori od aluminijumske stolarije su projektovani sa dubokim prozorskim klupicama kako bi dobili dodatnu funkciju, te na spratu predstavljaju proširenje prostora za dečiju igru, dok su na prizemlju trenutno ispunjeni cvećem i biljkama“, kažu iz Invest Projekta.
Želja da se unutrašnji prostor poveže sa dvorištem je podstakla organizaciju prostora u kojoj kompletna dnevna soba, trpezarija i kuhinja imaju vezu sa spoljašnjim prostorom, vizuelnu i fizičku, preko dugačke terase.
Ova veza se provlači već od same ulazne zone koja je visokim staklenim panelom sa kliznim vratima povezana sa dvorištem.

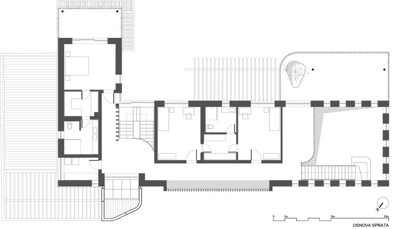
Dnevne prostorije na prizemlju i noćni deo na spratu su povezani preko dva stepeništa, koja omogućavaju kružno kretanje kroz kuću.
Kada je pak reč o programu, prilikom projektovanja sadržaja unutar objekta vodilo se računa o orijentaciji i osunčanosti objekta, načinu kretanja kroz objekat, povezanosti sa spoljašnjim prostorom, uz težnju za uvođenjem prirodnog osvetljenja u cilju stvaranja prijatne atmosfere.
Dnevne prostorije na prizemlju i noćni deo na spratu su povezani preko dva stepeništa, koja omogućavaju kružno kretanje kroz kuću.
Prostrani dnevni boravak sa trpezarijom i kuhinjom zauzima veliki deo prizemlja u zapadnom delu osnove, a velike staklene klizne površine unutrašnji prostor povezuju sa spoljašnjim uz omogućavanje dovoljno dnevne svetlosti.

U jutarnjim časovima, iz kuhinje se sagledava igra svetlosti kroz visoke prozore dnevne sobe sa duplom visinom.
„U jutarnjim časovima, iz kuhinje se sagledava igra svetlosti kroz visoke prozore dnevne sobe sa duplom visinom. Igra svetlosti se nastavlja u toku celog dana kroz pergolu ispred trpezarije, te se svakodnevne promene vremena i osunčanosti preko promenljivih senki uvode u objekat“ – navode autori.
U istočnom delu prizemlja se nalaze radna soba uz ulicu, zatim kupatilo, tehnička prostorija, sporedni ulaz u objekat i gostinska soba sa pogledom na dvorište.
Ugodan i energetski efikasan objekat
Na spratu se nalaze noćne prostorije. Dečije sobe sa kupatilom i garderobom su postavljene u centralnom delu osnove, uz galeriju, sa pristupom zajedničkoj terasi.
U jugoistočnom delu sprata je nezavisno organizovan roditeljski blok – spavaća soba sa garderobom, kupatilom i zasebnom terasom orijentisanom ka dvorištu. Uz ulicu, u severnom delu osnove se nalazi vešernica.
„Povoljna orijentacija kuće, sa pomoćnim prostorima i malim otvorima sa strane jakih i hladnih vetrova, zatim velikim otvorima ka jugu kako bi se iskoristilo zimsko sunce i zaklonima od letnjeg sunca, kao i pažljivo odabranim sistemima grejanja i hlađenja čine ovaj objekat energetski efikasnim, ali i ugodnim i komfornim za svakodnevni život“ – naglašavaju autori.

Kompletna dnevna soba, trpezarija i kuhinja imaju vezu sa spoljašnjim prostorom, vizuelnu i fizičku, preko dugačke terase.
Što se pak tiče uređenja unutrašnjeg prostora, ideja je bila da ono prati estetiku samog objekta, te da u enterijeru da preovlađuju prirodni materijali – drvo, opeka – i mirni tonovi kako bi se formirala prijatna i opuštajuća atmosfera.
„Izuzev dizajna kuhinje, detaljan projekat ostatka enterijera nije rađen, s obzirom da je klijentima trenutno potrebno da unutrašnji prostor i njegovo uređenje ostanu fleksibilni kako bi mogli da ga organizuju i prilagođavaju svojim aktuelnim potrebama, a koje se u ovom trenutku brzo menjaju. Odlučeno je da se detaljno uređenje enterijera ostavi za kasnije“ – kažu arhitekte i nastavljaju:
„Projekat kuhinje je urađen u skladu sa prethodne dve ideje. Cilj je bio da se formira komad nameštaja koji će biti u prirodnim bojama i materijalima, a estetski jednostavan i ne napadan kako bi odgovarao potencijalnim budućim promenama“.

Obostrano razumevanje i uvažavanje ideja
Po pitanju najvećih izazova kako u projektovanju, tako i u izvođenju „na daljinu“, naši sagovornici ističu da je za osmišljavanje prostora po meri potrebno vreme za upoznavanje klijenata, njihovih želja, potreba i načina života te objedinjavanje svih tih delova u jednu smislenu celinu.
„S obzirom da je postojalo obostrano razumevanje i uvažavanje ideja, posebnih poteškoća u projektovanju nije bilo“ – kažu šabačke arhitekte i na kraju dodaju:
„Radove na gradilištu su klijenti samostalno aktivno pratili, uz našu podršku po potrebi. Danas tehnologija omogućava da se određeni detalji razreše iako niste prisutni na licu mesta. Povremeni obilasci i česti telefonski razgovori su bili sasvim dovoljni“.
Grafički prilozi
Foto-galerija


















Faktografija
Kuća u Vojvodini
Vojvodina, Srbija
Branka Temunović, dia i Vukašin Nikolić, dia
„Invest Projekt“ d.o.o. Šabac
2016–2017.
2017–2022.
643 m2
470 m2
P+1




Ja kada bih imao toliko.para da gradim, gradio bih klasicno – zidovi, prozori, vrata krov basta…po meri coveka. Ovo je van pameti…
Zašto? Samo zato što nije klasična „gastarbajterska“ kućerina, nego moderna kuća/vila sa minimalističkim enterijerom? Vidiš, ja bih, da imam novaca, upravo ovako nešto želeo za svoju porodicu i sebe..
Prelepa, ukusno, decentno,
respekt vlasnicima i arhitektima!
Dugo godina radim kao izvođač u građevinskoj industriji i investitor ali davno me neki objekat nije osvojio kao ovaj!
Jedva čekam da ga vidim uživo.
Ova kuc nije po meri potrebe blasnika vec po meri debljine nivcanika.Ovo stvarno nema veze sa potrebom.Mogu da zamislim vlasnik ima dva tuceta dece pa im treba preko 400 kvadratnih metara.Dobro ako neko moze sto da ne barem ce neko da nadje poso ko cistacica,bastovan kuvarica ili dadilja.
Glas Za Kucu u Vojvodini Invet Project
Prelepa kuca, ova otvorena dnevna soba cista fantazija.