Kuća za odmor u Elemiru: Beli kubusi na obali nekadašnje Tise
Nedovršena prizemna kuća transformisana je u savremeno utočište sa stambenim i spa blokom, bazenom i panoramskom terasom sa pogledom na rit.
Na obodu banatskog sela Elemir realizovan je projekat remodelovanja nedovršene prizemne kuće, koji je arhitekta Stevan Šušak iz studija Arhitelier iz Zrenjanina pretvorio u savremenu kuću za odmor.
Danas sastavljena od stambenog objekta i bazena, ova kuća za odmor od oko 200 kvadrata odlikuje se modernističkim projektantskim pristupom lokaciji i prilagođavanjem postojećih i novoprojektovanih struktura morfologiji terena i izgrađenom seoskom okruženju.
Pročitajte još na Gradnja.rs:

Bele strukture ukorenjene u teren
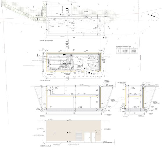
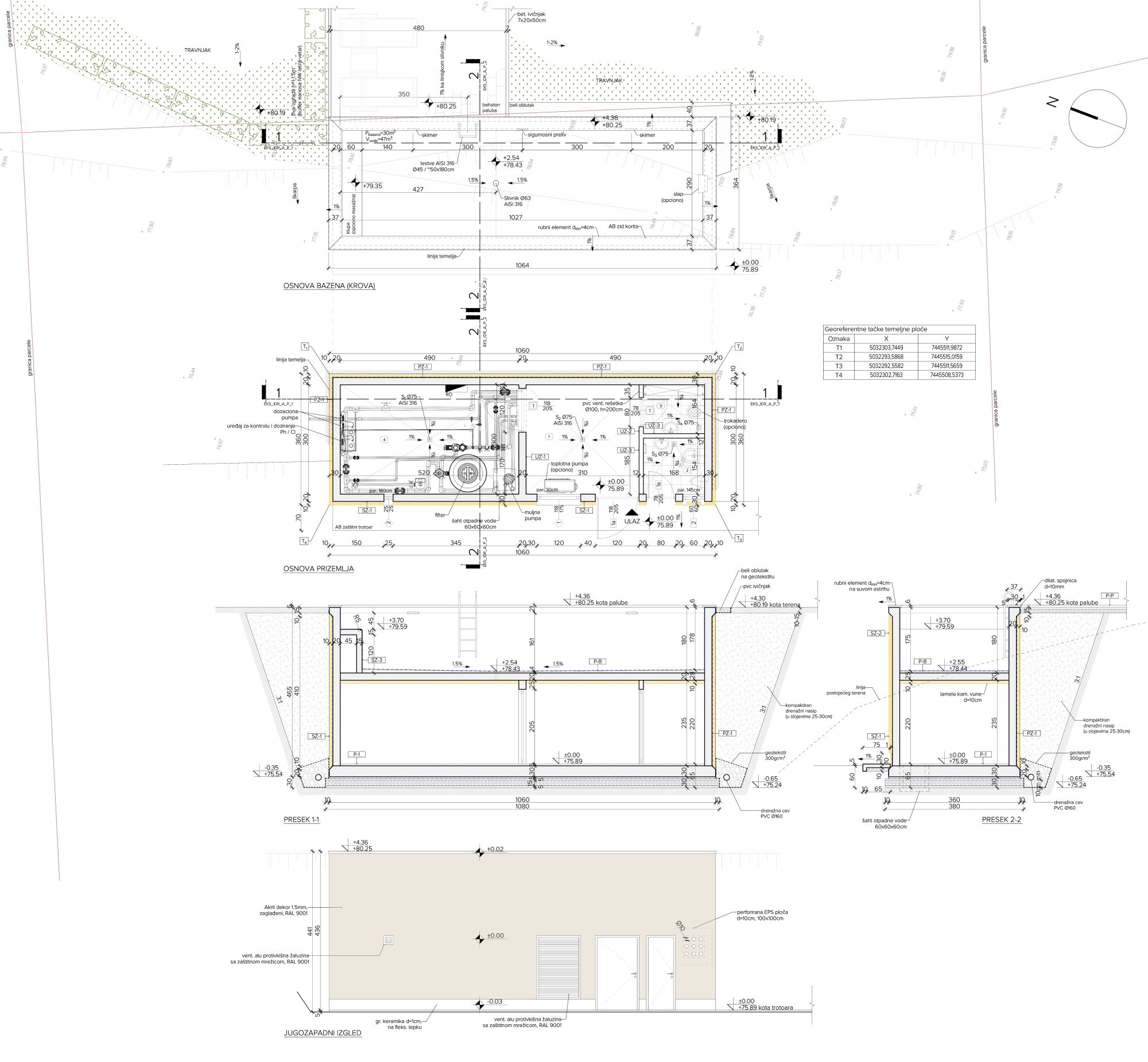
Investitor je definisao zadatak da postojeća kuća bude adaptirana u dvodelnu strukturu: stambeni blok i odvojeni spa blok, uz dodatke u dvorištu – bazen i natkrivenu terasu sa pogledom na ritski pejzaž.
Tako je postojeći objekat „usitnjen“ podelom na tri denivelisana dvovodna krova sa ukinutom strehom, a delimično ukopani bazen, dvorišno stepenište i natkrivena terasa sa potpornim zidom se nadovezuju na glavnom specifikumu lokacije – uzvišenju nekadašnje obale Tise duž zadnje granice parcele.
„Odgovor na zadatak i lokaciju je tražen u relaciji manjih arhetipskih belih struktura ukorenjenih u teren, koje kao celina tiho prisustvuju na zelenom uzvišenju uz banatski rit“, objašnjava za portal Gradnja zrenjaninski arhitekta.

Ulična fasada redukuje otvore na minimum, dok se dvorišna otvara prema horizontu i zalasku sunca.
Kako dalje navodi Stevan Šušak, novoprojektovano rešenje objekta predviđa ulaz putem natkrivenog trema i centralnog hola sa nezavisnim pristupom u stambeni blok, spa blok, i dvorište sa bazenom.
„Stambeni blok sadrži višenamensku prostoriju i spavaću zonu sa degažmanom i kupatilom, kapaciteta šest ležaja. U okviru spa bloka su, pored standardnih sadržaja saune i đakuzija, predviđeni tepidarijumi i tursko kupatilo, kao i prateće sanitarne prostorije“, kaže autor.

Bazen je koncipiran kao lap pool, delimično ukopan u nasip i orijentisan ka jugozapadu radi prirodnog zagrevanja vode.
Ulična fasada u cilju privatnosti redukuje fenestraciju na samo jedan prozorski šlic dnevne zone sa pogledom na ulaz u objekat, dok je rešenje jugozapadne dvorišne fasade proisteklo iz enterijerskog pozicioniranja svih spa sadržaja i dnevne zone, sa optimalnom kalibracijom veličina otvora kadriranih za nesmetane poglede ka ritskom horizontu i zalasku sunca.
Manji prozorski otvori predviđeni za prirodnu poprečnu ventilaciju svih prostora su maskirani perforiranim EPS pločama u sklopu bele ETICS fasade, objašnjava zrenjaninski arhitekta i dodaje:
„U okviru natkrivene panoramske terase koja zauzima najviši ugao dvorišta, predviđena je letnja kuhinja i prostor za sedenje – delom uz prostani sto, a delom uz transponovani mediteranski pižun – ugaonu klupu, koja je ujedno i zaštitna ograda i sastavni deo potpornog zida terase sa oblogom od ploča beličastog štokovanog travertin kamena“.
Projektom je nedovršeni objekat pretvoren u kuću za odmor koja povezuje savremeni komfor i seoski pejzaž.
Projektovan je skimerski uski bazen za plivanje i relaksaciju (eng. lap pool), površine od 38 m², pozicioniran na krovu dvoetažnog armirano-betonskog objekta usečenog u nasip obale, sa vizuelno i zvučno izolovanim tehničkim i sanitarnim prostorijama na donjoj etaži, kojima se putem „L“ stepeništa sa palube pristupa na nivou rita.
Bazen je termoizolovan, sa podužnom orijentacijom ka jugozapadu, čime je obezbeđeno efikasno zagrevanje vode. U prelaznim periodima, zagrevanje vode je obezbeđeno putem toplotne pumpe. Završna obrada bazenskog korita i masažne klupe je u plavičastom staklenom mozaiku, sa gerovanom rubnom bazenskom keramikom.

Primer za ugled
Projektom u Elemiru pokazano je da se i nedovršeni objekti u seoskom okruženju mogu transformisati u arhitektonski promišljene kuće za odmor. Spoj postojećeg volumena, pažljivo uklopljenih novih sadržaja i relacija sa pejzažem rita, rezultirao je skladnom celinom koja istovremeno pruža privatnost i otvara se ka prirodi.
Kuća je primer kako savremena arhitektura može da poštuje lokalni kontekst, a da pritom ponudi savremeni komfor i sadržaje koji su do sada bili rezervisani uglavnom za urbane sredine.
Grafički prilozi
Foto-galerija
Faktografija
Kuća za odmor
Elemir, Zrenjanin
2025.
stambeni objekat 200 m² (BGP), objekat bazena 38 m² (BGP)
privatno lice
Stevan Šušak, dia, studio Arhitelier, Zrenjanin (2022)
Stevan Šušak















Najljepsa stvar je kad vas sa ovih okolnih njiva zaplahne miris sto stajskog sto vjestackog djubriva, a to se jos pojaca sa vjetrom preko ravnice iz svih pravaca plus zvuk traktorskih motora tokom citave godine. Postoji razlog zasto se kuce ne prave u njivama genijalci???
Е мој Вахиде, не разумеш равницу и ниси одмакао од носа кад су у питању сазнања у току живота. Не знаш ти како „и кад жито коси глава човеку у равници у небо штрчи“. Парафразирам Коњовиће о ком ти појма немаш нажалост. И како уз зујање цврчака се таласају у сумрак војвођанска жита….. А кад су једног банаћана питали како се осећа у брдовитом пределу он је одговорио“као шљива у гомбоци (кнедли)!“
Vestacko djubrivo ne smrdi, a stajnjaka nema mnogo i vecina njiva u drzavi ga nikada ne vidi. Sto se tice traktora, sezona nije cele godine, nego povremeno, a osim ako ti ne ore dvoriste, nije bucno. Jesi ti ikada bio van centra grada? Znas kako izgleda krava, koza…?
Najbolji PRE i POSLE koji sam video u poslednje vreme na našim prostorima.
baš sam hteo isto da napišem, jel čuo neko za drvo u srbiji , naročito vojvodini? da nije poslednjih godina drvo postalo opasno po život?