Foto: Tadej Bolta
Regionalni projekti

Kako je veštom dogradnjom proširena najveća osnovna škola u Ljubljani 

Dogradnja je morala biti kako konstruktivno tako i protivpožarno potpuno nezavisna od postojećeg objekta zbog čega ona nije u kontaktu sa postojećom strukturom. Evo kako je to izvedeno!

Osnovna škola Vič ima najveći broj učenika u Ljubljani, a kako grad raste i broj učenika se dodatno povećava. Školska uprava je posvećena očuvanju kvaliteta školskog prostora, koji pruža odgovarajući obrazovni ambijent za svakog učenika, te je prioritetni zahtev za prostorom uključivao uspostavljanje dodatnog broja učionica.

Broj učenika u razredima je standardizovan, kao i veličina učionica. Stoga, prioritet školske uprave je bio da se obezbedi ekvivalentan prostor za učionice, u odnosu na povećan broj učenika. Projekat dogradnje je poveren ARP studiju, arhitektonskoj firmi sa kancelarijama u Ljubljani i Kopru.  

Pročitajte još na Gradnja.rs:

Veliki prozori omogućavaju deci poglede na zelenu površinu pored škole; Foto: Tadej Bolta

Jasna i funkcionalna prostorna organizacija

Osnovna škola Vič, koja je izgrađena 1976. godine, ima jasnu i funkcionalnu prostornu organizaciju. Prostor škole je podeljen je na dva dela, sa učionicama i kabinetima za više i niže razrede. 

Između dva dela, na centralnoj osi, nalaze se zajednički prostori za svu decu, odnosno trpezarija, gimnastička sala i sala za sastanke. 

Zapadni deo, koji sadrži učionice za više razrede, završen je prema originalnim planovima, dok istočni deo, sa učionicama za niže razrede, nije završen prema planovima, ostavljajući nedovršenu nišu na delu fasade. 

Baš ovaj nedograđeni prostor ponudio je mogućnost za novu intervenciju kako bi se rešili prostorni problemi škole, pružajući uspostavljanje dve nove učionice i male svlačionice za najmlađe učenike. 

Jedna od dve nove učionice; Foto: Tadej Bolta

Konstruktivno i protivpožarno nezavisna dogradnja

Kako bi bila u skladu sa zakonskim propisima o izgradnji, dogradnja je morala biti kako konstruktivno tako i protivpožarno potpuno nezavisna. 

Da bi se ovo ispoštovalo, novi objekat nije u kontaktu sa postojećom strukturom, dok novi je prostor dobio protivpožarne stepenice, koje omogućavaju direktan izlaz iz dve nove učionice. 

Foto: Tadej Bolta
Foto: Tadej Bolta
Foto: Tadej Bolta
Foto: Tadej Bolta

Na fasadu su dodate vertikalne letve, koje se protežu sa obe strane osnovnog volumena i omekšavaju prelaz između novog i starog dela. 

Dogradnja je projektovana kao umetnuti objekat između dve postojeće bočne fasade, koje su i renovirane tokom gradnje. Novi element je vidljivo dodat postojećoj strukturi i širi se izvan postojećeg plana fasade. 

Na fasadu su dodate vertikalne letve, koje se protežu sa obe strane osnovnog volumena i omekšavaju prelaz između novog i starog dela. 

Dogradnja je projektovana kao umetnuti objekat između dve postojeće bočne fasade; Foto: Tadej Bolta

Zidovi obloženi pločama od plute

Učionice su izrađene od prirodnih materijala, a pored drveta, zidovi su obloženi pločama od plute, koje učenici i nastavnici koriste kao površinu za izlaganje. 

Veliki prozori omogućavaju deci poglede na zelenu površinu pored škole, na kojoj su posađena i dodatna stabla. Tako će u učionicama na spratu đaci imati osećaj da im se bar deo časova odvija u krošnjama drveća.

„Pogled na njih je podjednako važan kao i pogled na tablu, jer je sanjarenje takođe deo učenja“ – objasnile su arhitekte iz ARP studija.

Ovako osmišljena dogradnja ne samo da zadovoljava funkcionalne potrebe povećanog broja učenika, već i stvara prijatno i podsticajno okruženje koje se, zahvaljujući pažljivom planiranju i dizajnu, skladno uklapa u postojeći školski kompleks.

Grafički prilozi

Situacioni plan
Situacioni plan
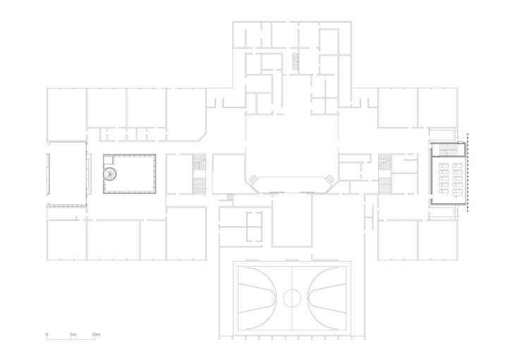
Osnova prizemlja
Osnova prizemlja
Elevacija
Elevacija

Originalni izgled škole

Originalni izgled škole iz 1976. godine; Foto: Tadej Bolta

Foto-galerija

Foto: Tadej Bolta
Foto: Tadej Bolta
Foto: Tadej Bolta
Foto: Tadej Bolta
Foto: Tadej Bolta
Foto: Tadej Bolta
Faktografija
naziv obejkta:

Proširenje osnovne škole Vič

mesto:

Ljubljana, Slovenija

autor:

ARP studio

površina:

229 m²

godina realizacije:

2019.

fotografija:

Tadej Bolta

Izabrali smo za vas...

Postani deo Gradnja zajednice

Najnovije vesti s našeg portala svakog petka u vašem sandučetu.

Dizajn enterijera

Srodni tekstovi

Ostavite odgovor

Obavezna polja *