Preuzmite besplatno 21. šemu za projektovanje bioskopa, pozorišta i auditorijuma
Raspored sedenja, linije pogleda, pristupačnost i akustika samo su neki od važnih aspekata u projektovanju teatra. Ove šeme vam mogu olakšati posao!
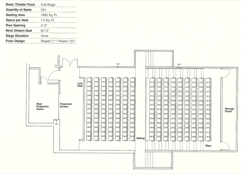
Kao deo podrške arhitektama i dizajnerima, tim kompanije Theatre Solutions Inc (TSI) ponudio je katalog sa 21. razrađenom šemom bioskopa potpuno besplatno.
Svaki plan dolazi sa informacijama o broju sedišta, prostoru za publiku, razmacima prolaza i ostalim detaljima potrebnim za projektovanje bioskopa.

Svaka šema dolazi s informacijama o broju sedišta, prostoru za publiku, razmacima prolaza…
Saznajte koje su prednosti kada osobe u teatru sede jedno iz drugog, ili kada su sedišta smaknuta. Takođe, preko ovih šema možete saznati koje su prednosti a koje mane kada su sedišta organizovana linijski a kakva kada su raspoređena kružno.

Naravno, ove šeme se mogu koristiti i pri osmišljavaju auditorijuma, pozorišta i svih sličnih prostorija za zajedničke projekcije, nastupe ili predavanja.
Više informacija o projektovanju bioskopa, kao i link za preuzimanje šema pronađite ovde.
Povezano: 10 besplatnih knjiga o arhitekturi koje možete čitati onlajn
Naslovna: Rick Barett, Unsplash
