U Ritopeku u planu kompleks od 10 porodičnih kuća – primedbe do 31. decembra
Urbanistički projekat na javnom uvidu otkriva plan za izgradnju deset objekata sa ukupno 19 stanova na potezu Maklice.
U beogradskom predgrađu Ritopek planirana je izgradnja kompleksa od 10 porodičnih kuća za stanovanje i odmor, spratnosti od Po+P+1 do P+2, u Ritopečkoj ulici, na potezu Maklice. Planove investitora, koji je privatno lice, otkriva urbanistički projekat koji se od utorka nalazi na javnom uvidu na zvaničnom sajtu Grada Beograda.
Urbanistički projekat izradilo je preduzeće GEA – Kostic & ING d.o.o. iz Beograda, dok je kao odgovorni urbanista potpisan Miroslav Kovačević, dia. Odgovorni projektant je Željko Boškić, dia, a projektant saradnik Filip Kostić, mia.
Pročitajte još na Gradnja.rs:

Parcela od 4.467 kvadrata
Urbanističkim projektom su obuhvaćene KP 3056/1 i 3056/3 u KO Ritopek koje sačinjavaju GP01, ukupne površine od 4.467 m². Sa jugoistočne strane regulaciona linija se poklapa sa regulacionom linijom ulice Ritopečke, sa koje se pristupa u sam kompleks.
Sa ostalih strana predmetne parcele graniče se sa susednim parcelama (KP 3053/2, 3055/1,3055/5 i 3056/ 5, KO Ritopek). Parcele su u konstantnom nagibu i visinska razlika od saobraćajnice do severozapadne granice parcele je 12 metara.
U 10 objekata projektovano 19 stanova
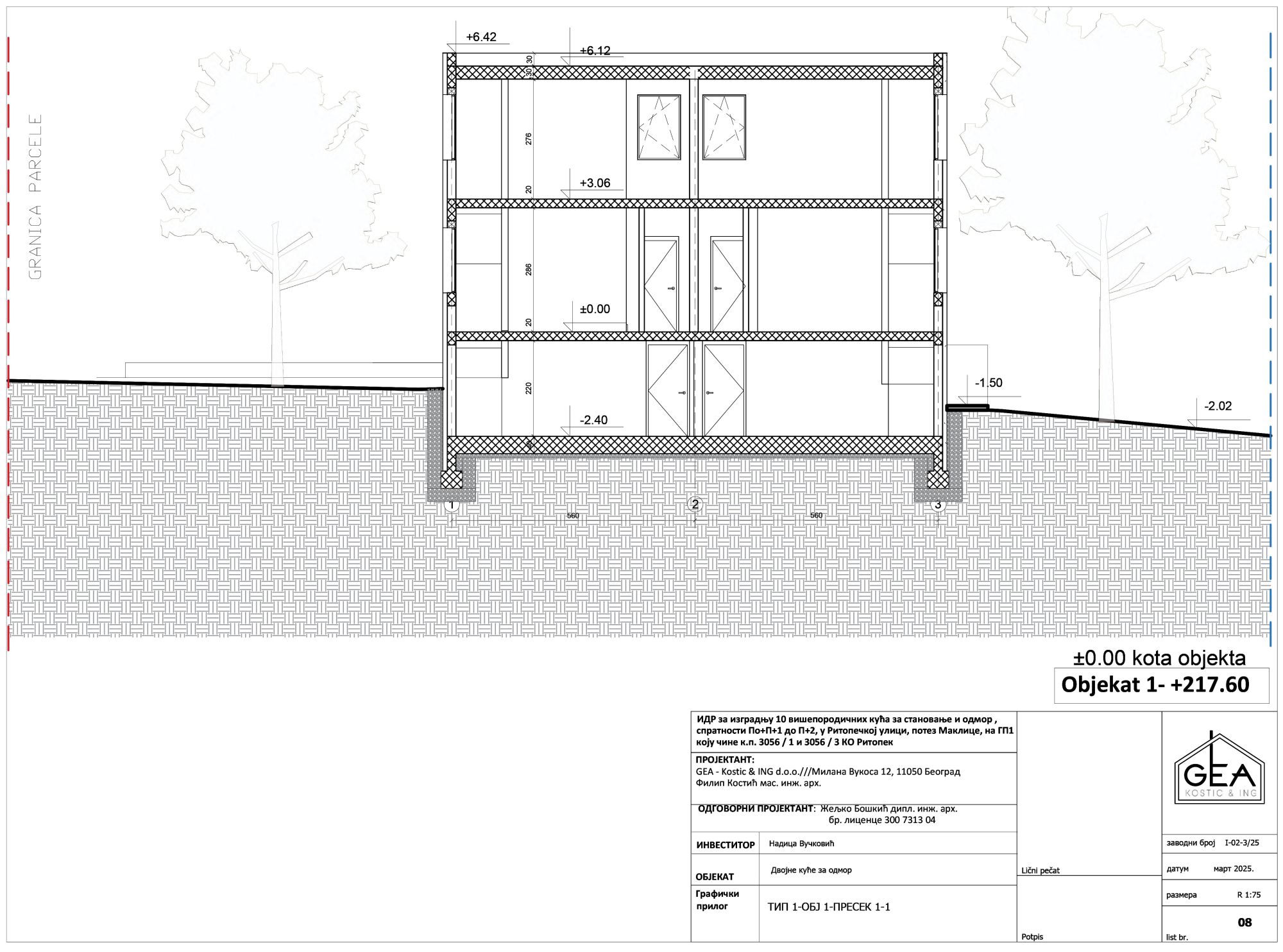
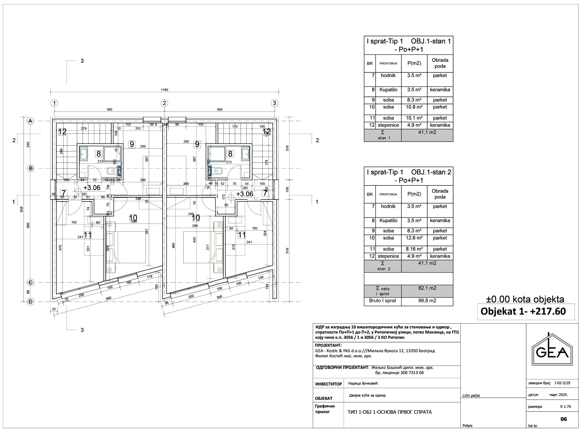
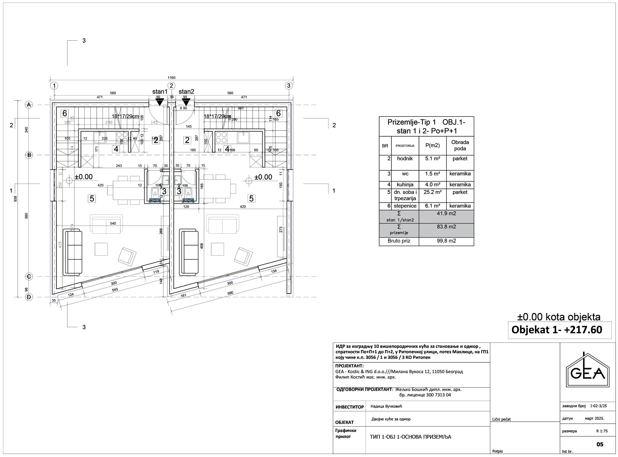
Na parceli je planirana izgradnja vikend porodičnih kuća za stanovanje i odmor, spratnosti od Po+P+1 do P+2. Predviđena je izgradnja 9 dvojnih stambenih objekata sa dva odvojena stana i zajedničkom garažom i jednog samostalnog objekta sa sopstvenom garažom u podrumu.
Dvojni objekti su tipa 2 kojih ima 4, tipa 4 kojih ima 3, dok su tipovi 1 i 5 takođe dvojni objekti, a razlikuju se od tipa 2 i 4 po tome što su veće površine. Samostalni objekat je obeležen kao tip 3. Ukupno je u kompleksu projektovano 19 dvoetažnih stanova.
Parkiranje je predviđeno u otvorenoj garaži i uz internu saobraćajnicu. Kolski ulaz na parcelu je preko upuštenog ivičnjaka i ojačanog trotoara. Na parceli se predviđa smeštaj 30 vozila – 19 parking mesta u okviru objekta i 11 uz interni put. Ukupna BGRP celog kompleksa iznosi 1.898 m² nadzemno i 749 m² podzemno.

Na javnom uvidu do kraja godine
Zainteresovana lica mogu tokom javne prezentacije da izvrše uvid u urbanistički projekat, kao i da svoje primedbe i sugestije na planirana rešenja u pisanoj formi dostave na pisarnicu Sekretarijata za urbanizam i građevinske poslove, Kraljice Marije br.1, najkasnije do 31. decembra 2025. godine.






