Urbanistički projekat na javnom uvidu do 28. maja; Vizuelizacija: MS Design Pro
Novi objekti

North Construction iz Valjeva planira na Paliluli stambenu šestospratnicu

Na javnom uvidu našla se zgrada sa 11 stanova koja je planirana da se podigne u Ljube Didića 31 na kojoj se trenutno nalazi porodična kuća.  

Grad Beograd oglasio je početkom ove sedmice javnu prezentaciju urbanističkog projekta za izgradnju stambene šestospratnice, koju u Ulici Ljube Didića na Paliluli planira investitor North Construction d.o.o. iz Valjeva.

Nosilac izrade UP-a je preduzeće IBM Consult iz Beograda, obrađivač idejnog rešenja je studio za arhitekturu i dizajn MS Design Pro, takođe iz Beograda, dok je kao odgovorni projektant arhitekture potpisana Mikana Savić, dia.

Pročitajte još na Gradnja.rs:

Katastarsko-topografski plan sa granicom obuhvata UP-a

Postojeći objekat predviđen za rušenje

Predmet ovog urbanističkog projekta je izgradnja stambenog objekta spratnosti Po-2+Po-1+P+5+Ps, koji je predviđen u Ulici Ljube Didića na kućnom broju 31, na katastarskoj parceli površine od 309 m².

Na parceli se nalazi stambeni objekat – porodična stambena zgrada čija je bruto površina preuzeta iz zemljišne knjige u iznosu od 118 m². Planirano je njeno uklanjanje, kao i uklanjanje postojeće ograde.

Analiza urbanističkog konteksta

Dvosobni stanovi i trosobni dupleksi

Objekat je koncipiran kao savremeni objekat namenjen višeporodičnom stanovanju, ukupne bruto površine od 1.452 m².

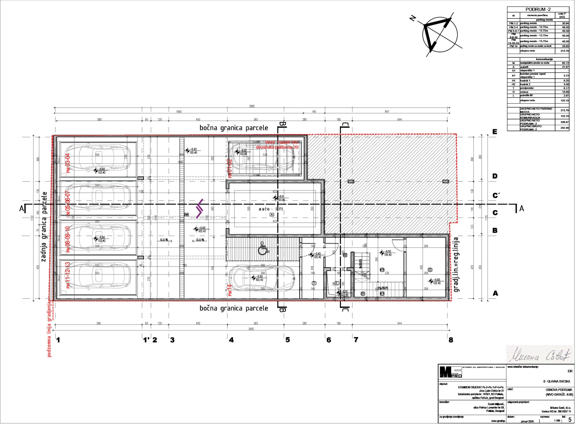
Kolski pristup se ostvaruje kroz garažu u podrumu -2 i podrumu -1, u kojoj je smešteno ukupno 14 parking mesta.

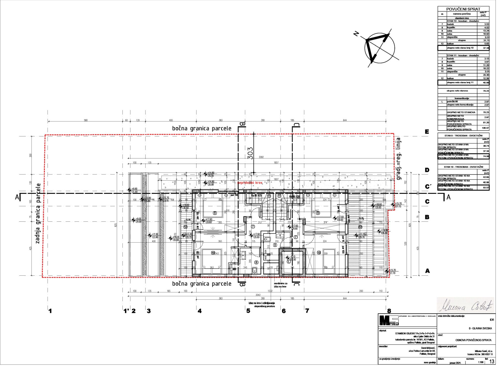
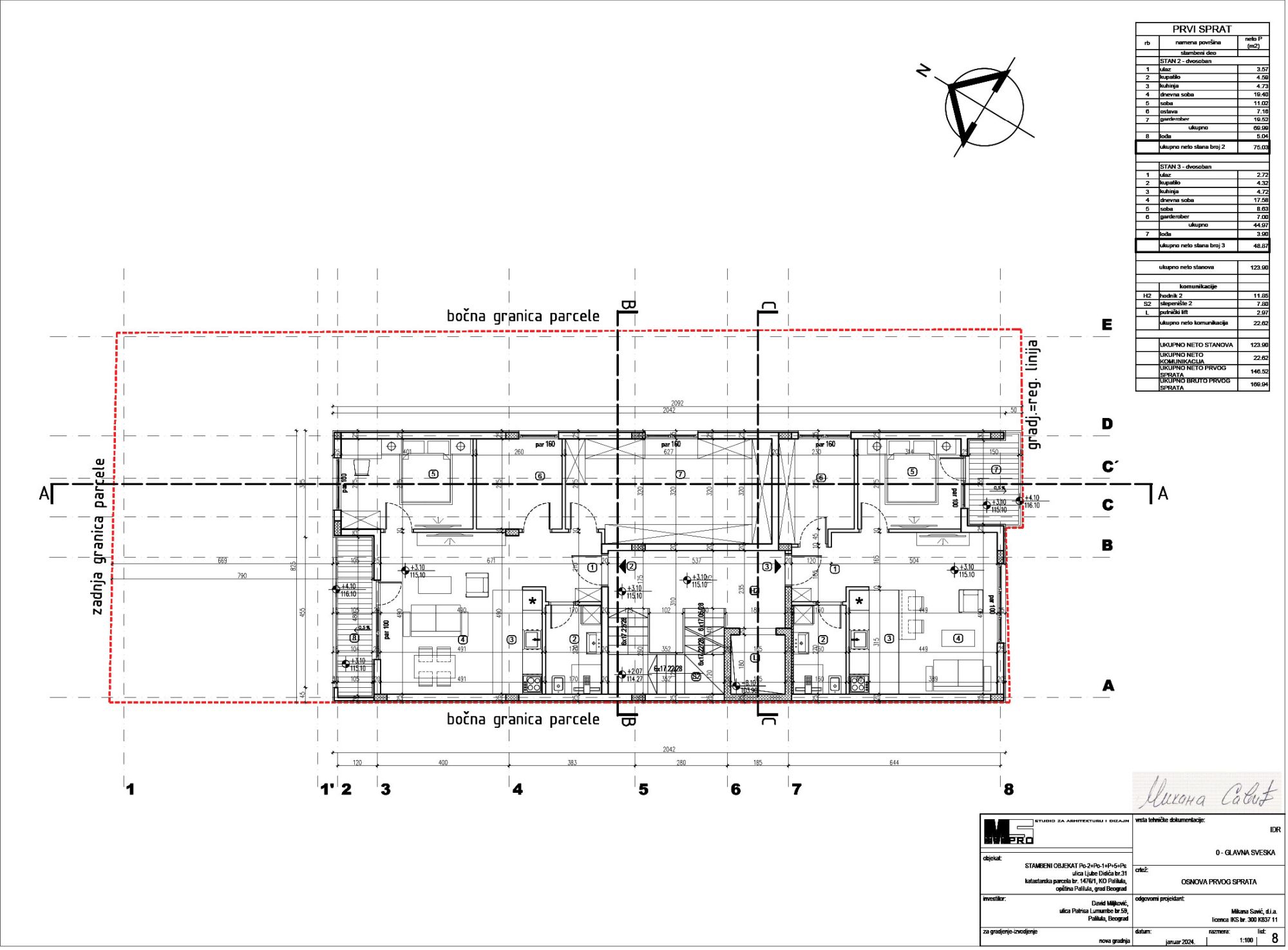
U prizemlju je projektovan jedan dvosoban stan, po dve dvosobne stambene jedinice planirane su od prvog do četvrtog sprata, dok su peti i povučeni sprat trosobni dupleksi.

Tako dolazimo do ukupnog broja od 11 stambenih jedinica projektovanih na šest etaža, sa kvadraturom koja se kreće od 47 m² (stan u prizemlju) do 83 m² (dupleks ulične orijentacije).

Na šest etaža projektovano je 11 stambenih jedinica; Vizuelizacija: MS Design Pro

Iznad gornje ploče garaže formirano je dvorište za buduće korisnike, dok su zelene površine parterno uređene.

U prizemlju je projektovan pešački pristup i tu se nalazi ulaz sa vetrobranom i komunikacijski prostor stepeništa i lifta kao i zasebno stepenište koje povezuje prizemlje sa dve podrumske etaže.

Glavne vertikalne komunikacije kreću od prizemlja do petog sprata i povezuju sve etaže, njima je omogućen pristup svim stanovima.

Iz podrumske etaže -1 je ostvaren izlaz u zadnje dvorište, preko zajedničkih komunikacija, odnosno stepenica. Iznad gornje ploče garaže/podrumske etaže -2 formirano je dvorište za buduće korisnike, dok su zelene površine parterno uređene, navodi se u Idejnom rešenju.

Ukupna bruto površina objekta iznosi 1.452 m²; Vizuelizacija: MS Design Pro

Primedbe i sugestije do 28. maja

Zainteresovani mogu tokom javne prezentacije da izvrše uvid u Urbanistički projekat, kao i da svoje primedbe i sugestije na planirana rešenja dostave Sekretarijatu za urbanizam i građevinske poslove najkasnije do 28. maja 2024. godine.

Grafički prilozi

Situacioni plan sa osnovom krova
Situacioni plan sa osnovom krova
Osnova podruma -2
Osnova podruma -2
Osnova prizemlja
Osnova prizemlja
Osnova prvog sprata
Osnova prvog sprata
Osnova petog sprata
Osnova petog sprata
Osnova povučenog sprata
Osnova povučenog sprata

 

3D vizuelizacija

Urbanistički projekat na javnom uvidu do 28. maja; Vizuelizacija: MS Design Pro
Urbanistički projekat na javnom uvidu do 28. maja; Vizuelizacija: MS Design Pro
Vizuelizacija: MS Design Pro
Vizuelizacija: MS Design Pro
Vizuelizacija: MS Design Pro
Vizuelizacija: MS Design Pro
Vizuelizacija: MS Design Pro
Vizuelizacija: MS Design Pro
Vizuelizacija: MS Design Pro
Vizuelizacija: MS Design Pro

Izabrali smo za vas...

Postani deo Gradnja zajednice

Najnovije vesti s našeg portala svakog petka u vašem sandučetu.

Dizajn enterijera

Srodni tekstovi

Ostavite odgovor

Obavezna polja *