Kondominijumsko naselje sa 99 stanova planirano i u Starim Banovcima
Dva stambena objekta kraj buduće marine na Dunavu projektovana su sa podzemnim garažama u kojima će biti smešteno ukupno 40 parking mesta.
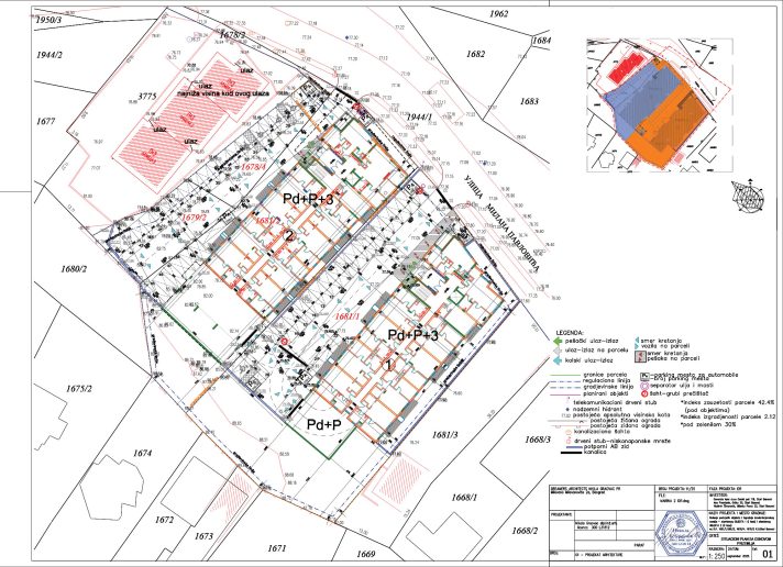
Nakon najave planova za realizaciju kondominijuma u Novim Banovcima, Odeljenje za urbanizam i građenje Opštine Stara Pazova javno je predstavilo urbanistički projekat za izgradnju stambenog naselja istog tipa i u obližnjim Starim Banovcima. Investitori su dva fizička lica i preduzeće Concrete Land d.o.o. iz tog mesta.
Nosilac izrade predmetnog urbanističkog projekta je G&P Pro-Ing d.o.o. iz Stare Pazove, dok je obrađivač idejnog rešenja beogradski studio Dreamers Architects. Kao odgovorni urbanista potpisana je Maja Josipović, dia, kao odgovorni projektant Nikola Graovac, dia, a kao projektant saradnik Goran Zeković, dig.
Pročitajte još na Gradnja.rs:
Dva stambena objekta kraj buduće marine
Stambeni kompleks koji se planira za izgradnju nalazi se u Ulici Milana Pavlovića, u okviru zone stanovanja u bloku 29 koji je namenjen u većem delu individualnom stanovanju sa pratećim poslovanjem prema glavnoj naseljskoj saobraćajnici.
Severni deo bloka koji se graniči sa budućim kompleksom marine namenjen je centralnoj zoni naselja. „Očekuje se urbanistička transformacija postojećeg stanovanja u kolektivno stanovanje ili rekreativne i ugostiteljske sadržaje, aktivnosti vezane za akvatorijum Dunava i marine“, navodi se.
Severni deo bloka koji se graniči sa budućim kompleksom marine namenjen je centralnoj zoni naselja.
Izgradnja kondominijumskog naselja u Starim Banovcima planirana je u dve faze, gde će u svakoj pojedinačnoj fazi biti realizovan po jedan stambeni objekat namenjen višeporodičnom stanovanju, spratnosti Po+P+3.
Što se tiče ostvarenih urbanističkih parametara, ukupna površina parcele iznosi 4.126 m², ukupna bruto izgrađena površina objekta br. 1 je 3.949 m², objekta br. 2 4.785 m², čime dolazimo do ukupne brute površine celog kompleksa koja iznosi 8.734 m².

99 parking mesta za 99 stanova
Stambeni objekat br. 1, u grafičkoj dokumentaciji označen kao Marina 1, sastoji se iz podruma – u kom su smešteni garaža sa 20 parking mesta i podrumske/tehničke prostorije i ostave, nadstrešnice silaza u garažu, prizemne i tri tipske stambene etaže.
U objektu je projektovano 46 stambenih jedinica. Glavni ulaz u objekat za stanare je sa bočne desne strane objekta – severozapadna strana. Sa stambenim objektom br. 1 u prvoj fazi izgradiće se potrebna interna saobraćajnica, manipulativni prostor, pešačka staza i potreban broj parking mesta na parceli – 26.
Takozvana Marina 2, iliti Stambeni objekat br. 2, u podrumskoj taži takođe ima garažu i podrumske/tehničke prostorije i ostave, kao i natkriveni prilaz u podrumsku garažu, te stambene etaže raspoređene od prizemlja do trećeg sprata.
U objektu se nalaze 53 stambene jedinice. Glavni ulaz u objekat je sa iste strane kao i ulaz u Marinu 1. U podrumskim prostorijama nalaziće se garaža sa 20 PM i natkriveni parking koji će sadržati još 7 PM. Na parceli je planirano i dodatnih 26 PM, što ukupno čini 53 parking mesta.
Javna prezentacija do 19. decembra
Zainteresovana lica mogu u toku javne prezentacije da izvrše uvid u urbanistički projekat, u prizemlju zgrade Opštine u Staroj Pazovi, radnim danima od 7.30 do 15.00 časova, na internet stranici Opštine Stara Pazova, kao i da svoje primedbe i sugestije na planirana rešenja u pisanoj formi dostave Odeljenju za urbanizam i građenje, OU Stara Pazova, ul. Svetosavska br. 11, najkasnije do 19. decembra 2025. godine.






