Tripleks u Parizu: Kako rasporediti 65 kvadrata u tri nivoa
U ovaj neobičan pariski stan nije stala samo samo kancelarija već i garsonjera za izdavanje.
Arhitekonski biro Studio Pan dobio je izazovan zadatak da tripleks, smešten u hipsterskom 11. arondismanu Pariza, pretvore u multifunkcionalan prostor koji će mladom bračnom koristiti i kao životni prostor, i kao prostor za rad i prijem stranaka ali i za izdavanje. Pogledajte kako im je pošlo za rukom da ove tri različite funkcije smeste u samo 65 kvadrata raspoređenih na tri nivoa.
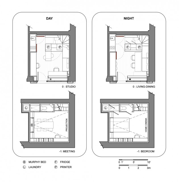
Prizemlje se tokom dana koristi kao kancelarija, a po isteku radnog vremena ono se pretvara u dnevni boravak.
Pošto je stan podeljen na tri nivoa (podrum, prizemlje i sprat) bilo je logično rešenje da se sprat izdaje dok je podrum dobio dvojaku funkciju: tokom dana on služi kao mesto za održavanje sastanaka, dok uveče služi kao spavaća soba. Naravno, i prizemlje je multifunkcionalno. Tokom radnog vremena, ono služi kao kancelarija a kada padne noć, prizemlje se pretvara u dnevni boravak s trpezarijom i kuhinjicom, piše ArchDaily.
Pošto je zgrada u kojoj se nalazi ovaj tripleks veoma stara, arhitekte su rešile da podrum potpuno rekonstruišu tako da je on dobio potpuno novu hidroizolaciju kao i zvučnu izolaciju. U obnovljeni podrum stavljen je konferencijski sto koji se može skloniti i na njegovo mesto spustiti zidni krevet.
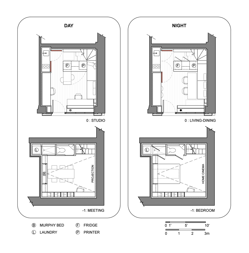
Ni sprat nije ništa manje impresivan po pitanju multifunkcionalnosti. Kao što možete videti na slici, on može imati tri funkcije zahvaljujući pomičnom pregradnom zidu koji ovu garsonjeru lako pretvara iz dnevnog u noćni ili radni režim. Primenjen je, takođe, zidni krevet na čijem mesto može stajati i sto za ručavanje. Sto za ručavanje može se pretvoriti i u radni sto, a kada se pomeri zid stan se razdvaja na radni i mirni deo.
Pomični pregradni zid pretvara sprat garsonjere iz dnevnog u noćni ili radni režim.
Foto: Mariela Apollonio














