Višespratnica koja celom fasadom prikuplja solarnu energiju
Ova nova zgrada u Melburnu prava je mala solarna elektrana.
Arhitektonski biro Peddle Thorp Architects nedavno je dostavio svoj predlog projekta za rezidencijalnu zgradu u Melburnu koji je trenutno na razmatranju. Ukoliko se usvoji, stambeni objekat Sol Invictus, koji ima šezdeset spratova, biće u potpunosti obmotan solarnim panelima, što znači da će stanarima račun za struju biti nula.
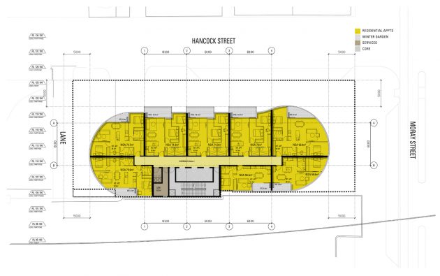
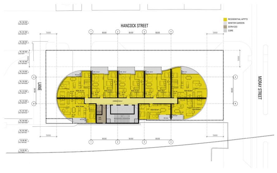
Zakrivljenost fasade omogućava bolju izloženost objekta sunčevoj svetlosti ali i bolje korišćenje energije vetra.
Fasada od 5.000 kvadratnih metara fotonaponskih panela može da obezbedi deset puta više energije nego što se dobija klasičnim pristupom koji podrazumeva postavljanje panela na krov, piše ArchDaily.
Velike staklene površine, koje su planirane i zbog atraktivnosti stanova, pogodne su i za postavljanje fotonaponskog sistema. Osim toga, zakrivljenost fasade omogućava bolju izloženost objekta sunčevoj svetlosti ali i korišćenje energije vetra.
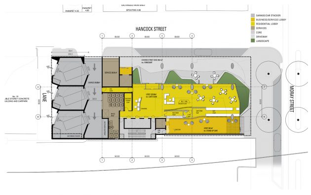
Oblikovanjem objekta rešen je i problem lokacije, kao što je neposredno prisustvo auto-puta. Prizemlje je uvućeno u odnosu na celokupan gabarit i na taj način proširena je pristupna površina zgrade.
Osnove zgrade na karakterističnim etažama
Pogledajte i ovo luksuzno odmaralište koje se napaja isključivo solarnim panelima.









