U Venizelosovoj ulici na Dorćolu u planu zgrada sa 11 stanova i lokalima
Stambeno-poslovni objekat ukupne bruto razvijene površine od 2.100 kvadrata imaće i dvadeset parking mesta u podzemnoj garaži na dva nivoa.
Nekad Baštovanska, Radnička, Kneginje Olge i Đure Đakovića, a od 2004. godine Venizelosova ulica u Beogradu, mogla bi uskoro da dobije novi stambeno-poslovni objekat, spratnosti 2Po+P+5+Ps, za čiju izgradnju je izrađen urbanistički projekat koji se od 20. jula nalazi na javnom uvidu.
Nosilac izrade predmetnog urbanističkog projekta je preduzeće za projektovanje građevinskih objekata i proizvodnju softvera PC Art d.o.o. iz Beograda, kao odgovorni urbanista i odgovorni projektant arhitekture potpisana je Milica Nešić, dia, a kao projektant Milena Ristić, mia.
Pročitajte još na Gradnja.rs:

Tri izgrađena objekta predviđena za uklanjanje
Povod za izradu ovog urbanističkog projekta je zahtev investitora, Ers invest d.o.o. iz Beograda, za detaljnu analizu i urbanističko-arhitektonsku razradu lokacije planirane za izgradnju objekta na katastarskoj parceli broj 1462 u KO Stari grad u Beogradu.
Predmetna lokacija se nalazi na teritoriji opštine Stari grad, u formiranom gradskom bloku na izgrađenom građevinskom zemljištu. Blok je oivičen javnim saobraćajnim površinama – Ulicom Venizelosovom, Đorđa Jovanovića, Skadarskom i Ulicom Cara Dušana.
Ukupna površina obuhvaćena granicom UP-a iznosi 335 m², uključujući i tri izgrađena objekta za kolektivno stanovanje koji su ovim projektom predviđeni za uklanjanje i zamenu drugim objektom.
U postojećem stanju, predmetna lokacija svojom kraćom stranom izlazi na gradsku saobraćajnicu – Ulicu Venizelosovu, navodi se u urbanističkom projektu.

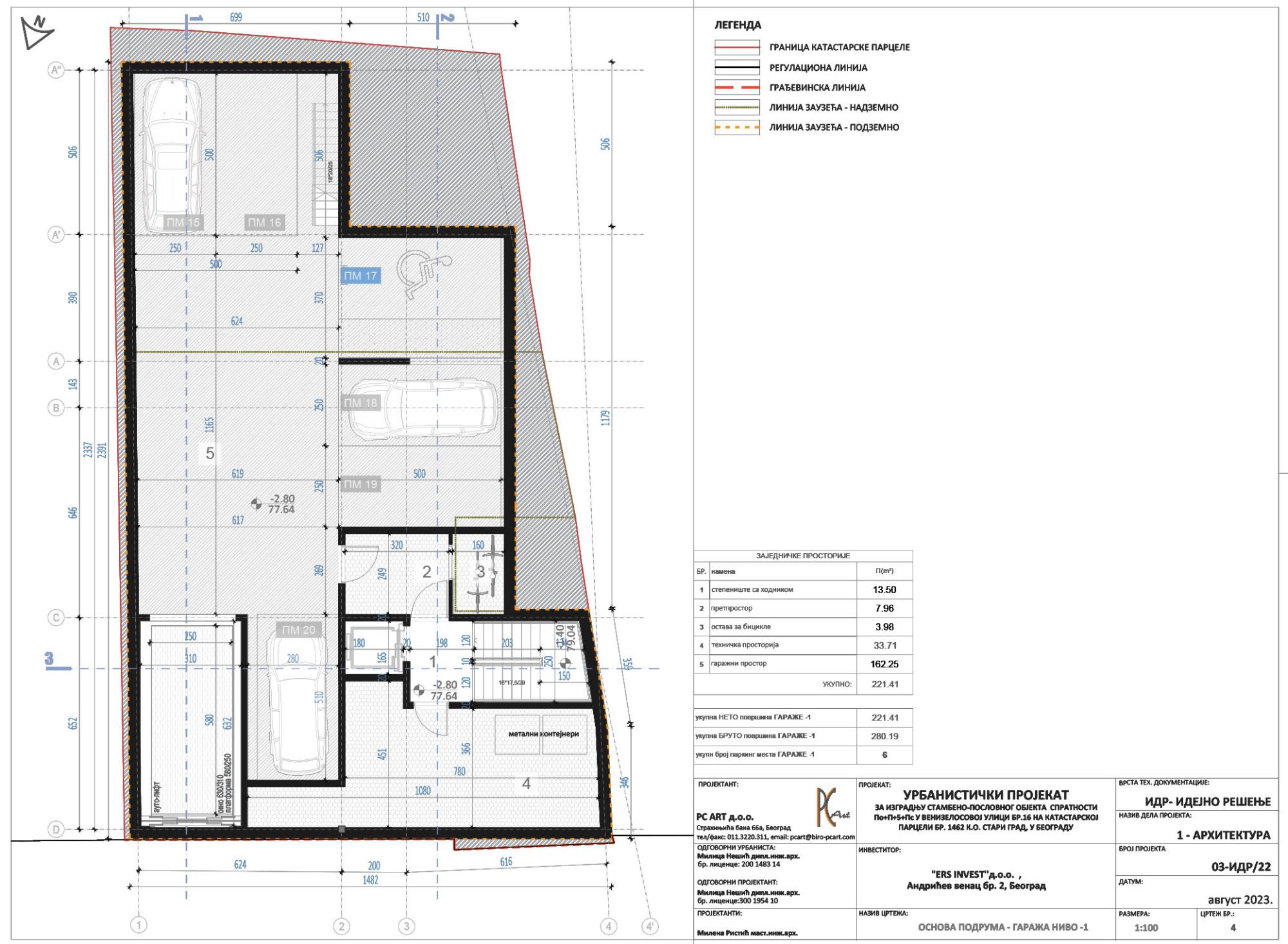
U sklopu podrumske etaže -2 smešteno je 14 parking mesta, dok je na podrumskom nivou -1 smešteno još šest parking mesta.
Ukupna bruto razvijena površina planiranog objekta, koji po osnovnoj nameni spada u zonu mešovitih gradskih centara, iznosi 2.099 metara kvadratnih.
Poštujući planom zadatu visinu objekta i koristeći karakteristike terena u padu, projektovano je prizemlje sa galerijom koje je namenjeno za poslovanje, te pet etaža iznad prizemlja, kao i povučeni sprat, sa isključivo stambenom funkcijom.
Parkiranje vozila predviđeno je u okviru podzemne garaže koja se prostire na dva podrumska nivoa koje povezuju vertikalne komunikacije u vidu auto-lifta (za kolski saobraćaj)i jezgra sa putničkim liftom i stepeništem.
U sklopu podrumske etaže -2 smešteno je 14 parking mesta, dok je na podrumskom nivou -1 smešteno još šest parking mesta, od čega je jedno PM odvojeno za osobe sa invaliditetom.
U podzemnim etažama su predviđene i pomoćne i tehničke prostorije, a u okviru ostave planiran je i parking za bicikle.

Svaki lokal ima galerijski prostor čiste visine 240 cm koji pokriva 70% ukupne neto površine prizemlja lokala i sa njima je povezan stepeništem.
U pristupnoj etaži nalaze se dva lokala – veći lokal (lokal 1) dvostrano je orijentisan, dok je manji (lokal 2) orijentisan ka Venizelosovoj ulici.
Svaki lokal ima galerijski prostor čiste visine 240 cm koji pokriva 70% ukupne neto površine prizemlja lokala i sa njima je povezan stepeništem.
Iz Venizelosove ulice predviđeni su pristupi lokalima, ulaz u stambeni deo objekta, kao i ulaz u podzemnu garažu.

Na šest etaža projektovano 11 stanova
Tipske etaže namenjene su funkciji stanovanja. Svaka tipska etaža ima po dve stambene jedinice različitih površina – ukupno 8, od kojih je jedna orijentisana prema zadnjem dvorištu, dok je druga orijentisana ka Venizelosovoj ulici. Svaka stambena jedinica podeljena je na dnevnu i noćnu zonu koja sadrži dve spavaće sobe i jedno kupatilo.
Projektovana takođe sa dve stambene jedinice, peta etaža se od tipske etaže razlikuje po tome što sa strane zadnjeg dvorišta dolazi do povlačenja, pa je zbog toga površina stana koji je orijentisan ka jugu korigovana u odnosu na povlačenje fasade. Organizacija stana ostaje slična, osim što dobija veliku prohodnu terasu.
Povučena etaža sadrži jednu stambenu jedinicu, funkcionalno organizovanu sa podeljenom noćnom i dnevnom zonom. U noćnom bloku se nalaze tri spavaće sobe, od kojih glavna poseduje sopstveno kupatilo, dok druge dve sobe imaju jedno kupatilo koje dele. Iz spavaćih soba omogućen je pristup velikoj prohodnoj terasi.

Primedbe i sugestije do 6. avgusta
Zainteresovani mogu tokom javne prezentacije da izvrše uvid u urbanistički projekat, kao i da svoje primedbe i sugestije na planirana rešenja u pisanoj formi dostave na pisarnicu Sekretarijata za urbanizam i građevinske poslove, Kraljice Marije broj 1, najkasnije do 6. avgusta 2024. godine.
Grafički prilozi














Toliko loših zgrada da je to postalo za brigu. Umesto nagrade za Najlepšu fasadu treba uvesti nagradu za najružniji fasadu. Izbor prepustiti javnosti.
Šta je s kućom koja se tenutno nlazi na tom mjestu ako se nalazi još uvijek. Ima li taj postojeći objekat ikakav arhitektonski, istorijski, kulturni značaj???
Zanimljivo je kako je benzinska pumpa, kao dominantan objekat direktno ispred predmetne zgrade, na vizuelizacijama potpuno nevidljiva.
Sa aspekta urbanizma je sporno šta je uzeto za širinu ulice koja diktira visinu objekta.