Na uglu Krivolačke i Ljube Nedića na Voždovcu planirana sedmospratnica
Objekat od preko 3.000 kvadrata sastoji se od 25 stambenih jedinica, dva lokala, zajedničkih prostora i dva podzemna nivoa garaže sa ukupno 39 parking mesta.
Grad Beograd stavio je na javni uvid urbanistički projekat za izgradnju stambeno-poslovnog objekta spratnosti 2Po+P+6+Ps, koji investitor Jeremy Construction iz Beograda planira na uglu ulica Krivolačke i Ljube Nedića na Voždovcu.
Nosilac izrade predmetnog urbanističkog projekta i idejnog rešenja arhitekture je beogradski biro Revolution Architects, kao odgovorni urbanista potpisana je Danijela Mirković, dia, a kao odgovorni projektant Jugoslav Jugović, mia.
Pročitajte još na Gradnja.rs:

Četiri postojeća objekta planirana za uklanjanje
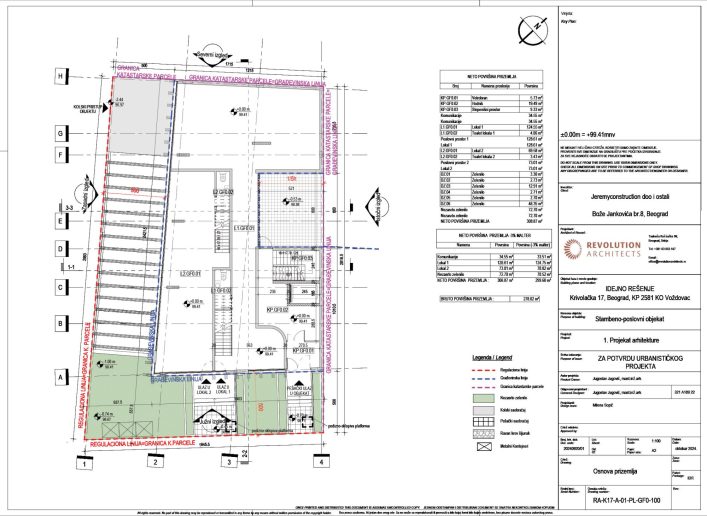
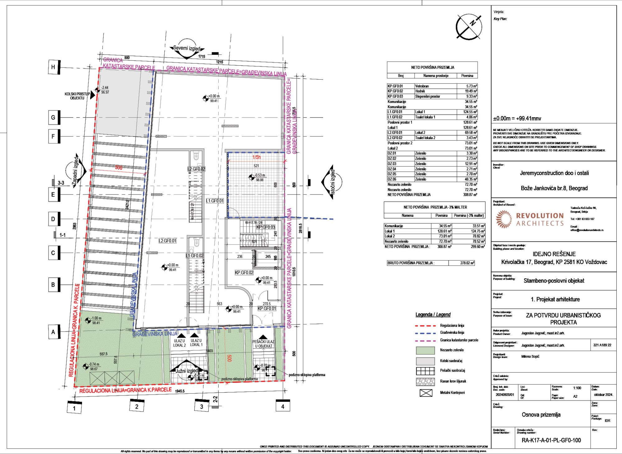
Urbanističkim projektom obuhvaćena je KP 2581 KO Voždovac, u ulici Krivolačkoj na broju 17.
Predmetna parcela se nalazi na uglu ulica Krivolačke i Ljube Nedića i zauzima površinu od 528 m².
Na parceli se nalaze četiri postojeća stambena objekta ukupne površine 263 m² koji su planirani za uklanjanje.

Kolski pristup parceli je ostvaren iz ulice Krivolačka, preko grejane rampe, dok je pešački pristup ostvaren sa ulice Ljube Nedića.
Na predmetnoj parceli planira se izgradnja stambeno-poslovnog objekta, dvostrano uzidanog, spratnosti Po(-2)+Po(-1)+P+6+Ps.
Kolski pristup parceli je ostvaren iz ulice Krivolačka, preko grejane rampe, dok je pešački pristup ostvaren sa ulice Ljube Nedića.
Glavni ulaz u objekat postavljen je tako da je ostvaren pristup na pristupnu saobraćajnicu – ulicu Ljube Nedića. Pešački pristup je rešen istaknutim ulaznim stepeništem.

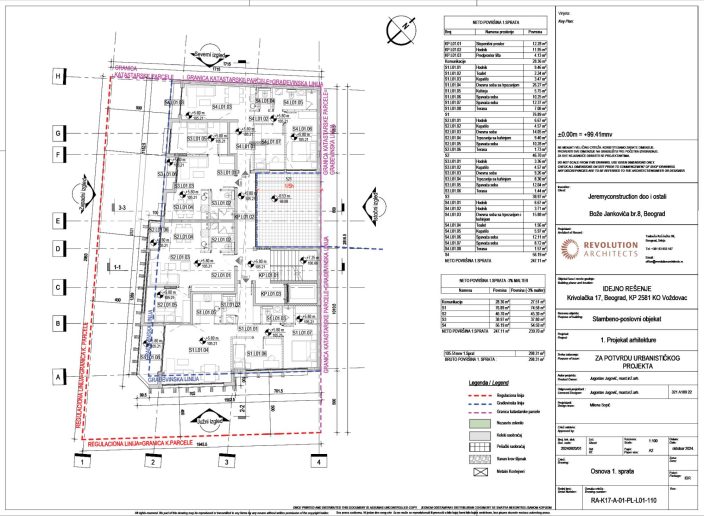
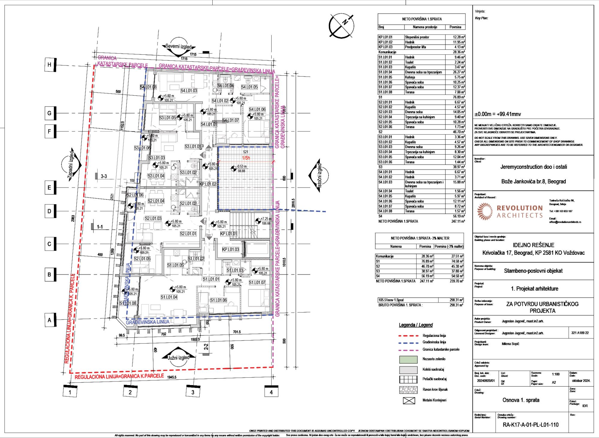
Projektovano 25 stanova i dva lokala
Planirani stambeno-poslovni objekat se sastoji od 25 stambenih jedinica, dva lokala, zajedničkih prostora i dva podzemna nivoa garaže.
Garažni prostor ima kapacitet od ukupno 39 parking mesta, od čega su 2 PM na nivou Po(-1) namenjena osobama sa posebnim potrebama.
Lokali su smešteni na prizemlju i galeriji koja je 70% od NGP prizemlja, a stanovi su projektovani od prvog sprata do povučene etaže.
Ukupna projektovana bruto površina objekta je 3.190 m², od čega na nadzemno otpada 2.346 m², a na podzemno preostalih 844 m².

Primedbe i sugestije do 25. decembra
Kao i uvek, podsećamo da zainteresovani mogu tokom javne prezentacije da izvrše uvid u urbanistički projekat, kao i da svoje primedbe i sugestije na planirana rešenja u pisanoj formi dostave na pisarnicu Sekretarijata za urbanizam i građevinske poslove, ul. Kraljice Marije br. 1, najkasnije do 25. decembra 2024. godine.










Dajete neki kriticki osvrt kad vec objavljujete ovakve projekte. Fasadu necu ni komentarisati. Stanovi ni jedan standard ispostovali nisu. Funkcija katastrofa. Ulazi u kupatila iz dnevnih soba, dnevna u trosobnom stanu sirine od max 280cm, kuhinje manje od onih blok kuhinjica, mnogo, mnogo propusta. Dodajmo na to cinjenicu da je autor projekta jedan od panelista na skoro odrzanoj konferenciji Stanogradnja.