Tuneli, lokve i brda: Pasivni vrtić u Sloveniji koji menja način na koji deca uče i igraju se
Sloboda učenja i igranja u ovoj predškolskoj ustanovi postignuta je dobro promišljenom arhitekturom, koja doprinosi i prostornom iskustvu dece.
Dečji vrtić „Pčelica“ (slov. Čebelica) u Kočevju izgrađen je na zemljištu nekadašnjeg industrijskog postrojenja, kao deo projekta regeneracije ovog slovenačkog grada.
Novi prostor za lokalne predškolce naglašava slobodu izbora dece stvaranjem različitih kutaka, prava na privatnost kroz izolovanije prostore, kao i mogućnost učenja kroz posmatranje.
Kroz pažljivu upotrebu građevinskog materijala sa taktilnim površinama doprinelo se i razvoju prostorne organizacije i osetljivosti za 350 mališana i onih koji o njima brinu.
Pročitajte još na Gradnja.rs:

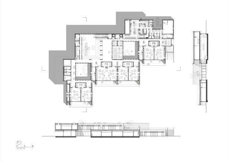
Sadržaji organizovani oko „lokve“ i „brda“
Ovo predškolsko odeljenje zatvara se prema ostatku urbanog tkiva na severu parcele, dok se prema jugu otvara igralištem, te sa ove strane i unutrašnje igraonice ostvaruju dijalog sa svojim kontekstom.
Objekat svoje sadržaje organizuje oko dva atrijuma, koje su arhitekte iz ljubljanske firme Svet Vmes, koji projekat i potpisuju, nazvali „lokva“ i „brdo“, a koji omogućavaju prodor sunčeve svetlosti u sve delove unutrašnjeg prostora.
Važno je naglasiti da je projekat iza kojeg stoje arhitekte Jure Hrovat, Ana Kreč i Katja Paternoster pobedničko rešenje na otvorenem arhitektonskom konkursu.

Mlađa deca, koja su na prizemlju, u direktnoj su vezi sa spoljašnjim igralištem, dok sobe za stariju decu na spratu imaju direktan pristup krovnom igralištu.
Ovi prostori doprinose i prostornom iskustvu, s obzirom na to da su mlađa deca koja su na prizemlju u direktnoj vezi sa spoljašnjim igralištem, dok sobe za stariju decu na spratu imaju direktan pristup krovnom igralištu.
Na ovaj način površina zgrade je minimizirana, a stvoreno je dovoljno spoljnih igrališta i direktan pristup svim igraonicama, objasnile su arhitekte.
Nepravilno oblikovani otvori fasade omekšavaju objekat i postavljaju decu kao žive aktere u arhitekturi, budući da svi mališani žele da se popnu u udubljenje prozora i tu se igraju.
Tunel za brže penjanje i silaženje
Ova zgrada živi kroz svoje korisnike i predstavlja pozornicu za svakodnevni život dece, njihovih roditelja, vaspitača, kuvara i čistača. U unutrašnjosti je drvena struktura izložena što je više bilo moguće, kako bi prostor bio što topliji.
Unutrašnji debeli zidovi omogućili su skladištenje kreveta, igračaka i ostalih potrepština u svoju unutrašnjost, a tu su i ovalni fasadni otvori koji mališanima omogućavaju da vide svoje drugare kada dolaze ujutru ili bake, deke i roditelje koji dolaze po njih po podne.
Uz glavno stepenište organizovan je i tunel koji je namenjen samo za dečju upotrebu, kako bi uspeli da preteknu odrasle prilikom penjanja ili silaska.

Struktura je u najvećoj meri izgrađena od CLT-a, a sve je izolovano drvenim vlaknima i zaštićeno drvenom ventilisanom fasadom.
Od samog početka realizacije projekta, opština je težila vrtiću koji bi otelotvorio ideale održivog razvoja, te je zgrada gotovo u potpunosti izvedena od drvenih elemenata i drvenog građevinskog materijala.
Struktura je u najvećoj meri izgrađena od unakrsno lameliranog drveta, a sve je izolovano drvenim vlaknima i zaštićeno drvenom ventilisanom fasadom.
Zgrada je dobila i standard „Passivhaus“, a između ostalog koristi se i daljinskim grejanjem koje pokreće sagorevanje biomase od drveta.
Grafički prilozi
Foto-galerija
Faktografija
Vrtić u Kočevju – jedinica „Pčelica“
Kočevje, Slovenija
Svet vmes
5.025 m²
2023.
Ana Skobe, Žiga Lovšin, Matevž Paternoster















Gde su šarene boje? Iako sam fan pasivne gradnje, ovo mi tako deluje previše nordijski, hladno i svedeno na minimum…