Novi vrtić u Zagrebu; Foto: Bosnić+Dorotić
Regionalni projekti

Eksplozija boja u energetski efikasnom vrtiću u Zagrebu

Zahvaljujući atrijumu, natkrivenoj pergoli ali i celokupnoj arhitekturi, ovaj vrtić omogućava deci direktan kontakt s prirodom i boravak u tehnološki naprednom objektu.

Dečiji vrtić Vrbani II je pobednički rad s javnog konkursa iz 2005. godine, sagrađen 15 godina kasnije na parceli unutar zagrebačkog stambenog naselja Vrbani, a potpisuju ga mladi arhitekti Marin Binički, Marko Salopek i Siniša Blaženka.

Vrtić je s tri strane okružen visokim višestambenim zgradama, dok se na severoistoku parcele nalazi potok Vrapčak. Usred gusto i visinski naglašenog okruženja, zgrada vrtića postavljena je na severozapadnu ivicu parcele pravougaonog oblika, oslobađajući tako čitav južni i istočni deo terena za otvorene sadržaje za boravak, igru decu i zelenilo.

Foto: Bosnić+Dorotić

Sve jedinice povezane su hodnikom s nadsvetlom koji omogućava idealno osvetljenje prostora, ali i prostor za igru.

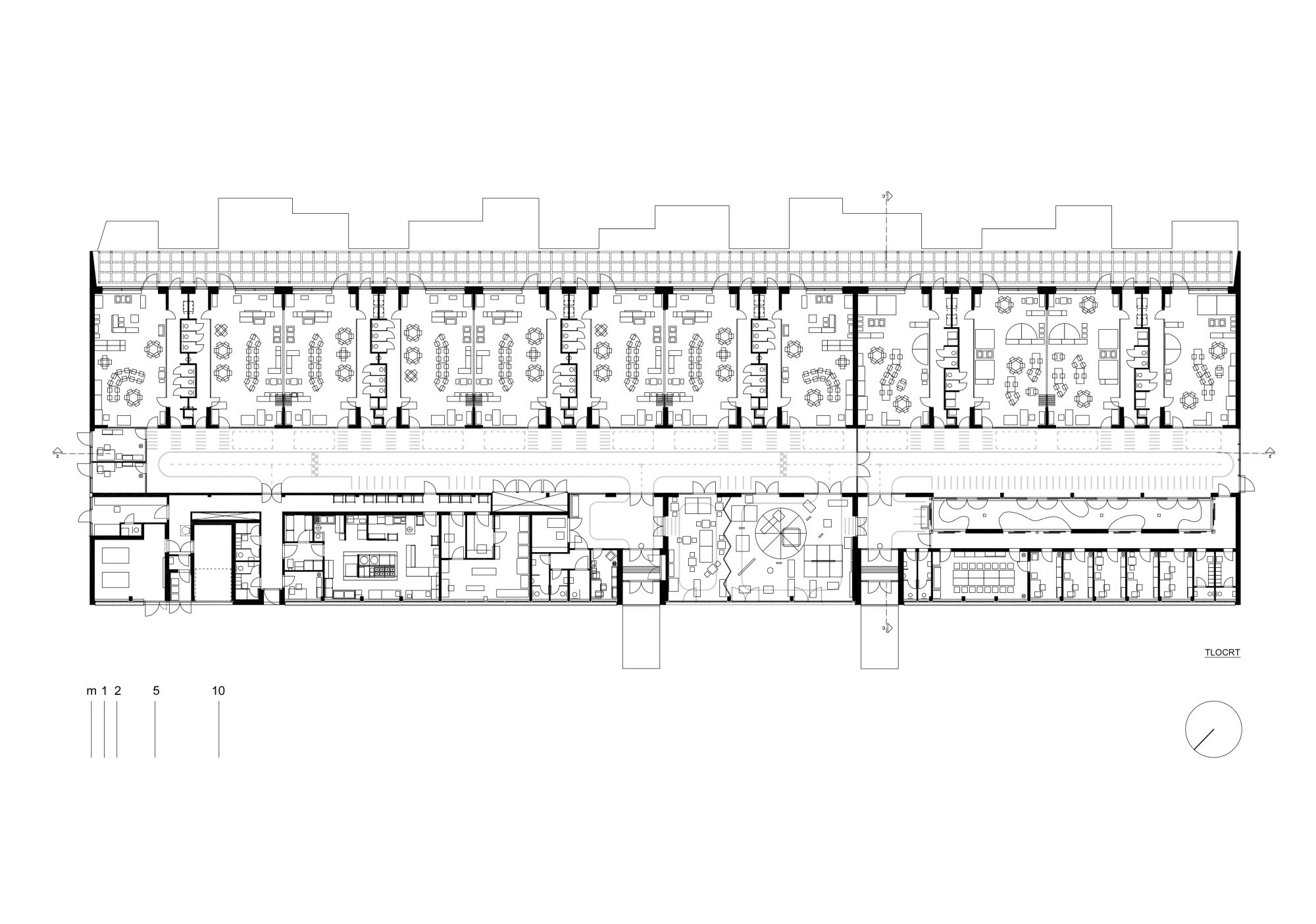
Dispozicija vrtića projektovana je kao prizemni objekt u dva trakta, ostvarujući na taj način najoptimalniju funkcionalnu organizaciju, omogućujući deci direktan kontakt s prirodom i spoljašnjih igralištima te istovremeno izbegavajući arhitektonske barijere prevelikih visinski razlika i otežanog pristupa osobama s teškoćama u kretanju.

Uzduž čitave jugoistočne strane objekta proteže se 12 jedinica za jasličku i vrtićku decu. Prostorije su dimenzionalno istih modula ali za potrebe formiranja većih skupina postoji mogućnost spajanja susednih jedinica koje su podeljene pokretnim panelima. Enterijerska povezanost svih jedinica ostvarena je longitudinalnim hodnikom – centralnom zonom vrtića koja, osim same funkcije komunikacije, svojim presekom i velikim uzdužnim prozorskim nadsvetlom omogućava idealno osvetljenje prostora, a svojom prostranošću osigurava prostor za igru, boravak i edukaciju dece u zatvorenom, posebno kada vremenske prilike ne dozvoljavaju izlazak na otvorene prostore.

Ovaj prostrani multifunkcionalni hodnik tangira i atrijum, koji služi kao natkriven i otvoren prostor za boravak dece najmlađeg uzrasta, osiguravajući blizinu osoblja i lakšu kontrolu nad jasličkom decom.

Foto: Bosnić+Dorotić

Natkrivena pergola

Eksterijerski kontrapunkt unutrašnjem hodniku je natkrivena pergola postavljena uz fasadu uzduž svih jedinica vrtića, stvarajući zaštićeni natkriveni prostor, kao filter zonu između potpuno zatvorenih i potpuno otvorenih prostora. U centralnom delu vrtića, uz spomenuti prostrani hodnik, smešten je i prostor više namena koji se izolovanjem ili otvaranjem, u zavisnosti od potreba, može koristiti za edukacione svrhe i zabavu (predstave, aktivnosti, vežbanja, druženja s roditeljima…). Uz ulični severozapadni deo zgrade vrtića nalaze se ulazi, administrativne prostorije, uprava vrtića i kuhinja.

Ekspolozija boja

Snažno zelena boja dominira eksterijerom zgrade vrtića – trima pročeljima i limenim krovom, naglašavajući namenu edukacione ustanove koja se žarkim bojama razlikuje od isključivo stambenog komšiluka. Koloristički akcenti se u objektu nastavljaju žarko žutim stubovima i gredama spoljašnje pergole kao i žutom signalistikom u hodniku, zeleno-žuto-crvenim mobilijarom u enterijeru te narandžastim pločicama na zidovima sanitarija vrtićkih jedinica. Kao vizuelni kontrast spoljašnjosti zelene zgrade unutrašnji atrijum je u celosti izveden u komplementarnoj crvenoj boji.

Foto: Bosnić+Dorotić
Foto: Bosnić+Dorotić

Ovako postavljeni energetski koncept vrtića ispunjava današnje energetske zahteve za zgrade gotovo nulte energije.

Nosiva konstrukcija zgrade vrtića su armiranobetonski zidovi i pune ploče, dok je žuta nadstrešnica izvedena kao čelični okvir sa staklenim pokrovom. Vrtić je projektovan kao niskoenergetska zgrada, zahvaljujući povećanim debljinama toplotne izolacije, sistemu ventilacije s povratom toplote kao i južnoj orijentaciji, koja omogućava iskorišćavanje pasivnih solarnih dobitaka.

Posebna pažnja pri projektovanju takođe je posvećena odabiru pomičnih elemenata; horizontalnih brisoleja, žaluzina i blackout zastora, za zaštitu od pregrejavanja leti. Termotehnički sistemi zgrade vrtića bazirani su na obnovljivim izvorima energije – toplotnim pumpama i solarnim panelima uz pomoćne gasne kondenzacione kotlove. Ovako postavljeni energetski koncept vrtića ispunjava današnje energetske zahteve za zgrade gotovo nulte energije.

Foto: Pavle Čondrić

Grafički prilozi

Osnova
Osnova
Presek 1
Presek 1
Presek 2
Presek 2

Fotogalerija

Novi vrtić u Zagrebu; Foto: Bosnić+Dorotić
Novi vrtić u Zagrebu; Foto: Bosnić+Dorotić

Faktografija

  • Naziv dela: Dečiji vrtić Vrbani II
  • Autori: Marin Binički, Marko Salopek i Siniša Blaženka
  • Projektni tim: Marin Binički, Marko Salopek, Siniša Blaženka, Vlasta Binički K.A.T. doo
  • Investitor: Grad Zagreb
  • Izvođac: AB gradnja
  • Saradnici: Darko Žerjav ELAG – elektroinstalacije, Marko Bajič Alarm automatika – tehnička zaštita, Nikola Zadravec Eco Plan – Strojarske instalacije, Martina Gajdek FLAMIT – zaštita od požara, zaštita na radu, Ivanka Mlinarić krajobrazno uređenje, Robert Gojani ROBUR – promet, Miroslav Sokolaj GEO 88 – geodetski projekt, Ivan Matković Institut Građevinarstva Hrvatske – geotehnički elaborat
  • Lokacija: Zagreb
  • Godina početka projektovanja: 2005.
  • Godina početka gradnje: 2019.
  • Godina dovršetka gradnje: 2020.
  • Površina obuhvata: 6133,6 m2 m2
  • Ukupna površina: 2176,59 m2 m2
  • Ukupna vrednost investicije bez PDV-a: 3,7 miliona evra
  • Fotografije: Bosnić + Dorotić, Pavle Čondrić
Postani deo Gradnja zajednice

Najnovije vesti s našeg portala svakog petka u vašem sandučetu.

Dizajn enterijera

Srodni tekstovi

5 komentara

  1. arhitekta

    paleta boja
    kao da je iz AutoCAD-a

  2. Anton

    Jako loša arhitektura u gotovo svakom smislu.

    1. Sonja Brstina

      Šta vam se konkretno ne dopada?

  3. miki

    fantastično u svakom smislu! projekat fenomenalan! pogledajte poziciju obdaništa i samo okruženje i biće vam jasnije koliko je zagreb lep čoveče? naš grad je unakažen!

    1. arhitekta

      problem Srbije je u tome
      što u njoj žive Srbi

Ostavite odgovor

Obavezna polja *