Novi identitet na starom gabaritu: Rekonstrukcija upravne zgrade Exim Commerce na Paliću
Dogradnja sprata i nova fasadna kompozicija transformisali su postojeći objekat u savremenu poslovnu zgradu jasnog identiteta.
Arhitektonski biroi Praksa 59 i Dello.Studio potpisuju projekat rekonstrukcije i nadogradnje postojećeg objekta upravne zgrade kompanije Exim Commerce na Paliću, kojim je ostvarena potreba za proširenjem i formiranjem savremenog radnog prostora od 271 kvadrata.
Zahtev klijenta je bio da se projektom predvidi zadržavanje postojećeg gabarita i konstruktivnog sistema objekta, kao i da se dogradnjom spratne etaže formira novi objekat. S druge strane, ideja autora projekta je bila da arhitektura novog objekta ponudi klijentu i novi identitet.
Pročitajte još na Gradnja.rs:

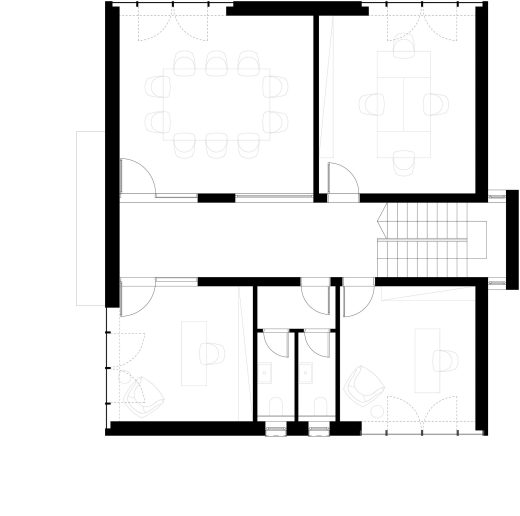
Zadržavanje konstruktivnog rastera
Kako objašnjavaju arhitekte, dogradnjom spratne etaže formirani su dodatni kancelarijski prostori, sala za sastanke i prostori za zaposlene. „Zadržavanje konstruktivnog rastera je uslovilo i zadržavanje unutrašnje organizacije prostora“, kažu autori i nastavljaju:
„Prizemlje je sada organizovano kao radni prostor sa direktnom komunikacijom ka dvorištu i proizvodnim pogonima, dok je sprat rezervisan za administrativni deo i sastanke. Vertikalna komunikacija rešena je u postojećem korpusu hodnika bez narušavanja horizontalnih gabarita objekta“.

Konceptom se uvodi princip naizmeničnih polja – masivnih fasadnih ravni od profilisanih limova i velikih površina strukturalne staklene fasade.
Autori projekta ističu da je novi identitet objekta oblikovan savremenim pristupom kompoziciji, materijalizaciji i ritmu fasade, čime taj objekat postaje prepoznatljiv vizuelni znak klijenta.
Navedeno ograničenje, u vidu zadržavanja postojećeg gabarita i konstruktivnog sistema, usmerilo je pristup i proces projektovanja, ali je otvorilo prostor za jasno definisanu arhitektonsku strategiju, formiranjem kompaktnog, savremenog i vizuelno čistog volumena.
“Konceptom se uvodi princip naizmeničnih polja – masivnih fasadnih ravni od profilisanih limova i velikih površina strukturalne staklene fasade. Navedeni ritam kreira dinamičnu fasadnu kompoziciju koja, u odnosu na poziciju svetla i senke u toku dana, menja vizuelni karakter i pojavnost“.
Ulazna nadstrešnica kao vizuelni marker
Dodatni akcenat objekta predstavlja ulazna nadstrešnica, oblikovno izdvojena i materijalizovana u kompakt panelima u tonu kortena, objašnjavaju dalje arhitekte i dodaju:
„Topli metalni ton uvodi kontrast u odnosu na fasadne limove i definiše ulaz kao prostor dijaloga između posetilaca i zgrade. Zahvaljujući formi i poziciji, nadstrešnica funkcioniše kao jasno definisan orijentir, vizuelni marker i prepoznatljiv detalj objekta“.

Fasada objekta izvedena je u sistemu ventilisanih fasada sa talasasto profilisanim limovima.
Autori navode da su postojeće okruženje i delatnost klijenta bili osnovni parametar upotrebe materijala. Tako je fasada izvedena u sistemu ventilisanih fasada sa talasasto profilisanim limovima.
„Time se novi objekat vizuelno nastavlja na postojeće objekte i reflektuje karakter kompanije, a povećava trajnost, otpornost i energetsku efikasnost objekta. Kompakt paneli u tonu kortena takođe naglašavaju industrijski karakter klijenta“, kažu arhitekte.

Objekat istovremeno unapređuje funkcionalnost u radu klijenta i doprinosi formiranju novog arhitektonskog i poslovnog vizuelnog identita.
Ostvarivanjem zahteva klijenta i jasno definisanim arhitektonskim izrazom koji reflektuje delatnost kompanije i postavlja nove standarde, izveden je objekat koji istovremeno unapređuje funkcionalnost u radu klijenta i doprinosi formiranju novog arhitektonskog i poslovnog vizuelnog identita.
Projektovan 2022. a završen 2025. godine, novi objekat kompanije Exim Commerce mogao bi da predstavlja primer kako proces projektovanja u manjoj razmeri može transformisati poslovni prostor u savremenu upravnu zgradu.
Grafički prilozi
Foto-galerija
Faktografija
Rekonstrukcija i dogradnja upravne zgrade Exim
Palić, Subotica
Exim Commerce d.o.o. Palić
Praksa59 i Dello.Studio
Aleksandar Lukić, Staša Radmilović Diklić
271 m²
P+1
2022.
2025.
Stefan Đorđević









