Od otpisa do inspiracije: Napuštena trafostanica pretvorena u kreativni prostor
Dimenzije objekta od 3×9,5 metara nisu bile dovoljne za smeštanje svih želja investitora. Međutim, tavan od 8 metara pružao je potencijal.
Studio Wok iz Milana potpisuje projekat transformacije napuštene trafostanice na severu Italije u umetničku rezidenciju. Ona sadrži i prostorije za svakodnevni život i spavanje smeštene u neobičnom krovnom prostoru objekta.
Trafostanica, koja je originalno osmišljena za smeštaj eletro-opreme, probudila je arhitektama maštu tako da je dobijen fleksibilni prostor koji može biti korišćen kako za organizovanje komercijalnih događaja, tako i kao privremena rezidencija za umetnike.
Pročitajte još na Gradnja.rs:

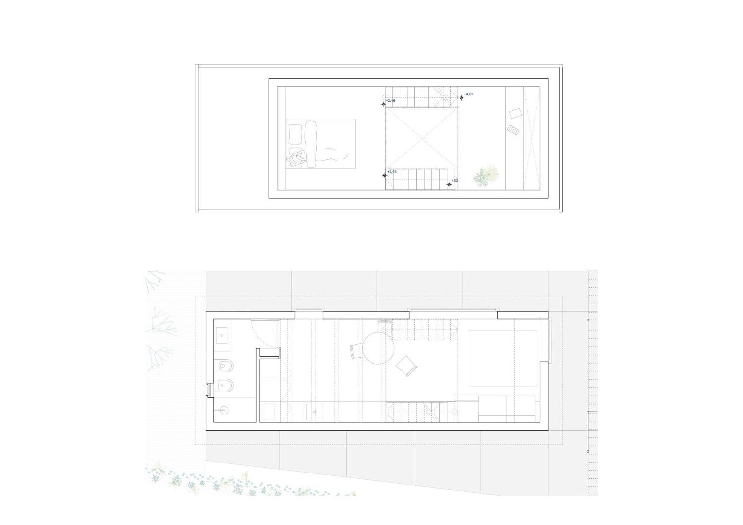
Proširenje u postojećem krovnom prostoru
Projektom su zadržani originalni oblik i struktura, ali su dimenzije objekta od 3 sa 9,5 metara ipak bile nedovoljne za organizovanje svog sadržaja koje je želeo QuadroDesign – investitor projekta.
Studio Wok je predložio proširenje u visinu u postojećem tavanu, koji doseže visinu od 8 metara i verovatno je bio kreiran sa namerom disipacije toplote kroz prozor na vrhu, a koju su stvarala elektro-oprema.
„Unutrašnji prostor, koji je uzan i razvijen u visinu, nije uobičajen za dom i zapravo je bio dizajniran za smeštaj drugih funkcija. Bilo je veoma stimulativno sprovesti proces ‘domestifikacije’ i prilagoditi ga za život“, rekao je arhitekta Nicola Brenna.

Objekat je prvo očišćen, a unutrašnje pregrade uklonjene kako bi se stvorio fleksibilan prostor otvorenog plana na prizemlju.
Objekat, koji je poslednji put korišćen kao skladište i šupa za alat, prvo je potpuno očišćen, a unutrašnje pregrade su uklonjene kako bi se stvorio fleksibilan prostor otvorenog plana na prizemlju.
Otvoreni prostor na prizemlju je na ovaj način proširen i organizovana je bolja veza sa okruženjem zahvaljujući novim kliznim metalnim vratima.
Dva mezaninska nivoa sadrže intimnije prostore, uključujući prostor za spavanje koji se nalazi na novoj drvenoj platformi iznad kuhinje.
Ugradni nameštaj duž zadnjeg dela sobe podržava sofu i dva drvena stepenika koji omogućavaju dalje kretanje metalnim stepenicama ka gornjim nivoima.
Zid sa skladišnim prostorom na suprotnoj strani skriva vrata koja vode ka tuš kabini i toaletu, čime je omogućen i privremeni smeštaj za umetnike u objektu.
Dva mezaninska nivoa sadrže intimnije prostore, uključujući prostor za spavanje koji se nalazi na novoj drvenoj platformi iznad kuhinje.
Našlo se mesta i za bazen
Drugi set stepenica vodi do malog prostora za sedenje, smeštenog u postojeći betonski prolaz blizu vrha krova. Ovde je Studio Wok postavio jednostavnu drvenu klupu na koju pada prirodno svetlo sa obližnjeg prozora.
Spoljašnji prostor je takođe pažljivo kreiran, te je ispod pergole smeštena kuhinja i trpezarija na otvorenom. Uz objekat je postavljen i mali bazen u antracit pločicama koji je delimično ukopan u zemlju. Time je stvoren dodatni prostor za sedenje
ReUse je definitivno u modi!
Ovaj projekat još jednom potvrđuje koliko je važno sagledati šta sve od napuštenih objekata postoji u našem okruženju. Mnogo je bolje iskoristiti postojeći fond zgrada, nego rušiti i praviti nove strukture. ReUse je definitivno u modi!
Grafički prilozi














