Kako je na placu od 50 kvadrata izgrađena kuća s koeficijentom zauzetosti 0,5
Kuća osnove 25 kvadrata dobila je četiri etaže, a tako i sve potrebne prostorije za ugodan život… na japanski način.
Šta kada je prostor za gradnju limitiran? Ide se u visinu! Doduše, tako nešto se uglavnom očekuje za poslovne objekte ali kada se gradi u Japanu, onda je slična situacija i za porodične objekte. Naime, projekat ove nesvakidašnje kuće u stambenoj četvrti na periferiji Tokija, potpisuju vlasnici kuće, odnosno bračni par arhitekata (Aoyagi design), koji su odlučili da na ovoj maloj parceli od 50 metara kvadratnih stvore dom za sebe i svoju decu. Pošto je koeficijent zauzetosti bio maksimalno 0,5, osnova kuće mogla je biti maksimalno 25 kvadrata.
S obzirom na to da su prostorno bili znatno organičeni, oni su formirali objekat od 93 metara kvadratnih kroz dva podzemna i dva nadzemna sprata. Dodatna nepogodna situacija na lokaciji je i to što je pogled iz objekta blokiran sa tri strane. Ali gde su prepreke su i inovativna rešenja.

Izdignutost od tla daje utisak da objekat lebdi ali i pritom omogućava otvoren pogled ka panorami.
Iz tog razloga objekat je izdignut od nivoa ulice za dva metra, te preko istočne strane kuće unutrašnjost gleda na svoje okruženje. Izdignutost od tla daje utisak da objekat lebdi ali i pritom omogućava otvoren pogled ka školskom dvorištu koje se nalazi sa druge strane puta.


Preplitanje kretanja
Ulaz u objekat nalazi se na središnjem nivou i ovako organizovana ulazna zona nema jasan tok, što je i bila primarna ideja arhitekti. Naime, oni su želeli da tok kretanja kroz kuću nema jasno definisan početak, već se raspored unutrašnjih funkcija i njihov odnos sa okruženjem prepliću tokom kretanja.

Mogućnost gradnje na maloj parceli dovela je do formiranja objekta veće spratnosti kako bi se obezbedili svi potrebni prostori.



Ne mora sve biti savršeno
Ovakav sistem formiranja prostora doveo je do nestandardnih detalja, poput „neusaglašenosti“ između otvora i nivoa poda, kao i do neravnoteže u površinama soba.

Ova kuća u Tokiju od 93 metara kvadratnih ima dva podzemna i dva nadzemna sprata.

Belina prostora
Baš kao i na eksterijeru kuće i u enterijeru dominira bela boja koja daje osećaj prozračnosti i čini da svaki nivo prilično male površine deluje dovoljno prostrano. Ovakav dizajn enterijera podilazi arhitekturi stavljajući je u prvi plan. A i Japanci vole svedene enterijere…

Dodatna nepogodna situacija na lokaciji bila je i to što je pogled iz objekta blokiran sa tri strane.

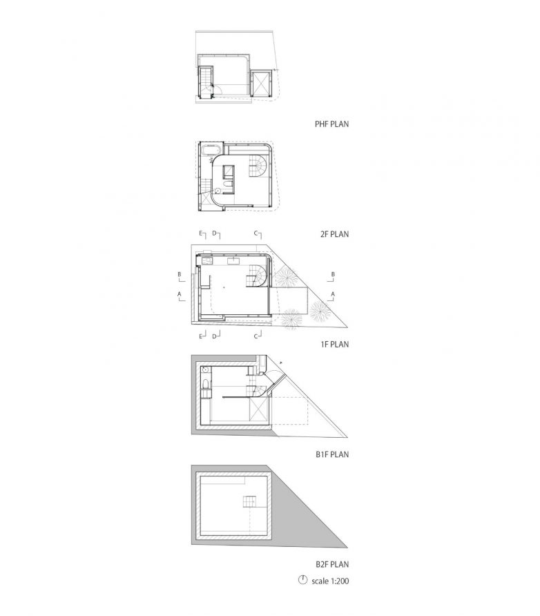
Grafički prilozi
Osnove svih nivoa
Preseci kroz kuću
Kad ste već ovde…


