Kompaktna drvena kuća bez ijednog otvora na uličnoj fasadi
Puna kuća drveta, niotkuda prozora! Šta je to? Kuća u Japanu. A gde drugde…
Tomoaki Uno Architects izveli su projekat kuće zvane Yomogidai, u stambenoj četvrti u blizini japanskog grada Nagoja. Inspiracija za projekat ove neobične drvene kuće pronađena je u karakteristikama japanskih svetilišta, kako u sistemu konstrukcije tako i u formi krova, piše Designboom.
Zanimljiva je činjenica da je ista vrsta drveta upotrebljena je za konstrukciju, fasadu, kao i za oblikovanje enterijera.

Uz zid koji je orijentisan ka ulici i ne sadrži prozore, organizovana je spavaća soba, dok je ulaz postavljen na sredini.
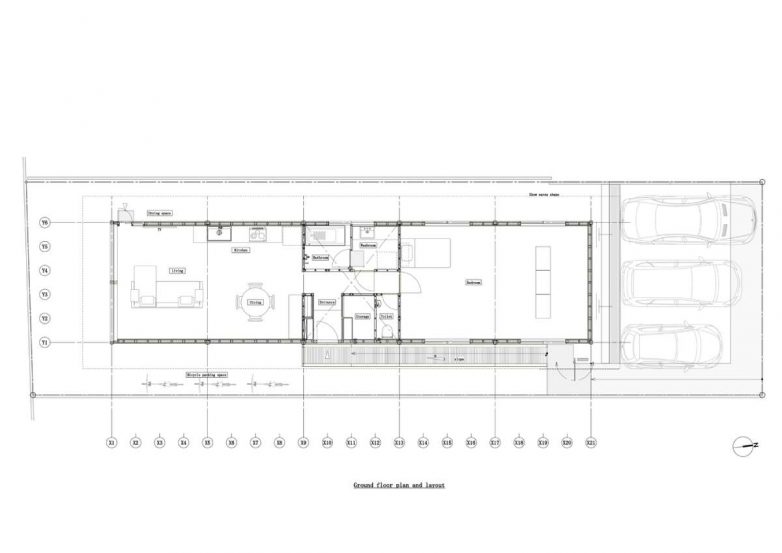
Objekat je izgrađen na parceli širine 8 metara i dužine 28 metara, koja je pod blagim nagibom, te je u odnosu na morfologiju lokacije, kuća od 82 kvadrata, uske i izdužene forme.
Konstrukciju karakteriše „slepa“ ulična fasada koja ne sadrži otvore, kao i naglašena streha koja definiše krajne granice kuće. Uz zid koji je orijentisan ka ulici i ne sadrži prozore, organizovana je spavaća soba, dok je ulaz u kuću postavljen na sredini duže strane kuće između parkirališta za bicikle i automobile.
Kontra s druge strane
Dok je prednja uža fasada u potpunosti zatvorena i izvedena od drveta, naspramna fasada je potpuno vizuelno otvorena zahvaljujući zastakljenju od poda do plafona te sa ove strane u kuću ulazi znatna količina prirodnog osvetljenja. U ovoj zoni kuće smešten je dnevni boravak i kuhinja sa trpezarijom.


Drvo, samo drvo
Kuća je kako u eksterijeru, tako i u enterijeru u potpunosti izvedena od drveta. Zanimljiv vizuelni efekat pružaju i elementi enterijera, poput kuhinje, koji su takođe izvedeni od iste vrste drveta.
Grafički prilozi
Kad ste već ovde…







