Kuća koja se unutrašnjim dvorištem štiti od komšijskih pogleda
Na uličnoj fasadi nema otvora, ali je zahvaljujući dobroj organizaciji unutrašnjosti, objekat veoma dobro osunčan i ventilisan.
Smisao kuće nazvane Light-house, čiji projekat potpisuje Lee Jae Architects, teži koegzistenciji prirode i čoveka kroz kontinuirani odnos unutrašnjosti i spoljašnjosti objekta. Ipak, zbog pretpostavki da će ovaj kvart u gradu Goyang u Južnoj Koreji uskoro biti gusto naseljen, Light-house je dizajniran tako da zaštiti privatni život vlasnika od tuđih očiju, pišu arhitekte za ArchDaily.
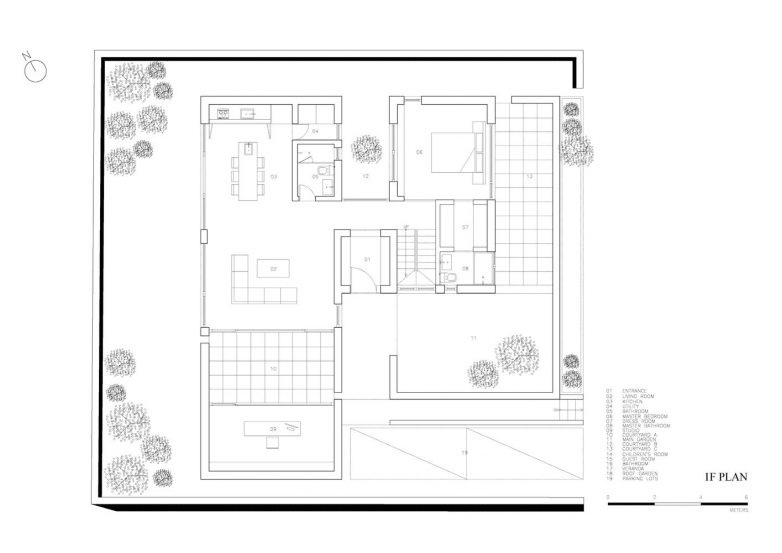
S obzirom na to da se na susednim parcelama već nalaze objekti, a da su u planu i novi, početno stanje je da takvo ova kuća eksponirana sa tri strane. Stoga je pažnja usmerena na organizaciju unutrašnjih prostora.

Sadržaji kuće potpuno su usmereni na dvorište koje čini i spoljašnjost i unutrašnjost kuće.
Kuća izgrađena za tročlanu porodicu od 148 metara kvadratnih prilagođena je njihovom stilu života, te su mnogi prostori funkcionalno fleksibilni kako bi se što više koristili tokom toplog perioda, a da istovremeno budu zaštićeni od pogleda okolnih suseda. Zato su sadržaji kuće potpuno usmereni na dvorište koje čini i spoljašnjost i unutrašnjost kuće, što je tradicionalni koncept orijentalne arhitekture, koja je bila inspiracija prilikom projektovanja.


Ublažavanje granice otvorenog i zatvorenog
Kuća je u bliskoj vezi sa ukupno tri dvorišta te je iz svakog dela kuće moguć pristup spoljašnjem prostoru. Štaviše, na dve terase je korišćena ista završna podna obrada kao u sobama iz kojih se stupa na njih, te je dodatno ublažena granica između otvorenog i zatvorenog.

Veliki prozori na jugu omogućavaju da se kuća tokom zime može zagrejati zahvaljujući sunčevoj energiji.
Kako bi se maksimalizovala energetska efikasnost kuće i uspostavila što prirodnija kontrola toplote, objekat ima velike prozore usmerene ka južnoj strani, te se kuća tokom zime može zagrejati zahvaljujući sunčevoj energiji. Ugrađeno je podno grejanje kako bi se obezbedio maksimalan komfor tokom hladnih dana.

Refleksije svetlosti
Zahvaljujući reflektovanju prirodne svetlosti o bele površine u unutrašnjosti stiče se utisak da je enterijer deo eksterijera i obrnuto.


Grafički prilozi
Kad ste već ovde…




Zanimljivo mi je kako je pitanje arhitektonske vrednosti u inostranim primerima bazirano na karakteru ambijenta, osunčanosti i usmerenosti prostora. S druge strane, vrednost jednog stambenog prostora kod nas meri se cenom pločia i parketa koji si ugradio, bez obzira koliko su ti prirodna osunčanost i provetrenost prostora zapravo jako loši.